查看完整案例

收藏

下载
稳坐白云闲,茅亭静且安。
清风柔竹宛,丽水簇花团。
对月诗情老,临霜剑气寒。
此生无计较,小屋亦天宽。
——唐·钱起《题归隐图》
人·空间
Relationship between human beings and nature
在后疫情时代
家居设计更关注人与空间
人与自然的关系
因此在色调的选择上运用了绿色
同时打破室内和室外的界限,将自然引入室内
风和光能够自由流动
空间之间没有过多的阻隔
阳光从这个空间肆意地跳到那个空间
温柔和快乐在这里缓缓流淌
餐厅是具有仪式感的区域,庄重温馨
与爱的人在这里享受生活的烟火气
度过每一个清晨和黄昏
美·色
Color makes the space more gorgeous
空间大量留白
为了减少单调感
设计师在色彩费了很大心思
五十度灰、浅棕色、月牙白、肉桂色
各司其职却又和谐统一
、
追 · 寻
A hobby full of achievement
给自己来上一杯美酒
从浮躁的快节奏生活中抽离
用心感受一份自由
一段属于自己的时光
一首歌——4分35秒
一部电影——90分16秒
在静谧的空间里
小歇一会
让灵魂追上你的步伐
当纯白布艺窗帘引领着室外的光线洒入眼前
让空间沐浴在温柔的氛围里
整个下午的阳光变得慵懒而美好
悠闲的生活始终需要一个怡静的内心
心灵与自然相结合才能产生智慧
才能产生想象力
才能创造一个理想的居所空间
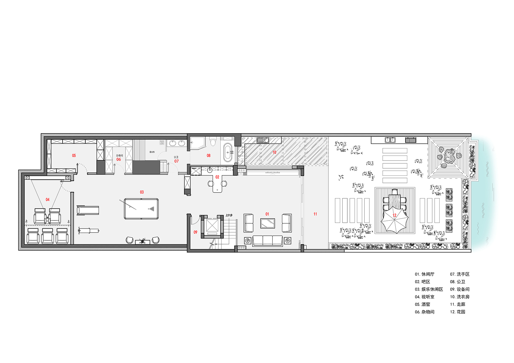
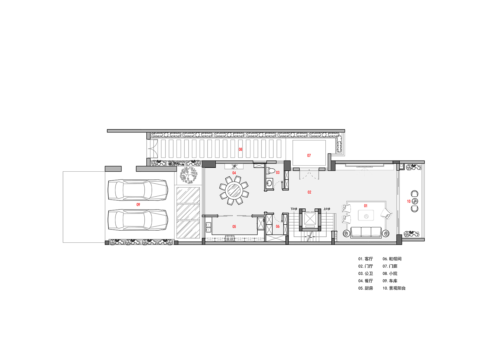
名称丨Project:《东莞600㎡简约别墅,城市中央的雅逸之境》地点丨Location:东莞·万科棠樾别墅机构丨Company:昊祺空间设计面积丨Square Meters:600㎡(原建筑面积260㎡)设计丨Designer:吴炎亮撰文丨Copywriter:Echo
客服
消息
收藏
下载
最近



























