查看完整案例

收藏

下载

翻译
Architects:andre kong studio
Area:70m²
Year:2022
Photographs:Luke O’Donovan
Manufacturers:Crosswater,Kite Flooring,The Brick Tile Co,Zangra
Structural Engineering Company:Blue Engineering
Contractor / Builders:Optimal Developments
Project Architect:Andre Kong
Photography:Luke O'Donovan
Party Wall Surveyor:John Rowan and Partners
City:London
Country:United Kingdom
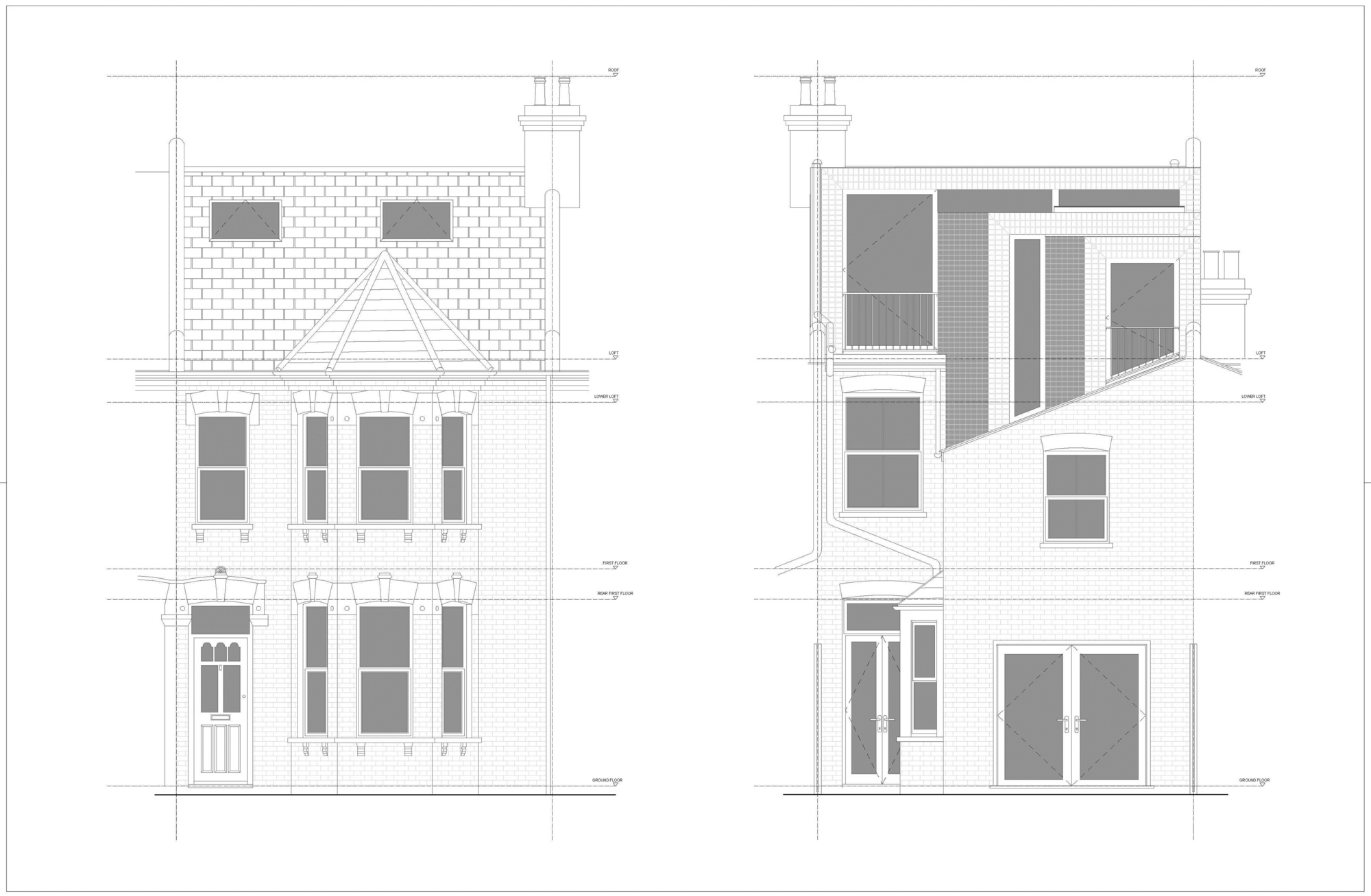
Text description provided by the architects. Andre Kong Studio has extended a Victorian terraced house in southeast London by extruding a series of stepped brick volumes hosting a new bedroom, study, and bathroom. The brief emerged out of two significant post-lockdown changes for the family: the arrival of another child and a shift to permanently working from home. Suddenly the family was outgrowing their house and needed more space and a refuge from the rest of the busy youth-filled household.
Echoing the original plan of the house, the massing follows its L-shape, breaking down an otherwise imposing mass. This is achieved with volumes that step down like a telescope, pulling out of each other, articulating clerestories for light-filled rooms. The grey brick cheeks of the outrigger, which blend with the roof color, follow the same stepping logic, creating a tapered and textured effect. The sizes of the stepping brickwork define the form. The dimensions of the materials also inform the scale and proportion of the lighter brick portals from which each smaller volume is drawn out.
Instead of using full bricks, which would have been heavy and would have required unsustainable and costly structural steel upgrades to the existing house, andre kong studio opted to use brick slips on a lighter insulated timber structure to create the same effect whilst also achieving better thermal performance for the same thickness of the wall. The existing roof tiles were retained and re-used to minimize wastage.
The light-filled interiors feature natural materials such as natural wood and stone, exposed timber rafters, and the original brick walls, celebrating the stepping brickwork of the chimney stacks to reinforce a relationship between the inside and outside, between old and new.
“Loft extensions in the UK traditionally feature roof tiles on their sides, to blend with the existing roofs. In Stepped Loft we wanted to assert this new level's presence, in a more contemporary way, while still being sympathetic to the colors and materials of the existing house. The natural choice was to use brick, choosing two colors, one dark grey, to blend with the existing concrete pantiles, and the other, a lighter London stock brick to complement the existing brickwork.”
andre kong studio explores how material tradition, context, and technological innovation can be unexpectedly combined to find new, fun, and elegant solutions for sustainable buildings, objects, and experiences. Working across scales and programs, the studio approaches each brief in a unique way through a thorough process of inquisitive and iterative ideation bridging design disciplines.
Project gallery
Project location
Address:London, United Kingdom
客服
消息
收藏
下载
最近





















