查看完整案例

收藏

下载

翻译
Architects:Archiplanstudio
Area:460m²
Year:2022
Photographs:Simone Marcolin,Giuseppe Gradella
Lead Architect:Jacopo Rettondini
City:San Giacomo delle Segnate
Country:Italy
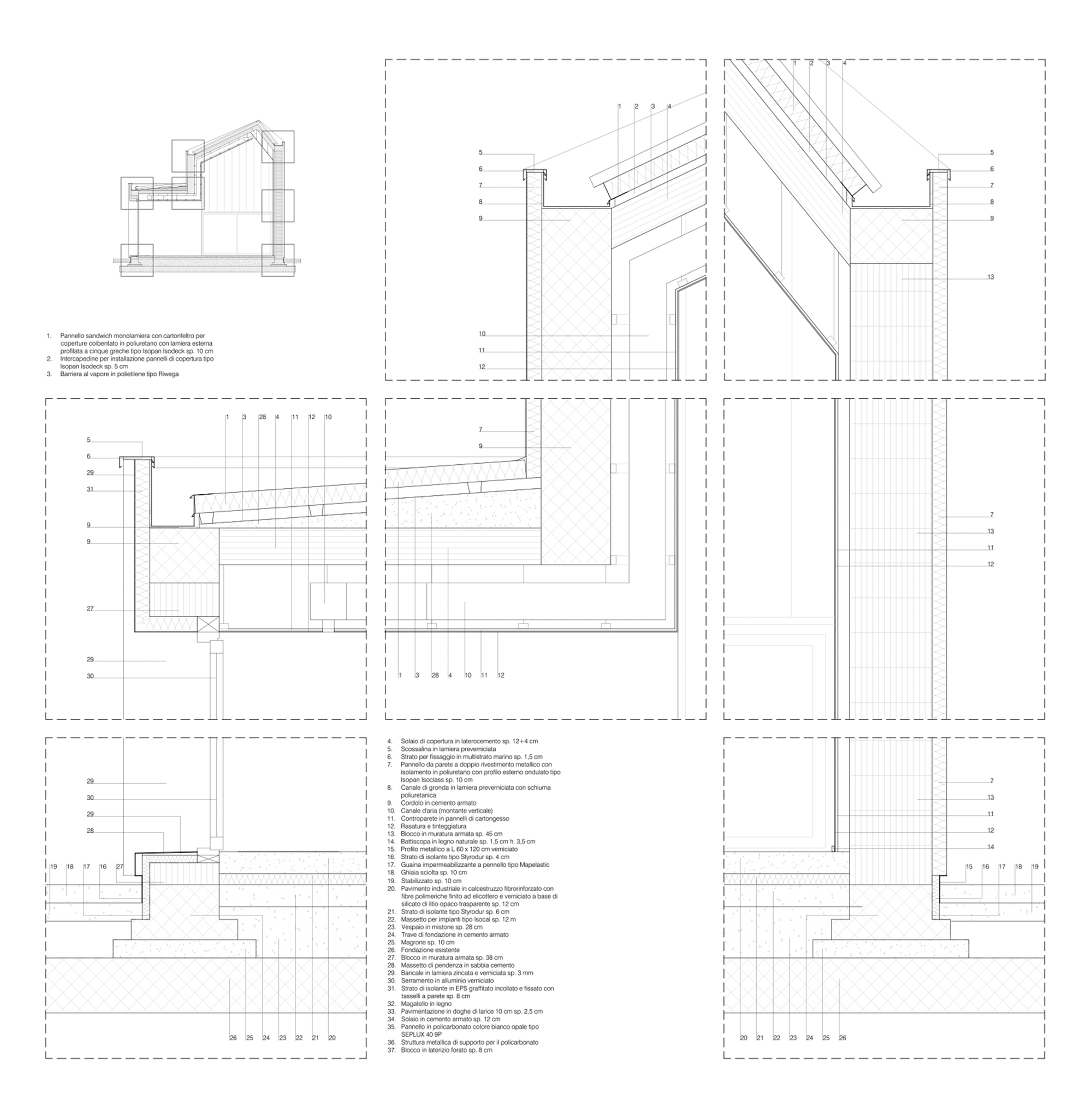
Text description provided by the architects. The intervention is organized in two buildings, a workshop intended for self-sufficient elderly homes while the lower and longer volume is hosting a counseling room and an archive.
The residential building consists of two fronts that relate differently, with a variation of systems, towards the landscape and the urban environment.
The public room has a wooden side that establishes a relationship with the garden and a metal front that denies the hostile side border.
The facade on the open public space defines the access hierarchies while the rear front enriches the possible dialectics with the outside: the portions of the lower openings cut out a fragment of the countryside, while the upper portion covered in polycarbonate, is configured as a lantern which, illuminated at night, it becomes an element of orientation in the surrounding agricultural fields context.
Project gallery
Project location
Address:46020 San Giacomo delle Segnate, Mantua, Italy
客服
消息
收藏
下载
最近






























































