查看完整案例

收藏

下载
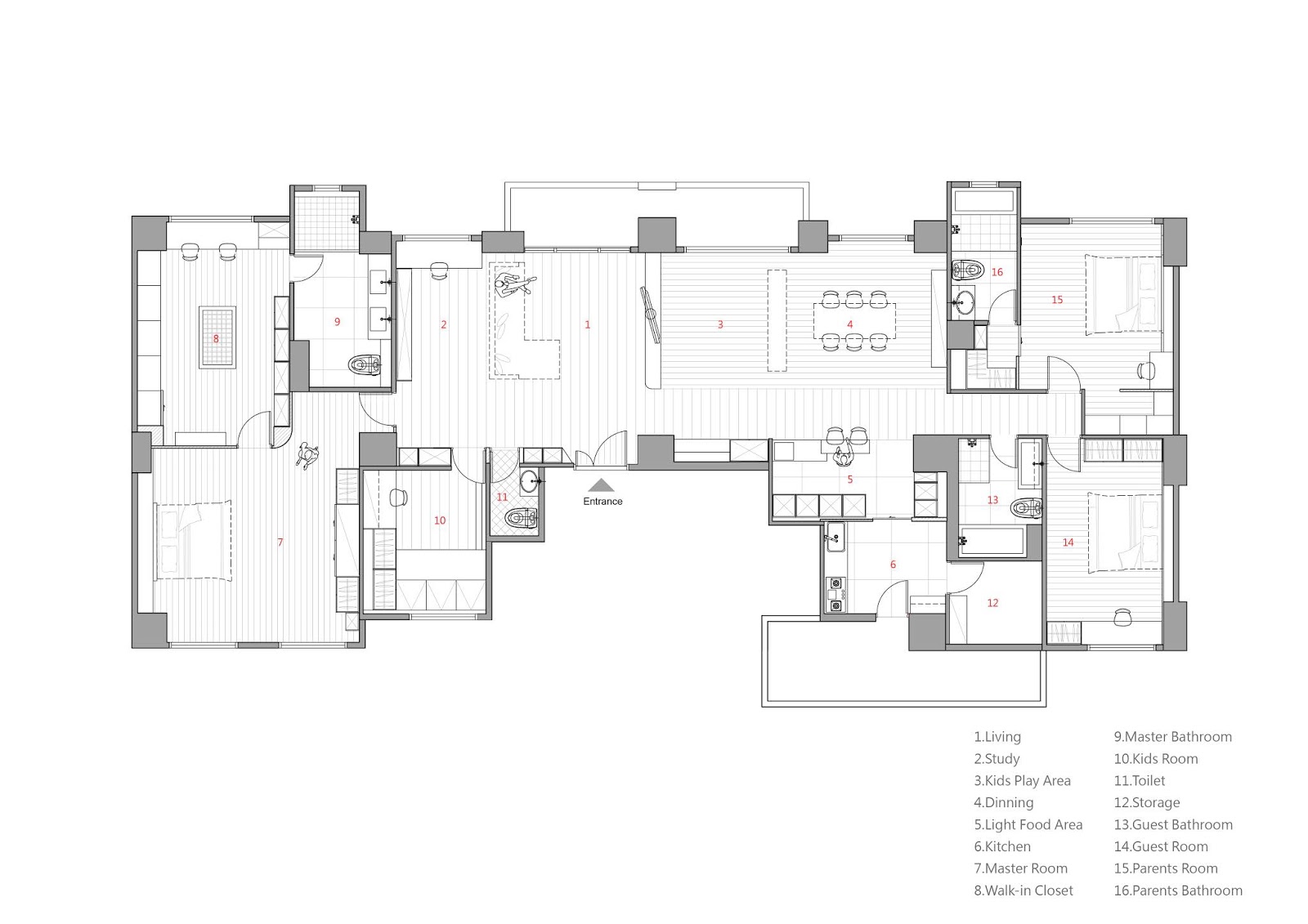
本案址原是屋龄近十年的新古屋,业主希望就近照顾双亲及让学龄前的孩子有舒适的成长空间及环境决定移居于此。我们在现场讨论未来的生活型态与习惯,决定重新规划空间以符合日后的需求。
全室规划左右区二套全热式交换器,让室内有更清新的空间品质。此案整体设计依业主偏好的「木质、简约、温馨以及适合小孩活动的居家空间为主。」空间铺除以中性色调为主,公领域设计尽量串联延展并加强连结,主要材质使用钢刷实木皮、清水模、鐡件、烤漆、铁件及石材..等,型塑业主理想的低调空间氛围与品味。
客厅后方为男主人喜爱的书房空间,开放式书柜结合造型书梯方便取书阅读及方便展示各国的收藏品。
▲电视墙设计结合旋转电视架,可让游戏区及餐桌也可享受影音效果。
▲客厅走道木质造型墙面隐藏了鞋柜、客厕、小孩房及收纳柜,使整体空间更为简单俐落。
▲厨房拆除重新配置,区隔热炒区在内,全新轻食区在外,女主人可惬意冲泡咖啡准备点心并与前方餐桌的亲友闲聊,也可观注游戏区孩子的动态。
▲主卧前后规划间接灯源,提供舒适的照明
▲主卧配置完整更衣间及中岛平台方便整理衣物及收纳,化妆台面窗享有自然采光。
▲主卧侧墙暗门推开后为更衣间空间
▲主卧配置完整更衣间及中岛平台方便整理衣物及收纳
▲主浴重新规划双面盆及干湿分离,以符合业主使用习惯。
客服
消息
收藏
下载
最近


















