查看完整案例

收藏

下载

翻译
Architects:Centro Cero,Pablo Pugliese
Area:338m²
Year:2020
Photographs:Javier Agustín Rojas
Manufacturers:SketchUp,Acri Aberturas,AutoCAD,BCH Propuedades,Barec Sanitarios,Carbemix,De las Misiones,Fenbel,Niveltex,Premezclados
Lead Architects:Leonardo Gabriel Valtuille, Carolina Antolini, Pablo Javier Pugliese
Design Team:Leonardo Gabriel Valtuille, Carolina Antolini, Pablo Javier Pugliese
Engineering:Juan Pablo Busti
Construction:Javier Mora
Collaborators:Ariana Malena Miranda, Maria Fernanda Mierez
City:Lomas de Zamora
Country:Argentina
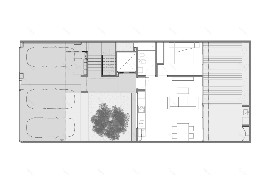
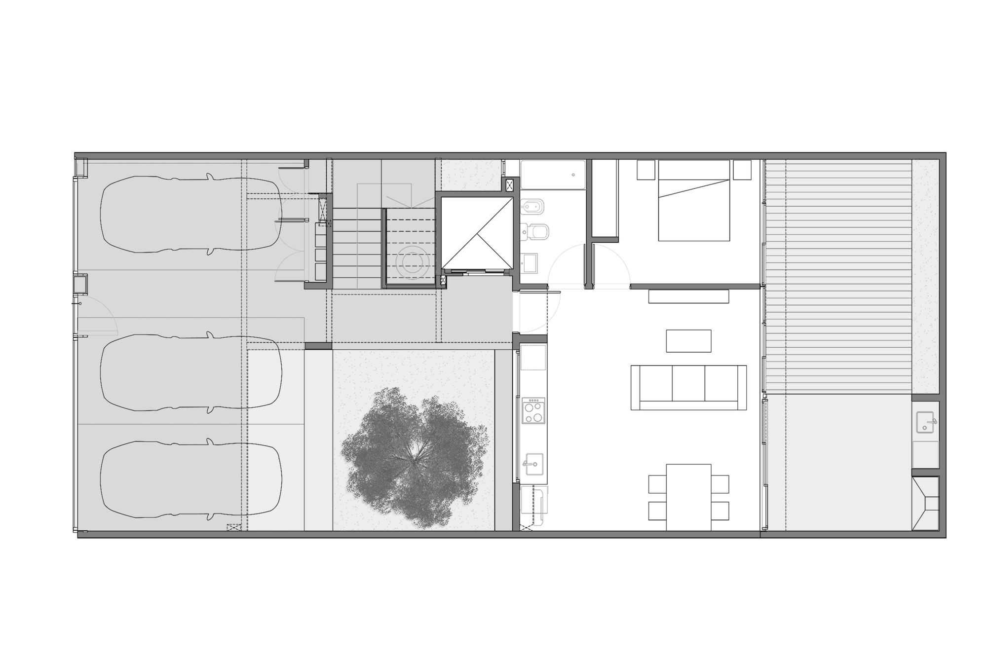
Text description provided by the architects. Azara 891 is a low-density multifamily building located on a plot of land between party walls in Lomas de Zamora, south of Buenos Aires Metropolitan area. On an empty lot of limited dimensions (8.66m x 19.52m), it is prioritizing the preservation of a large existing avocado tree, adjacent to the southern neighbor.
Two functional units are defined per floor, which take the entire width of the lot, both in the front and in the back part of the building, separated by the Avocado Patio and the stairs on the north side. This arrangement allows multiple visual continuities, cross ventilation, and lighting.
The ground floor is free to the front for pedestrian access and garages and is completed with a flat with its own backyard. The stairs and the hallways are related to the patio. The third floor allows each unit to have its individual terrace with a barbecue to reformulate its own patio in height.
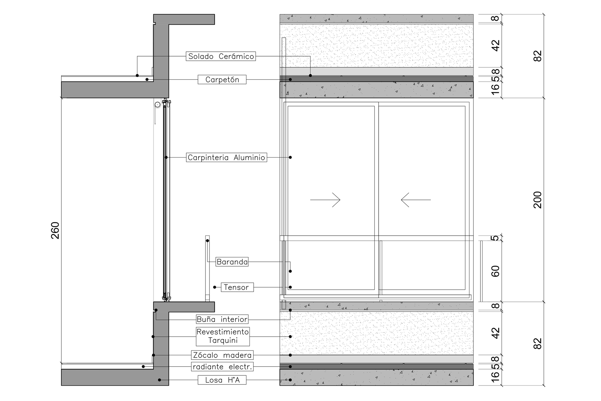
The exposed concrete, the large edge-to-edge windows, the textured white walls, and the linear space generated by the tensioners that will receive vegetation, give the whole a contemporary and stripped-down aesthetic. The yellow microperforated sheet metal gate illuminates and stands out by contradiction, provides privacy as well as visual permeability depending on the time of day. The material continuity of the pavement of the sidewalk dissolves the limits reinforcing the idea of prolonging the public over the private, improving the pedestrian experience of the neighborhood.
Project gallery
Project location
Address:Lomas de Zamora, Buenos Aires, Argentina
客服
消息
收藏
下载
最近



























