查看完整案例

收藏

下载
极致,干净,安适,深得我心
客厅丨Living room
石材温润的质感
融入平和的空间韵律
在黑白灰的基础上加入点缀色
简约温馨又时尚经典
空间之间创造出不同的对比
隐形门使客厅和卧室相互作用联系
空间中理性的线条分割
完美收纳
营造现代惬意的空间氛围
餐厅丨Dining room
线条干净利落的餐椅造型
为餐厅的硬朗加分
主卧丨Master room
将中性色进行到底
自然,阳光
儿童房丨The children's room
淡浅的蓝色清新,自由
搭配奶油色单品平和,舒适
书房丨Study room
多功能书房,将储物功能发挥到极致
整体富有森林色系的生机感
给忙碌的生活中带来一丝活力
厨房丨Kitchen
煎炸煮焖炒烩
舌尖上的美食发源地
不容小觑
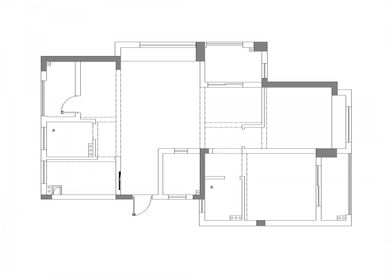
项目坐标 丨 建德 玉兰花园
项目类型 丨 全案设计
项目面积 丨 145m2
项目团队 丨 安优设计
主案设计 丨 楼家明
相关品牌 丨 朴森软装 燊科瓷砖 必美地板
极家家具 锐驰家具
项目摄影 丨 林峰
客服
消息
收藏
下载
最近






































