查看完整案例

收藏

下载
& 本案位于上海黄浦江边高层住宅的高区,委托我们设计的业主是一位独居的年轻创业者。
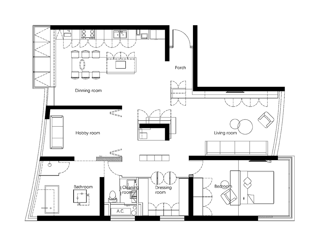
本案面积180平方米,原结构为中规中矩的三居室,我们根据业主独居的生活需求重置了空间格局及功能,几乎拆除了所有隔墙,只保留承重墙,三个卧室只保留了主卧,其余两个次卧分别置换成景观卫生间和兴趣室,原来的主卫置换成步入式更衣室。
入口正对的原有承重墙成为了入口的视觉焦点承载,此承重墙连接着玄关、客厅、餐厅、兴趣室,更衣室,卫生间等,成为了周围空间序列的中心节点。
拆除隔墙后,空间呈现出延展性和流动性,不同的功能空间之间视觉和行为相互渗透。
我们选择了灰暗而有质感的德国进口磐多魔为材料的主要基调,视觉上呈现出工业感的肌理效果,触感上确有着丝绸般的质感;
其次,我们采用了暖色调的橡木地板和墙体,用来平衡冷色调所产生的冷峻感。
打开折叠门,空间呈现层次感与流动性,使用者可自由穿梭其中,若关闭房门,房间保持各自的私密性。
冥想空间位于本案的中心位置,尺度刚刚能容纳一人席地而坐,低矮的水平向木板仿佛漂浮空中,两面混凝土墙体和一面书架墙夹裹着身体,阅读、沉默、思考、复合的行为方式都指向一场自我与内心的对话。
业主有着洋溢的才华和澎湃的生活激情,希望“家”可以作为他展示并凝聚生活中挚爱的空间,而我们的策略是给这些挚爱提供一个沉静、理性、流动的空间幕布。
业主生活中爱好的物品在空间中被谨慎地呈现出来,鞋,摩托车帽,吉他,音像收藏,量身定制的油画,潜水脚蹼等等。
餐厅中央设置了接近4米长的工作台,复合式的使用功能在不同场景下自如切换,烹饪时的操作台,聚会时的吧台和餐桌,工作时的超大办公案桌,独自早餐时的小吧台。
餐厅外侧沿着落地窗设置了宽敞且低矮的地柜,使用者在欣赏江景时可以彻底地解压和放松。
靠窗横向舒展的榻榻米不仅自身是一处大型储物空间,在聚会时,三五朋友可以把酒言欢;自动升起方桌时,可两人斟茶对饮;一人时,也不失为一处静谧又随意的工作空间。
本案幸运地拥有朝向黄浦江和陆家嘴的绝好视野,为了最大程度的捕捉江景,我们把独立式浴缸和淋浴间放置于落地窗旁。
为了让卧室空间与室外产生最直接的关联,我们采用全开敞式的玻璃折叠门,模糊了室内外空间的界定,从而营造出一种置身于带顶的室外卧室之中的体验。
我们还摈弃了传统卧室床头靠墙面的布置方式,把床尾正对开敞的室外空间,床垫放置于200mm高的木质地台上,地面与床体合二为一。
卫生间仿佛洁具的展示空间,洗手台盆的水从吊顶至上而下流出,台盆、浴缸、龙头如雕塑一般独立放置于空间中央,呈现出硬朗的体量感和轻盈的漂浮感。
更衣室更像一个时装的展陈空间,为了在视觉上更具极致的表现力,我们让所有材料都服从于视觉反射的系统。
镜面玻璃不锈钢的柜体与吊顶,拉丝不锈钢马赛克的墙体与地面,镜面不锈钢的出风口,镜面玻璃的鞋柜面板,通过镜面产生的重叠和投影,狭小空间在视觉上被无限放大,最终呈现出魔幻的舞台效果。
细节
我们尝试把电器设备开关面板、插座面板、墙面和天花交接、墙面和地面交接、墙面不同材料的拼接纳入一套规整的理性的系统中。当然,这势必会带来一系列的难题,比如不同设备厂家的开关面板尺寸、颜色及规格需要整齐划一,与墙面齐平的开关面板日后的维修实操性,5mm收边缝以及15mm宽的C型不锈钢踢脚线都给施工方提出了更高的施工要求。但是,对于细部的毫厘必争确保了极简主义背景下细节的精确性。
项目名称:黄浦江畔私宅改造
项目时间:2019年06月-2020年01月
项目面积:180平方米
项目地址:中国,上海
设计单位:方居建筑设计事务所
主创设计:王乐
软装设计:王乐、林磊
项目施工:上海联璞
项目摄影:四目Angie
方居建筑设计事务所2018年成立于上海,现任合伙人以及主持建筑师为王乐与林磊。在每一次的建筑实践中,我们秉持“君子以慎,辨物居方”的谨慎态度,从环境和功能感知并找寻诸多设计线索,理性克制的辨别分析,多维度的尝试探索,创造出浪漫的富有想象力的品质空间。
客服
消息
收藏
下载
最近


































