查看完整案例

收藏

下载
房屋类型(前言):项目坐落在广州白云区, 是一个4房结构,房子四处皆为农田,所以没有什么高的阻碍物,视野是挺不错的,光照也很赞。
屋主属性:是一对年轻夫妻原住民,男主人和女主人酷爱旅游,所以四处淘宝,收纳需求要求不小,除了工作之余拥有极致的享受生活理念,
这套房子是属于意式极简范畴的,简单的黑白灰浮衬出低欲望的生活作息,把更多的烟火气息留给居住者去填充。
原始装修缺陷:
1.虽说面积不小,但是被两个阳台切割一部分。
2.房间数量太多,2人居住,太多空房面积浪费太多
3.主卧进门视野不够宽敞。
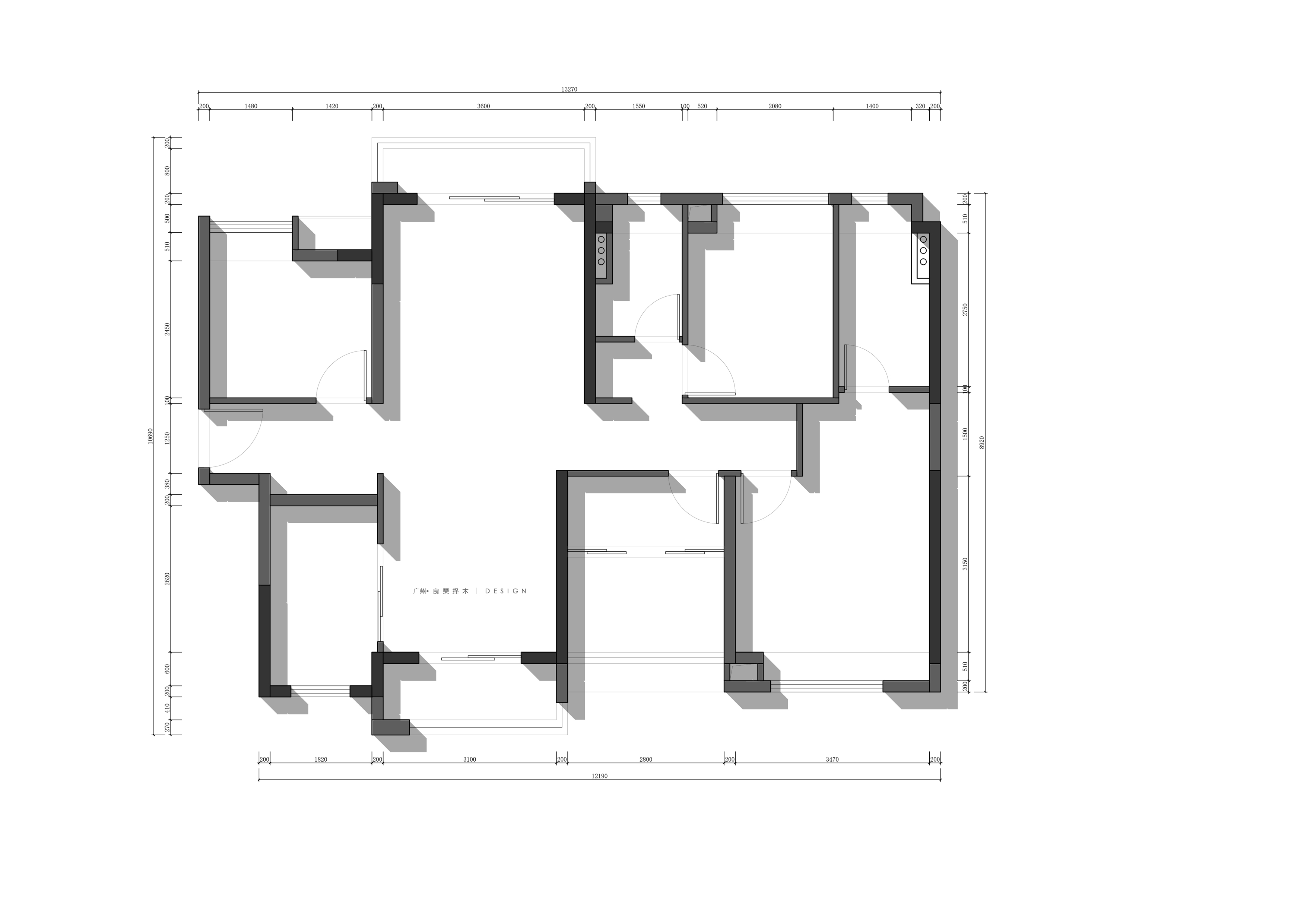
改造之后的平面图
1.把电竞房缩小,然后入户玄关有双边柜子进行储纳。
2.两边阳台相互打通,让客厅更加宽敞,其次生活阳台也可以走进室内,让房子更加开阔。
3.把一个房间改造成储物间,再多收纳也不用担心放在地上。
4.主卧和一个房间打通成为一个搭配有分男女衣帽间的大套间,女主人的衣帽间是搭配有梳妆台的独立衣帽间,更有私密性;男主人的衣帽间则是更靠近主卧的一字型衣帽间方便拿放。
玄关改造前:天花线条过于复杂,不够简洁,以及柜子太少而且安排收纳不合理,空有收纳面积,但是实用性不强。
改造后:左边增加了一组玻璃镜柜,用于摆放旅游带回来的摆件展示,第二整排到顶(底部镂空)的免拉手鞋柜,这样玄关就拥有展示和收纳的功能型鞋柜了。
餐厅改造前:满地砖都是那种亮光面的灰色地砖,过于刺眼,厨房门和阳台门将餐厅压缩太扁。
改造后:将背景白墙做成转角的艺术涂料,和哑光地砖结合成一个色块区分开天花顶。
客厅改造前:放完一张主沙发基本没有什么富余空间活动了。
改造后:改变后的格局最大程度让空间尽显通透,开放,浑为一体。
考虑软装方面没有地毯,后期买的家私也没有重色系,所以这个背景墙如何设计就尤为重要了,造型上从简,一个大体块,颜色上用全屋最深的黑色去控制整个房子的色调。
这个黑色体块在整个空间里起到画龙点睛的效果。
主卧改造前:因为主卧的缘故,导致主卧的床只能靠窗而放,并且只能放1.5米的床品,缺乏舒适性。
改造后:床品可以放1.8米的大床,而且还可以增多一整排的男主人收纳柜。
主卫改造前:因为瓷片颜色的原因,导致本就光线不足的卫生间不开灯的前提下,一片漆黑。
改在后:卫生间墙地面材质换成更为浅色的瓷砖,然后和镜子做一体镜子延伸,让狭小的空间可以有个镜像,心理感受更显大
电竞房
这里是属于男主人的专属空间,平时会比较吵闹,所以放在远离家庭活动中心的地方,按照体验馆的氛围感去设计是很不错的设计思路。
Q:装修过程遇到了什么难题?
A:从纯设计的角度出发就是这是个通病了,和第三方的施工方沟通设计,永远是最大的问题。
Q:这个项目最大的遗憾有吗?
A:每个项目都会有的,月有阴晴圆缺,没有十全十美的方案,我觉得十全十美的方案你可能觉得一无是处。
项目地址:广州白云
项目面积:117
设计团队:良琹择木设计
拍摄:邓培宗
客服
消息
收藏
下载
最近

























