查看完整案例

收藏

下载
这座中式别墅,宛如一幅优美的水墨画,将白墙黑瓦的经典元素完美融入其中。穿过精心雕琢的大门,映入眼帘的是一片静谧的庭院。
中式别院,传承千年古韵,演绎东方美学。在这里,时间仿佛变得很慢,一切都那么宁静、悠然。沏上一壶茶,坐在庭院内,静静品味着茶香,观赏鱼塘里的鱼儿嬉水,于绿植环绕的环境中,让心灵得到宁静;闲暇时,与家人朋友相聚于庭院中,畅谈人生,分享快乐,共度美好时光。
一层空间
该项目整体风格以融合中式别院的格调,加入现代的元素,色调上通过暖灰色的木饰和石材结合。运用色彩搭配与流变性,氤氲浓郁的文化和书卷气息,从光影变化中表现空间之美。
入户
Into the home
玄关的设计:简约时尚的长虹玻璃与质感丰富的大理石相结合,这一巧妙的结合不仅在视觉上引人注目,还创造了一种虚实交替的美妙效果。
储物间
与玄关正对的地方做了一个有储物功能的小空间,这幅壁画犹如一条纽带,将储物室与过道紧密相连,让原本单调的过道瞬间变得生动起来。它的存在不仅没有破坏过道的整体性,反而与之融为一体,让整个空间显得更加和谐统一。
餐厨 kitchen
餐厅的挂画为菩提叶脉立体画,设计师用核心线挂法,以中间一幅画为核心,左右均衡分布进行组合。就餐区域使用圆形与半圆型元素,它们是柔和与和谐的象征。这种设计传达出一种温馨、平和的氛围,使人们在就餐空间中感到舒适和放松。
圆形吊顶采用三个不规则的圆形以不同的大小交错排列,形成了一种创意而独特的组合。这种设计打破了传统的对称概念,展现了不对称之美。
餐厅灯光整体选择高饱和的暖色调,使得用餐区域在原始户型开窗的基础上更加开阔明亮。原木色系的柜体与墙体镶嵌在一起释放空间。
厨房望餐厅视角
会客厅 Living Room
客厅区域整体采用暖灰色的木饰面跟石材结合,大理石门框镶嵌赋予门框独特的纹理和质感,彰显个性魅力。
整面落地窗为客厅带来了充足的采光,它犹如一幅天然的画作,将前庭院的绿植描绘得栩栩如生,在室内也能感受到大自然的呼吸。自然光线透过窗帘,静谧的氛围带来治愈属性,一切都是那么纯粹,没有压力和烦恼。
电视机背景墙采用大理石对称花纹,背后镶上灯带,两侧加入了流行的格栅元素和金属条装饰。两种不同的材质结合在一起,增加了空间的层次感和质感。
▼多功能室
窗户框出窗外的绿植,定格为一幅充满生机的窗景画。
▼楼梯设计
选材方面:大理石踏板+铝合金扶手+玻璃栏杆+智能灯带
踏阶而上,或拾阶而下,感受不同视角带来的别样空间美感。
玄关正对楼梯
玄关与楼梯相对,长虹玻璃的设计给楼梯带来了额外的采光。
楼梯看客厅视角
楼梯吊顶
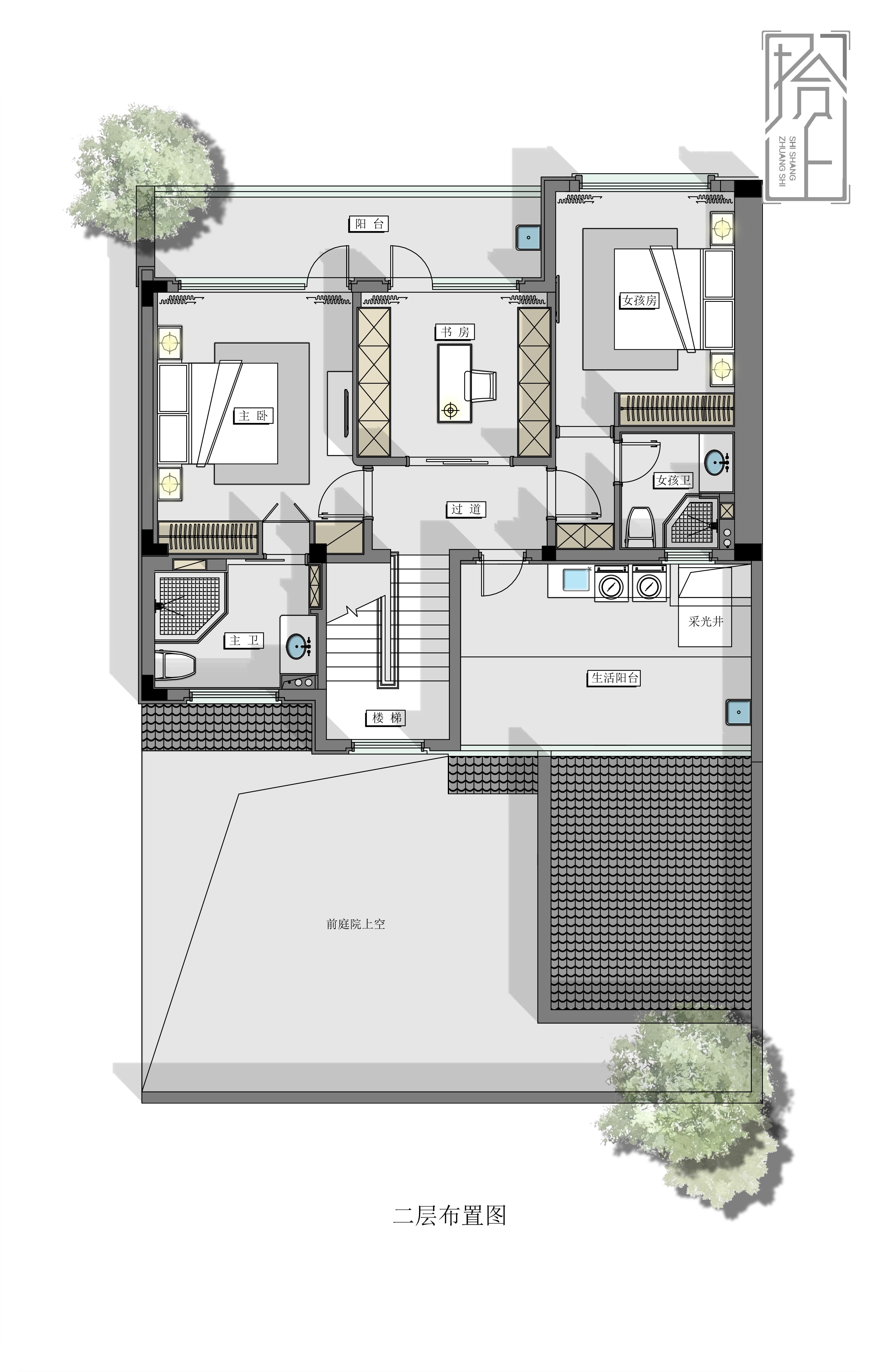
二层空间
私域
Private domain
从热闹到宁静的转换昭示空间进入了更私密宁静的场域。复杂的元素和装饰被剔除,经典时尚的灰色带来的静谧与原木地板的质朴沉淀出放松的氛围。
床两边用暗灰色的木饰面打造与床头板齐平的效果,搭配通透的白色大理石柜体,以增加视觉冲击力。床头柜上装上吊灯,选择柔和而温暖的灯光,以营造舒适的氛围。
主卫
▼女孩房
女孩卫
书房 The study
过道
拾上:做有温度的原创设计
- 项目地址:新昌
- 项目类别:设计+施工
- 项目面积:230㎡
- 毕业时间:2022.04
- 设计.施工团队:拾上装饰
客服
消息
收藏
下载
最近
























































