查看完整案例

收藏

下载
在寻找美的道路上,我们终将相遇。
做有情感的空间设计。
起源
因为在当地北京找不到合适的设计师,所以通过朋友不畏距离找到了我,合作是 2019 年,是一套 140 的平层,就此故事开始。。。
本案业主是大陆一位老业主的姐姐
三口之家定居在北京,有一个可爱的儿子,有一只猫猫,在海淀有一套 140 平的房子。希望未来一家三口在这个温馨的家度过一家人的甜蜜时光。
因此对房子有很多的期待,希望能够颠覆原来的风格,改变原生活的环境。
我们跨越 1126 公里的距离
有担心、有顾虑
但更多的是
我们双方的互相信任
才成就了我们一次合作
让每一套案例像我们自己家一样去平安落地
前言
本方案为户型改造,为一个三室两厅的户型,常住人口为三口,对于家,业主希望能够通过我们的设计来将功能和颜值优化,并进一步提高家居的舒适度。基于业主对家居与品质的高要求,我将这个家定义为色彩,于是便有了本案的呈现。
这里现在变成了一个特别的场所,跳出了传统意义的框架,自由且充满乐趣。对家庭三个人而言,向前推进的每一天都是如此的完美幸福。
设计师说
本案是在 2019-2020 年做的,口罩初期飞往北京奔赴现场,与客户夫妻二人相处融洽,男业主带设计师大陆吃吃喝喝许多本地美食,对于设计师来说更是一场特别的体验。只可惜最后拍毕业照的时候,当天台风,无法飞往北京现场拍视频记录,唯一的遗憾。。。
随着城市的发展和变化,越来越多的老旧房屋需要进行翻新和改造。在这篇案子中,我们将分享北京都市网景 140 平方房子的翻新经验,探讨如何将原木,现代,复古元素与色彩进行融合,打造出独具特色的居住空间。
设计师巧妙地将原木,现代,复古和色彩感觉进行了融合,打造出了一个充满艺术和层次感的居住空间。在卧室、客厅等主要区域采用了原木元素,包括原木墙面饰面、原木门等,营造出舒适、自然的居住氛围。而在客餐厅,卧室,家具等区域则采用了色彩元素,营造出艺术,俏皮的环境。这种色彩与多元素的融合,不仅体现了设计师的创意和技巧,也为居住者带来了舒适和愉悦的独特感受。
--DESIGNED BY DALU---
项目地址 Project address:北京海淀区都市网景
项目面积 Project area:140㎡
设计师 Designer:大陆
▼原始图
本案房子户型、采光优秀,但布局稍显混乱、收纳不足。因此,我们保留的原有的结构,在局部进行结构的拆改,重新布局规划,以全新的姿态呈现更理想的居家生活。
旧房常常有管道老化、墙皮脱落、布局不当等问题,今天分享的案例也不例外。
由于是之前作为出租房使用,过去的装饰也比较简单,大白墙+小片瓷砖颇有些年代的味道。
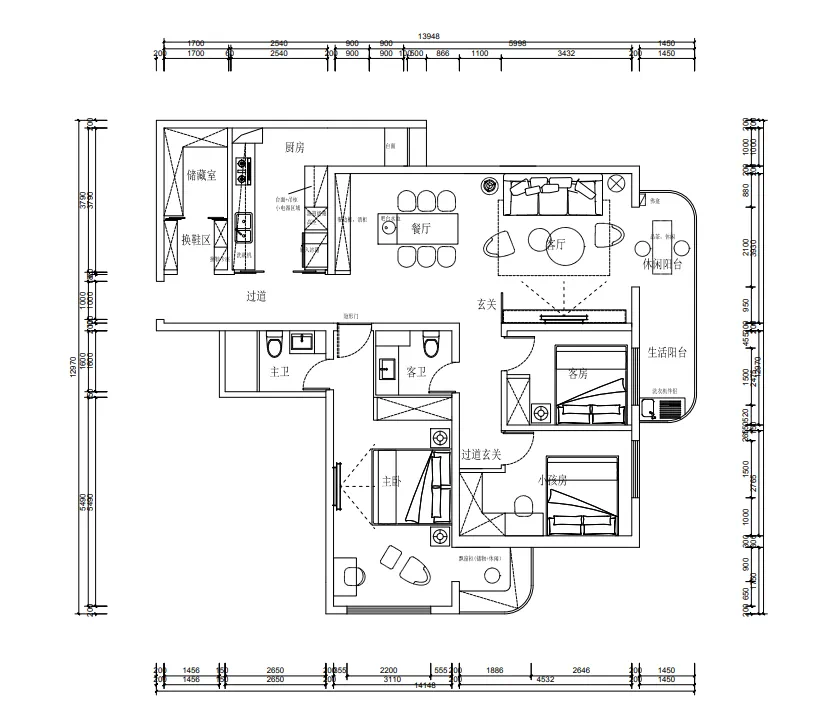
▼平面图
改造重点:
1、入户增设了专门的换鞋区域,转过去用移门隔绝出一个储藏室。
2、屋主需求:经常在家做饭,希望原本的厨房能够得到改善;希望充分利用垂直空间,提高储物功能,让房间看起来整洁。拆除原有的厨房门,做全开敞移门厨房设计,打开的不只是空间,更增加了空间的互动,同时让餐厨的功能渗透,以做互补。
3、餐厅酒柜,吧台,餐桌直线一体,功能全面,增加浪漫感。
4、大胆的色彩运用。
5、阳台包入客厅,整体布局变为“厨房→餐厅→客厅。
装修本就是一个修行的过程,在这个过程虽有苦有累但是当你看到自己的家一点点变成喜欢的样子的时候,你会特别有成就感。
01 入户&lobby
原户型里无独立玄关,只是一条连接餐厅、卫生间的狭窄过道,空间利用率低且不美。
过道与客餐厅相连,在墙面采用了石膏线条与蓝色设计,目的是更好的区分两空间,但不打破整体性,与客餐厅相呼应。
02 换鞋区 &
Shoe changing area
原户型存在的问题:入户储藏间稍大,空间得不到有效利用。压缩入户储藏间,把一半空间延伸至公共过道,打开公共空间感,使得原来修长的过道能够变得透气。
03 客厅 &living room
客厅以灰、白色为主,想强调一眼入户宽敞的感觉,餐厅用了鲜明的色彩。
04 餐厅 & restaurant
餐区的墙刷了蓝色,和灰色的地面和客厅沙发背景的灰白色形成了强烈冲击。并且这个区域的客餐厅呈一字型排列,根据空间特点,以一条加长的岛台为中心,分别向左右两侧做了“一字型”延伸,最大化利用了空间。6 人座的长餐桌容量充足,与岛台连接也扩展了一部分可使用的台面空间。
将水池外置在餐厅吧台,日常洗手、洗水果十分方便。
餐厅沿着墙体打造了一排玻璃酒柜,做为餐厅的储物规划。
05 过道玄关 & Corridor entrance
过道设计木饰面背景,增添温馨家居感。隐形门的巧妙运用,掩盖了主卧套房入户对着餐厅的尴尬状态。
06 厨房&Kitchen
厨房双一字型布局,增加了 20%的操作面,打造吊柜、地柜、高柜,增加厨房的收纳。
07 客卫 &GUEST TOILET
08 主卧 & Master bedroom
接下来就进入卧室了。主卧虽然使用了红色+木色,但都是比较柔和的。区别于公共区域的鲜明和活力,户主想在这里打造一个温暖的睡眠环境。亮点主要是皮床+木色格栅木饰面+拱形门洞的点缀,让空间增添了高级感和沉稳质感。皮质床头靠背加灰色棉质床品,睡眠更舒适。
红色拱形门洞的里面是一个阅读休闲区,卡座可以坐,也可以存储。
09 主卫 &
Master bedroom bathroom
客服
消息
收藏
下载
最近







































