查看完整案例

收藏

下载
业主说:寻找一家符合心意的设计公司,难度不亚于选择一位灵魂契合的人生伴侣。与本案业主的相遇,就像是命中注定的缘分,我们也一定不负遇见。
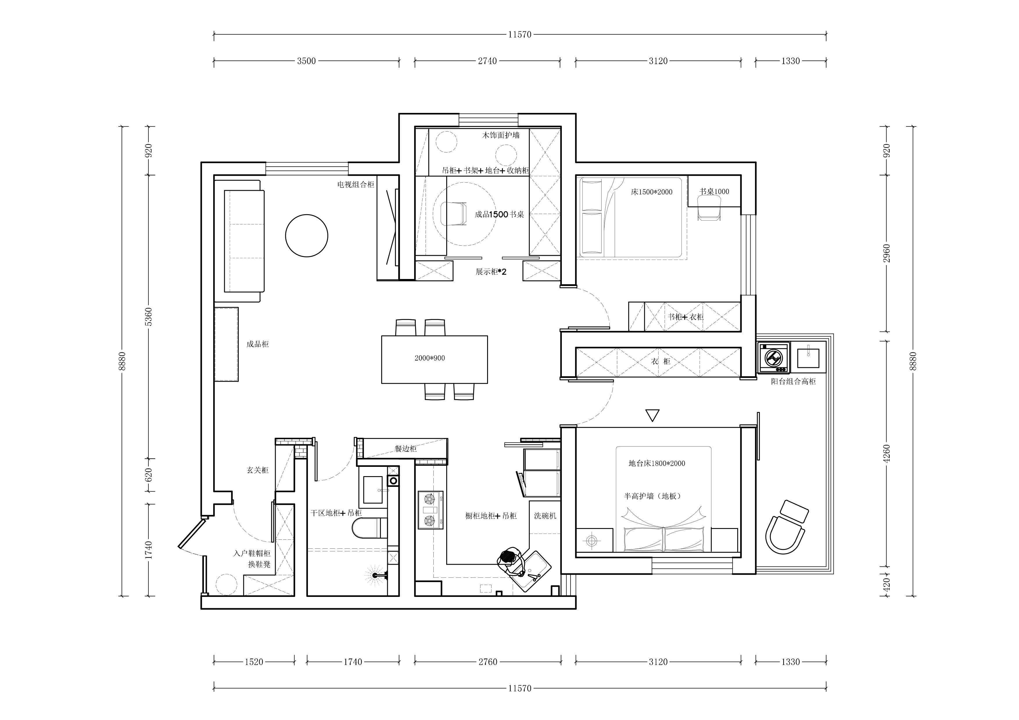
业主是一位手办收藏控,各种尺寸各种类型的手办,我们安排了合理的展示收纳区,让心爱的手办们也有自己的“家”。对于装修风格,我们将业主喜爱的木质元素应用全屋,呈现出温馨复古的家居氛围,随性且慵懒,舒适又浪漫,打造成心灵的港湾。
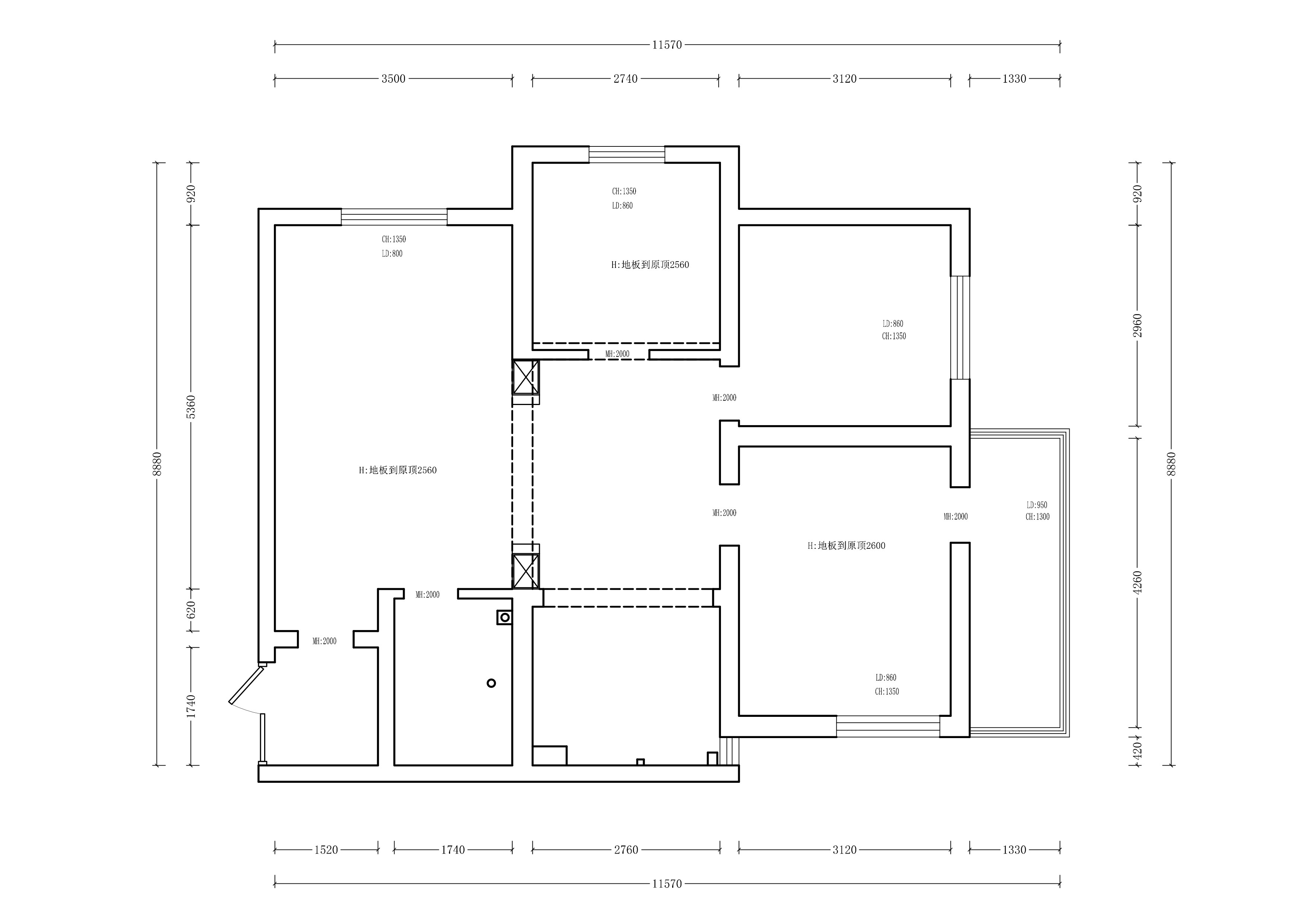
房屋的布局改造条件有限,我们在细节上大做文章,四面“借光”,将原本昏暗的餐厅变得通透明亮,各种形式玻璃门也大有美感,完美契合全屋的中古格调,空间浪漫且灵动。干净且舒适的色块以及线条萦绕整屋,视觉上温柔且清爽,如同秋日里的夕阳,带给人治愈的力量。
客厅
契合屋主喜好,本案大量采用木质元素,打造温馨舒适的氛围,小而美的复古风格,让家的气质娴静且温柔。
沙发一角放置手办展示柜,同时也是一种装饰,让热爱填满家的每个角落。
客厅像是飘着落叶的秋天,像一杯刚泡好的咖啡,不甜腻但却很醇厚。
中古家具搭配金属质感书架,沉稳不失内涵,空间像是有老电影中的那层滤镜,在灯光的融合下,
扑面而来的是温暖自然、复古恬静的家居感受。
中古风的色调偏向米白色和棕色,并以高纯度暖调的深木色家具以及自然质感来奠定空间主基调。
空间陈设简单自由,释放大量场域给到亲子互动区,更加惬意随性。
餐厅
改善空间尺度,释放原始墙体的压力,带来了宽敞明亮、自由舒展的餐区条件。
餐厅向四周“借光”,洄游动线舒展流畅,串联起家的各个场景。
从餐厅看客厅,光线柔和地洒进室内,空间被给予一份舒适和细致的呵护,
恰到好处的装饰与点缀,简繁有度,中古风的浪漫风情与家的温馨情愫完美适配,散发的慵懒氛围令人无比放松。
展示柜正对餐厅区域,装饰画搭配精致摆件,打造端景,建立起空间的交流与联系。
待暖调的灯光亮起,便氤氲出温馨宁静的氛围,无论是闲话家常还是小酌对饮,内心总是平和满足的。
United Strangers经典款餐桌利落简洁,搭配同质感餐椅,不锈钢结构清冷高级,与暖调中古风形成对比,
冲突感带来视觉张力,释放不一样的空间魅力。
压花玻璃推拉门隔断书房区域,推拉门打开后隐藏于柜体背后,实现美观与功能的统一,
很好的将自然光引入餐厅,用餐环境美好且温馨。
厨房玻璃门既能有效隔绝油烟,又能保证光线自在流通,美观上也有正向效果,复古格子门呼应全屋调性,精致优雅。
餐边柜内嵌墙体,保持整体统一清爽,解决餐厅收纳问题。
当玻璃隔断完全打开时,各个区域之间形成自在的交流感,餐厅成为家庭“中心”,动线舒适自然。
流畅干净的色块与线条,构建起格调满满的视觉效果,中古的典雅与极简的清爽,共奏家的浪漫序章。
厨房
白色橱柜清新舒爽,高低台面符合人体工学,人性化的处理让生活更加舒适。
橱柜设计加入胡桃木元素,契合全屋格调,细节之处凸显更磅礴的美感。
书房
书房打造成一间放松休闲的多功能木制小屋,墙面设置储物柜,实现多种收纳,
靠窗的榻榻米成为一方休闲角落,舒适“躺平”,身心都得到放松。
一张毛茸茸的地毯,搭配一盏小灯,精致且温馨,绝妙的休闲时光,镀上闲适静谧的慵懒氛围。
卧室
由于老房对于户型的限制,主卧打造成地台床设计,统一的木材包裹,延续全屋的中古格调,且有良好的视觉舒展效果。
地台下方设置灯带,营造温馨舒缓的睡眠氛围。
深色木材的加入,将中古气质贯穿整个空间,床头一顶简约款吊灯,营造出一种宁静沉稳的感受。
项目地址:宁工新寓
项目面积:91㎡
设计:熹维设计
客服
消息
收藏
下载
最近





















