查看完整案例

收藏

下载
COURTYARD
庭院
清风、细雨、悦声、雅色
泥土的清香、树枝的姿态
水声淙淙,鱼儿游动,鸟儿啼鸣
人与天地自然联通,回归本真
收获独一份的宁静
夜凉如水,灯光依次亮起,庭院亦是精神休憩的世外桃园。
LIVING ROOM
客 厅
从庭院推门入户
青松相迎
是回家的仪式感
运用体量感轻的家具,携同空间壁面合围出大气敞阔感。
奢石独特的纹理与色泽,融合电视屏幕展露统一色块的美感。对话上下部分的氤氲石纹,象征自然与人,理想与现实的沟通。
通过质地、纹理、工艺、色泽的变幻
呈现一览无余的低奢格调
将与审美、情趣、喜好有关的物品安置
LAUNCHERS
挑空
打造一个功能性与形式感并存的居家空间
保留原始挑空的尺度
结合对比、穿插、借景、碰撞的视效
丰富空间的情感温度
放任天光洒向每一隅
身处其中,愉悦感与自洽感油然而生
DINNING ROOM & KITCHEN
餐 厨
餐厅,在挑空区域的光线之下
省略突兀多余的装饰
重塑原始结构中不合理的维度
开阔而具有呼吸感
构建玻璃隔断门,明晰餐厨的区位,提供洁净清新的体感。
TAE ROOM
茶室
满月框景借鉴园林表达
荷,中通外直,不蔓不枝
是国人的雅致之花
一壶茶,一箪酒
自成方圆
FUNCTIONAL
功能
- 规划出合理的动线及空间布局
简洁的扶手
石材塑造楼梯
在合理转折的位置贯穿建筑整体
电梯与楼梯在同一位置
让空间利用率达到最高
QUIET ARER
静区
【主卧】沉稳色调诠释着平和的气息,将适宜入梦的氛围渲染,包裹住居住者的身心。无过多的造型,为的就是让空间安静。
【女儿房】
温柔的中性色
通过软装的调整营造浪漫的氛围
【次卧】
男生的房间简洁明快为主
悬浮吊顶与卧室背景墙丰富空间
【书房】
所谓“书房”,在于它是为人设,而不是为书设。那么一个属于自己的、可以在其中静心读书的所在,便是书房。
【卫生间】
落定奢雅调性,实用的同时,升华使用体验与品质。
BASEMENT 地下室 - 车库入户 一轮满月 是家的圆满与心安
运用玻璃砖、玻璃隔断、采光井引光等方式,最大化让空间光线通透。疲惫时有一处休息地,水吧台近在手边,斜依沙发看书听音乐,都是属于自己的放松。
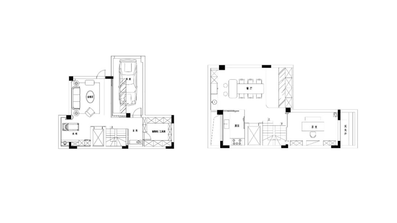
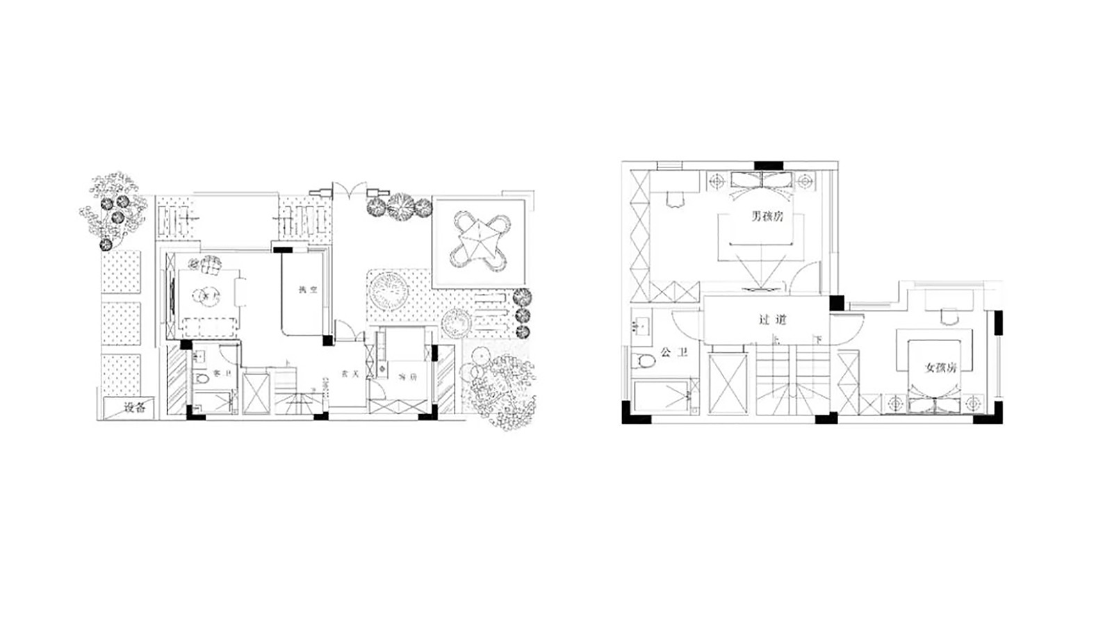
平面结构
--负二层、负一层
--一层、二层
--三层、四层
禾筑精造
- -工地现场
————End————
info
项目设计:建发·雍龙府别墅
项目地点:安徽合肥
空间类型:独栋别墅
建筑面积:350+㎡
设计风格:现代+新中式
空间格局:地下二层+地上三层
设计单位:禾谷空间设计
施工落地:禾筑营造
软装设计:麦穗软装
合作品牌:
瓷砖:金意陶 | 整木:KD | 石材:九道、米洛西 | 涂料:威罗 | 卫浴:木立方 | 金属、装甲门:英特纳 | 空调:东芝中央空调 | 灯光:优马灯光 | 窗户:皇派门窗 | 地板:威兹帕克
客服
消息
收藏
下载
最近
























































