查看完整案例

收藏

下载
「家的简介」
这是建造于 1996 年的乡间老房子(2 层楼,厨房独立,院子尚未打理),地址位于江苏南通如皋,好在中间历经几次翻新修整,看上去还不怎么破旧。屋主的父母使用了在当年比较流行的马赛克外立墙面,打造了坚实的水磨石地面,留下了深深的(不容易抹去或替换的)岁月印迹。未来这将是屋主的父母养老以及屋主(目前 2 人,无小孩)节假日回来的温馨栖息处。逢年过节,一家人欢聚在此,其乐融融。
「户型问题」
/原始户型图/
部分房间空间利用率低,一楼、二楼西北侧房间的功能定位模糊。
一楼北侧的房间采光受限,东侧的房间隔音不理想。
虽然周边环境很优美,却无法将屋外自然景色融入室内。
「解决方案」
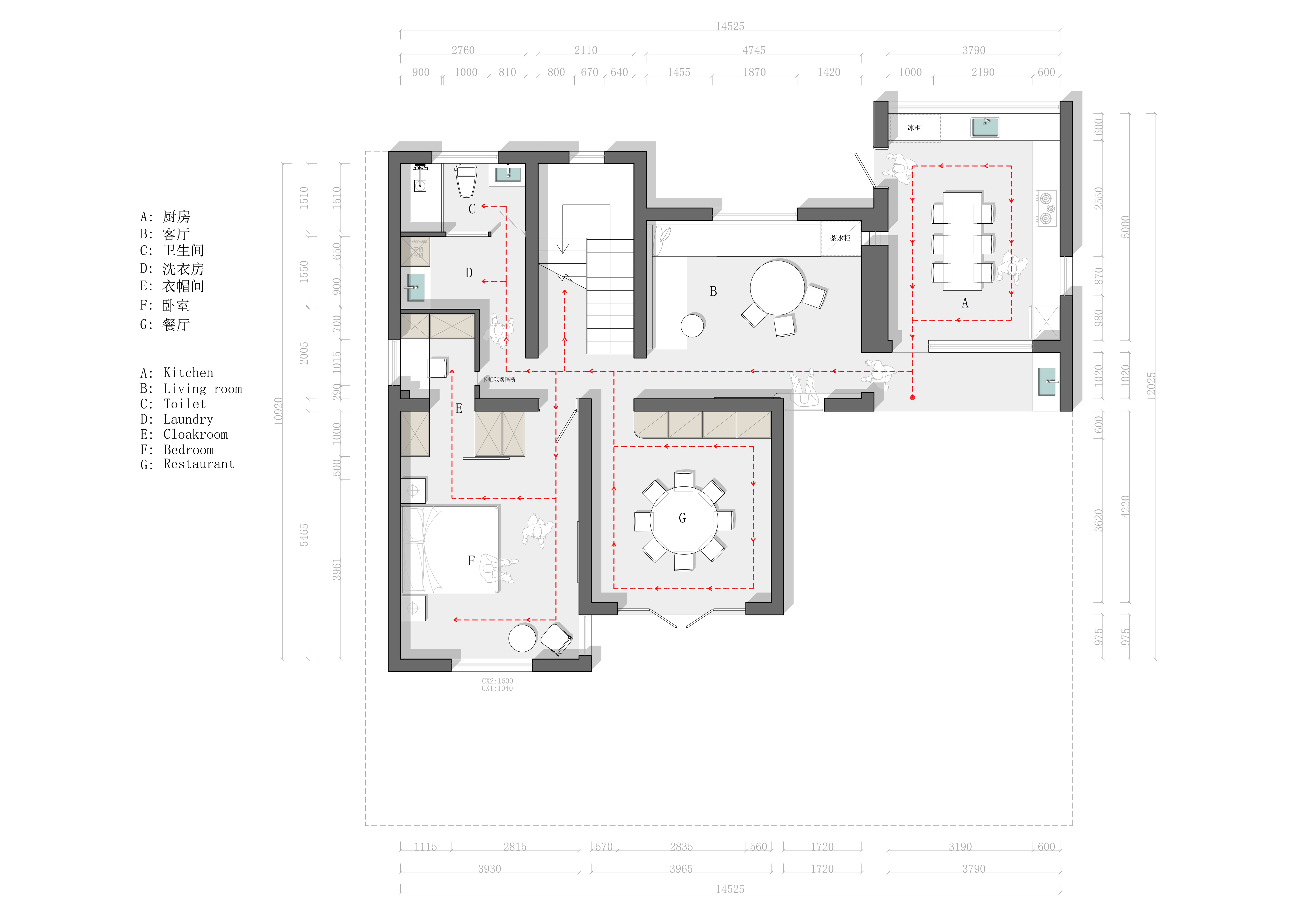
/一楼平面布置图/
将厨房北墙的门洞调整至西侧墙面,在北墙上中东到西开辟一个狭长的窗洞,更好地打开了北面的视野,这样不但增加了厨房空间的采光,同时将室外的湖景与室内相连接,提升了厨房日常操作的体验感。
考虑到客厅面积的局限,我们沿着墙面设置了一排卡座沙发和茶水柜,餐桌与卡座相连接,解决了小空间同时融入两个功能的问题。我们在与厨房相连接的隔墙上打开一个采光洞,增强两个空间的连接性。
考虑到北侧的卫浴空间占比过大,空间比较浪费,卫生间的门洞又正对着会客区,而且与南卧门洞紧挨着,这样的布局着实有些尴尬,对室内的通风性和采光性都会产生影响。我们将卫生间缩至到北侧的区域,外侧设置洗衣区。南卧整体向北扩大,增加了衣帽间的区域,衣帽间与楼梯过道的隔墙也设置了一个采光洞,增加了过道空间采光性和纵深感。
/二楼平面布置图/
一楼厨房的顶面进行了重新浇筑加固。顶面空间作为二楼露台以及阳光房使用。
北卧作为备用房,为了让其功能多元化,我们将地面做了局部抬高处理,只保留了过道空间。当抬高处靠窗的位置放置床垫时,此处可以做为客房使用,当抬高区域放置茶桌时,次处也可以作为茶室使用,完美解决了屋主的多功能需求。
卫生间移至最北侧,采用了三分离的布局方式,将淋浴区、马桶区以及洗漱区、洗衣区三者独立出来,提升了卫浴空间的体验感。
为了解决主卧门正对楼梯的尴尬问题,我们将主卧门洞移至西侧,将原来的卫浴空间设置为主卧的梳妆区,融入到主卧空间。
改造前后对比
玄关/FOYER
▲入户门设置在房屋的东侧,为了提高会客区的采光,我们保留了南边大部分的窗户,窗户下方设置了一排换鞋凳,给屋主在入户更换时提供便利。
客厅/LIVING ROOM
/改造前客厅/
/改造后客厅/
▲会客区通往楼梯间的门洞整体抬高与吊顶齐平,从视觉上加强两者空间的连贯性,放大了空间的视觉感。
为了降低空调的能耗,门洞内侧设置了推拉移门,可以随时将内部空间与过道阻隔。
改造前客厅
/改造后客厅/
▲因为屋主在装修之前刚买了一台新的挂式空调,我们在考虑会客区吊顶的时候将挂机合理地隐藏在吊顶中,吊顶外侧定制了空调的出风口。会客区靠墙的 L 型卡座沙发的下方设置了整排的抽屉,可以提供足够的收纳空间。
厨房/KITCHEN
/改造前厨房/
/改造后厨房/
▲改造后的厨房将原先的一字排橱柜调整为 L 型转角,在功能上增加了台面操作空间以及台下的储物空间。我们将北侧墙面由东到西开辟了一组窗户,水池的位置也调整至靠窗的一侧,当窗外的景色尽收眼底,让下厨拥有了不少的趣味性。
/改造后厨房/
▲透过厨房墙面的玻璃乐意隐约看到会客区,隔断的窗景也增加了整体的画面感。
餐厅 |DINING ROOM
/改造前餐厅/
/改造后餐厅/
▲为了控制整体的造价,我们保留会客区地面的水磨石,为了修饰地面,水磨石表面直接铺设了浅灰色的仿古砖。墙顶木饰面的暖调与地砖的冷调提升了整个空间的层次感。富有造型感的餐桌与餐椅给空间带来了活泼感。
▲餐厅茶水柜一侧的玻璃隔断增强了与厨房之间的连接性。
▲餐厅外的窗景如同油画一般动人。
▲站在室外看向室内。
过道/HALLYWAY
/改造前过道/
/改造后过道/
▲二楼地面将原先的猪肝红地板换成与整体木饰面颜色接近的原木色地板,从二楼通向阁楼的位置作为屋主爱人的工作间,为了让两个空间自然过渡,我们用米色的布艺窗帘作为遮挡。
楼梯/STAIRS
/改造前楼梯/
/改造后楼梯/
/改造后楼梯/
▲在进行楼梯改造时,我们发现楼梯踏步的石材虽然历经了这么多年,但放在现代的空间里依然不过时,与老旧且过时的木扶手相比,踏步明显耐看很多。为了控制预算,我们拆除原有的木扶手,现有的扶手是由现场的木工制作基础框架再包覆木饰面,完整保留了原有的石材踏步。
▲过道西面尽头连接着父母房的衣帽间,中间玻璃隔断将一部分的采光引入过道,让原本昏暗的过道变得敞亮。
卧室/BEDROOM
/改造前卧室/
/改造后卧室/
▲框景如画,为了更好地将室外的湖景引入室内,我们将原有窗户进行放大,靠墙的地台以及底部的灯带让卧室的空间感更加富有层次。既能感受到乡间新鲜的空气和宁静的氛围,又能享受到现代装修带来的便捷与舒适。
▲从北卧看向过道尽头的主卧,整体的通透性让人爱上回家。
▲我们在北卧与起居室之间设置了一组展示柜,南面的光线可以透过柜体引入北卧,柜内可以放置一些屋主喜爱的摄影器材和一些茶具。展示柜的外侧设置了推拉门,通过不同的场景需求下进行随意切换。
▲透过展示柜可以看到起居室,整个空间连而不断。
/改造前卧室/
/改造后卧室/
▲改造后的父母房间增加了衣帽间,考虑到衣帽间西墙的窗户具备良好的采光条件,我们在靠窗的位置设计了一组书桌,为屋主读书办公提供了便利。
/改造前卧室/
/改造后卧室/
简洁而耐看的空间搭配还原简单的本质生活,让时光在此处静静流淌。
/改造后卧室/
▲主卧的房门调整位置后,床的摆放也随之调整了方向。由于卧室的面积较为宽裕,我们除了在床的北侧放置衣柜以外,床尾同样放置了一整排的衣柜,整个卧室的收纳空间完美满足了屋主的囤货需求。
主卧靠窗的区域设置了一组卡坐沙发作为休闲区,与他的衣柜相连接使卧室空间相连贯,一边沐浴阳光,一边欣赏屋外的乡间美景,如此惬意,美哉。
▲卧室的顶面造型与地面的地板顺延至墙面形成床头的背景造型,两种材质的衔接处利用高低穿插的方式预留了灯带,作为床头的辅助照明。
▲一张极具造型的绿色单椅更是点睛之笔。
▲因为主卧的北侧靠着西面窗户,所以采光很理想,我们将屋主的梳妆区设置在这里。
卫生间/BATHROOM
/改造前浴室/
/改造后浴室/
/改造后浴室/
改造后的卫生间实行了三分离的布局方式。将淋浴区、马桶区以及洗漱洗衣区三者分别独立开来,提升了卫浴空间的体验感。
客厅/LIVING ROOM
/改造前客厅/
/改造后客厅/
/改造后客厅/
▲客厅通往阳台的门洞整体抬高至梁位,阳台顶面的木饰面从阳台延伸至室内,两侧墙垛的内外材质与室内统一,让两者空间更加连贯。阳台的窗洞出进行了局部的扩大,阳光透过白色的窗纱尽情地洒向室内,营造出一种柔和舒适的场景。
/从楼梯间看向起居室/
▲透过客厅的玻璃柜门可以隐约看到客房里的场景,打造空间无限可能。
▲客厅向阳台望去,室外的乡野美景尽收眼底,让人心情愉悦。造型巧妙地软装给家注入了活力。就如同落地灯别致的造型充当起整个起居室的氛围担当。
▲在设计阳台窗户的时候,为了能更大限度地将室外乡野美景引入室内,考虑到大面积落地窗的重量,阳台的地面进行了重新浇筑加固。
阳台/BALCONY
/改造前阳台/
改造后阳台
▲植物是有它独特的魅力的,给我们内在的滋养,而植物进入空间不仅带来了绿色,更带来了生命力与活力。所以我们在明媚的窗边打造了一个植物角,一切的辛劳在这一方静谧中消融。
/露台/
▲原来靠南的露台空间,一半作为阳光房使用,另一半保留露天的功能,地面都使用了防滑地砖。原本打算露台地面使用户外地板,考虑到周边的树木叶片窄小,担心后期堵塞下水口,最终换成了地砖,简洁易打理。
外立面
/改造前外立面/
/改造后外立面/
▲其实当时在讨论关于外立面设计时,我们提供了几稿方案都是需要大动作,因为时间与预算的问题,只是在外立面重新做了外墙真石漆,局部调整了窗洞大小。得益于原本的房屋造型就很耐看,最终我们把设计的重点放在了室内,为屋主解决了诸多关于室内居住功能性的问题。
作者有话说:
▲这套总共有 230 平米的两层老宅,改动的地方比较多,最后呈现的效果让业主与我都很有成就感。乡间人们朴素的情感感染着我,有好几次屋主让我留下来吃饭,我知道是好客的他们表达对我的感谢之情;乡间新鲜的空气也治愈着我,看着一幢普通的楼房从一点一点到现在变成一幢富于现代气息的别墅,我感恩业主对我的信任。在设计这一条路上,我未曾停下。细节与全局,效果与预算,保留与变化中,我变得越来越得心应手,自信的脚步奔赴下一场热爱。。。。。
客服
消息
收藏
下载
最近




















































