查看完整案例

收藏

下载
重庆装饰公司俏业家作为全案设计领先品牌,专注为业主提供基装、全案、整装多模式、全品类的一站式高品质装修服务,是值得信赖的重庆本土装修品牌。本实景案例是重庆俏业家装饰设计师为岚溪云墅300㎡平别墅上叠户型专门打造的轻奢法式混搭风格装修案例。
——重庆岚溪云墅案例内容详情——
楼盘:岚溪云墅
区域:重庆市渝北礼嘉
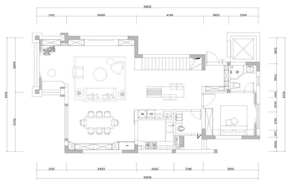
面积:套内300平
户型:别墅(上叠)
装修风格:轻奢法式混搭
设计师:王娅
【业主需求】
浪漫,就是浪费时间慢慢吃饭,浪费时间慢慢喝茶,浪费时间慢慢走,浪费时间慢慢变老。——林清玄《人间有味是清欢》
本案业主一家四口,育有两宝,生活美满。关于这个“新家”,他们有一个共同目标:装得有颜,住得有品,用得有质!女主人审美在线,追求浪漫,男主人对家的规划也很有想法,是个实用主义者。经过和业主一家的深入沟通,我们决定把一楼和二楼的风格定位在轻奢,既能感受家的美好,也能体现居者的品味;三楼满足女主人的浪漫情怀,用法式来成全她对幸福的追求。
【设计思路】
原始户型采光通风条件俱佳,但也存在多处“欠缺”——功能区规划不合理,动线不清晰,空间浪费较为严重,所以,我们结合业主一家四口的生活习惯对三层空间进行重新规划:
一楼作为公区和老人的起居室,方便出入。
入户旁的卫生间包进次卧,改边开门方向,打造成套房,为玄关腾出更大的收纳空间,回家更有仪式感。在过道增加西厨,形成洄游动线,生活品质一眼就看得见;原始横厅采光条件优异,内阳台没有保留的必要,包进来放上钢琴更能丰富客厅功能。
二楼作为两个孩子的成长空间和休息区。
挑空区域现浇,增加儿童房,为两个宝贝打造独属于他们自己的私密空间,增设卫生间方便使用;原始露台利用玻璃和吊顶将露台改成封闭的茶室,是一家人享受休闲时光和谈谈心的好地方。
三楼则设计为业主夫妻的浪漫大套房。
我们从楼梯开始改变进门方向,优化空间零碎、动线不畅的问题。原始过道做成独立衣帽间,主卧储物面积增加20㎡以上;再优化卫生间的布局,让各个功能区更加方正。至此,三楼无论是居住体验,还是空间利用率都得到极大提升!
【细节刻画】
1、客厅装修:我们挑选不同明度的灰渲染客厅的层次感,用石与木平衡空间秩序,让客厅的质感更加内敛。客厅天花板采用悬浮吊顶和无主灯设计,不仅没有压制层高还为视觉带来更多的延展性;最简单的磁吸轨道灯和筒灯搭配,让整个上层空间显得格外简洁;空调出风口特意做加长处理,会更美观,也不会破坏吊顶的整体性。电视机背景墙用深灰色的实木格栅打底,1200*2400大尺寸连纹岩板在上,无缝拼接营造悬浮感;浅灰色纹路肆意延展,打破空间界限,展示随性态度。没有制作电视柜而是用更契合的大理石地台让电视区域沉稳下来。与电视墙相邻的阳台定制满墙柜,满足客厅储物的需求。墨灰色开敞储物格,完美衔接香槟色立柜,空间丝滑过渡;立柜柜门无把手,一门到顶,简约又大气。缎面的窗帘垂感强烈、柔顺丝滑,和柜面相同色系让这一个角落温柔得恰到好处;整个客厅都由这一抹香槟和不同层次的灰撞出刚柔并济的气质。沙发以舒适为主,低饱和度的颜色,棉麻质感也更显高级;组合一个橘黄色的螃蟹椅,为空间增添一抹明媚;特意放了一个80cm的圆形小茶几,方便随时为两个小宝贝移出奔跑的天地。
(客厅效果图)
2、餐厅装修:餐厅的位置就在客厅后面,整个基调一致,但又比客厅多了一点小资的味道。满墙红酒柜陈列男主人的收藏。在玻璃和暗黑色柜体衬托下,红酒柜自成视觉焦点,透露着低调的奢华感。餐桌选择了和电视机背景墙相似的材质与色彩搭配;贝壳椅造型独特,极具艺术气息,皮质软包又能给居者更舒适的用餐体验。
3、西厨装修:西厨装修落地性极高,设计还原度在95%以上。线性灯做西厨空间的主照明,不管是凹造型还是提升氛围感都很有格调。大理石梯步延展到楼梯下方形成的地台,内嵌灯带制造悬浮感,让空间结构显得轻盈。楼梯下的空间没有考虑储物而是制造景观,为生活增添仪式感。石皮墙砖肌理自然,在仿真火壁炉的衬托下有着一股原始的野性美感。餐岛一体是西厨区的中心。岛台的花纹与客餐厅相呼应,让三个空间有了联系;超薄木纹岩板桌面增添木的元素,透明亚克力桌腿让它在视觉上更加通透,削弱笨重感。橱柜上深下浅,地柜内嵌黑色的蒸烤一体箱,还有浅灰色艺术漆,整体配色显得优雅而神秘,成就了居者的小资情调。水槽上方用了岩板上墙,不再担心用水外溅导致墙体返潮发霉;靠近蒸烤箱的墙面我们定制隐形柜,和墙体完美融入,在赋予西厨空间强大收纳能力的同时还让视觉效果更加统一。
(西厨效果图)
(西厨效果图)
4、茶室装修:生态木吊顶幽雅而不失大气;为了不破坏顶面造型,空调出风口做了对称处理,全部加长,让它更加和谐。一字型波浪吊灯,开灯之后会在光的晕染下呈现出流水的飘逸感,完美表现中式意韵。大尺寸实木桌椅组合纹理清晰,简单大气,内凹“Z”字造型桌腿设计,彰显在古韵中追求时尚的态度。
5、儿童房装修:弟弟的房间用了多种卡通元素让它活泼起来,显得童趣十足;蓝灰色艺术漆提升质感,也避免让整个房间的童趣风格太过于脱离主基调。走了一圈窄边吊,让直升机吊灯成为顶面最吸睛的存在。原始阳台遗留下的房梁太突兀,我们用石膏板做拉平处理,蓝灰色护墙板收口,最后顺着末端靠墙制作同色的开放式储物格,以便收纳弟弟的玩具,房梁也成功“隐身”,一举多得。为了给房间配上合适的窗帘,我们最终选择定制,窗帘上散落着的小图案由一家人精挑细选。云朵吊灯,白色生态木吊顶,在加上蓝色窗幔,这是专属弟弟的游乐天堂。萌趣暴击,猫耳造型的软包床头搭配同款配色床头柜,非常可爱;士兵吊灯沿顶面下垂站岗执勤,庄严威武,仿佛在说房间的萌物们会在夜半时分活过来,一起守护睡梦中的宝贝。无论是天蓝色书桌还是浅灰色的靠椅都可以调节高度,就算宝贝一直在成长,也能舒适使用。
哥哥的房间相比之下会简单很多,但设计方案里隐藏的爱一点也不会少。考虑到哥哥的年纪,我们让这个房间显得更稳重一点,所以墙漆选了米灰色,会柔和一些;同款站岗士兵吊灯,但又比弟弟房间的士兵多了一丝坚毅。原木色床头背板,起伏的曲线为空间增添设计感,打破平淡;床头柜的原型是瓦力机器人,呆萌灵动,质感满满。值得一提的是,两个宝贝的房间我们提前考虑到会配置书桌,就把插座都放在了比常规更高一点的位置,以便使用电子设备。
6、次卧装修:次卧不常住人,整体设计更贴合客厅的风格。床头背景墙选择低饱和度的灰色艺术漆,用PU线条添彩,整个空间不会太过单调。床头靠背是雅咖色,在皮质软包的衬托下更有轻奢范。
7、公卫装修:公卫洗手盆独立出来,处于二楼走道,双台盆设计,让两个宝贝可以同时使用;墙排和悬空柜体让这个区域显得更加简洁。
8、主卧装修:主卧顶面的房梁交错纵横,为了在不压层高的情况下达成极佳的视觉效果,我们费了不少心思。沿最大的竖梁分两边利用龙骨搭建框架,呈阶梯式坡度下降,于最外端房梁处收口,最终形成双斜面构架的吊顶造型。中间选择复古的法式吊灯作为主光源,水晶蜡烛造型点亮梦幻之境;格栅灯和筒灯作为辅助光源,使居者沉溺在温柔的氛围中。艺术漆结合PU线条造就的背景墙触感细腻;最经典的法式线条造型,在甜杏色的衬托下显得十分精致;靠窗一侧是特意为女主人打造的宝藏栖息地,专门用来收纳她买回家的化妆品。双层窗帘和背景墙同色系,蕾丝+缎面材质,性感和优雅并存;蕾丝让阳光溜进来躺在沙发上,留下斑驳的影;缎面垂感强烈,比棉质更有光泽,唯美又柔软。这面墙全部采用护墙板装饰,木格栅的线条穿插其中丰富视觉效果;衣帽间的门刷上同款漆打造隐形效果,推开它就能进入衣帽间,里面陈列着的都是女主人精挑细选的战袍。
9、主卫装修:主卫的洗手盆分离出来,方便两人如厕、洗漱同时使用。半圆浴室镜在灯光烘托下让洗漱这件事也变得享受起来,椭圆形台上盆的极简线条体现轻奢格调;安排上浴缸,让夫妻两能在傍晚舒缓一天的疲劳。
10、花园装修:小花园里全都采用太阳能发光灯,它们能透过玻璃吸收能量,在必要时成为渲染氛围的最强帮手;夏天,夫妻两依偎在灯光下夜谈,靠着椅子透过玻璃细数漫天繁星,只是想象就很浪漫。为了方便女主人后期种植的蔷薇可以肆意攀爬,我们特意选择流水石做外墙砖;鹅卵石铺就的小径配合仿古小方砖,让楼顶花园弥漫着淡淡的法式田园风情。靠着流水石用大理石做了台面放小花盆,外侧弧形花台就种植矮小的花卉,里侧空地放置更高的植株,夫妻两没时间踏青也可以在春暖时节欣赏到独属于自己的秘密花园。
客服
消息
收藏
下载
最近












































