查看完整案例

收藏

下载
项目名称|Project Name:《绿地香颂》
项目地址|Location:上海·奉贤区
面积|area:260㎡
设计机构|Design Agency:简狄设计事务所
前言
# PREAMBLE #
本案位于上海最南端的奉贤海滩边,是一套地下一层+地上三层的联排别墅。新鲜的空气,自然的美景和一份远离尘嚣的放松,是吸引屋主一家三口来此置业的主要原因。碧海银滩给了设计师无限的灵感,以灵动的纯白色为主调,注入温暖的原木色,营造出纯粹、宁静的度假氛围,同时也充满家的松弛和温馨感。
屋主的诉求比较简单:
1. 一家三口至少需要满足 2 间卧室;
2. 主卧为套间形式,希望有泡澡的独立浴缸和办公/梳妆区;
3. 孩子需要有独立的学习/玩耍空间;
4. 希望有功能齐全的大西厨,满足烘焙等料理需求;
5. 空间要显大再显大,希望最大化利用。
空间改造
# SPACE TRANSFORMATION #
---原始户型图---
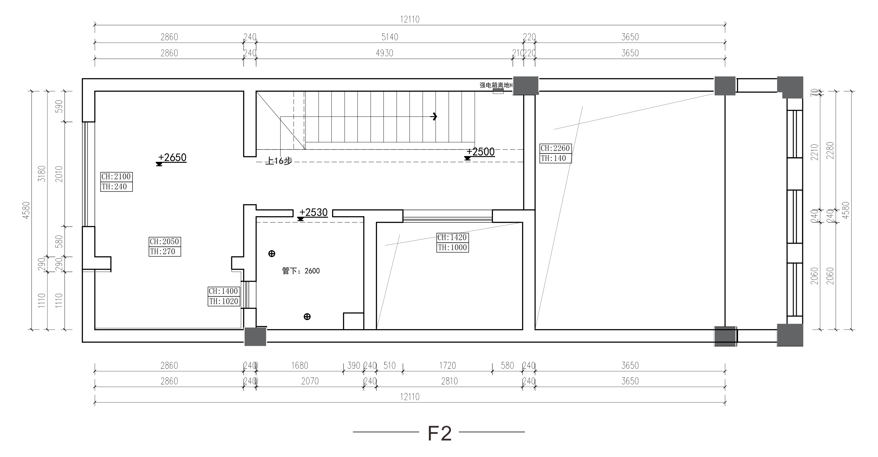
原始平面图:这套联排别墅总共四层,是比较常见的长条户型,中部采光较暗是这种户型的通病。“良心”开发商一般会在中部预留一个天井用来采光,本案即是如此。虽然采光井解决了光线问题,但室内空间被截断,使用率降低又成了新的问题。同时单跑楼梯和天井之间形成的狭长过道非常不舒服,也是需要优化的部分。---平面布局图---
平面布局图:简单总结一下改造思路:
1、一层调整了主入户门位置,扩大了室内门厅空间;
2、天井位置规划 U 型楼梯,光线通过玻璃顶面和镂空的白色楼梯,从上至下贯穿到地下室;
3、一层地面采光井填平,小窗改落地大窗,扩展了厨房空间;
4、楼梯移位后释放的空间和厨房进一步整合为餐厨区域,让南北空间更为通透;
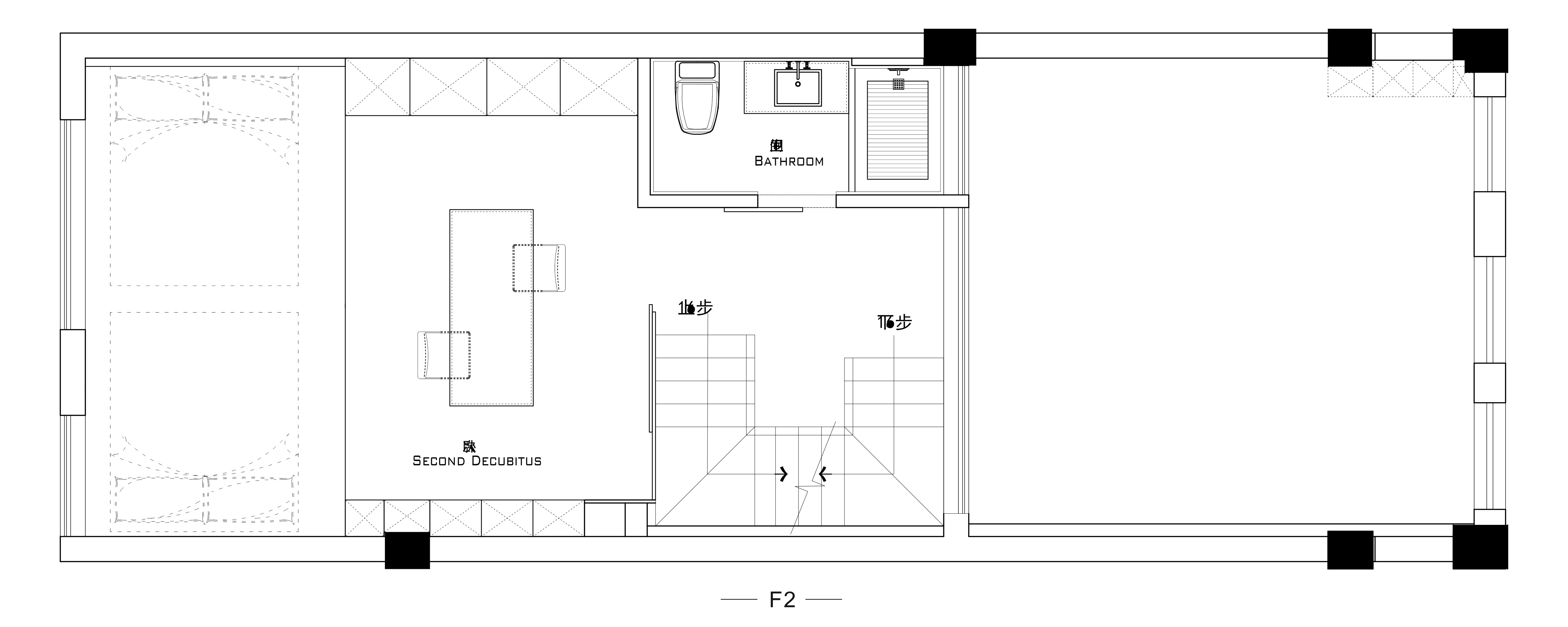
5、二层规划为集学习、游戏、休闲、起居为一体的多功能区;
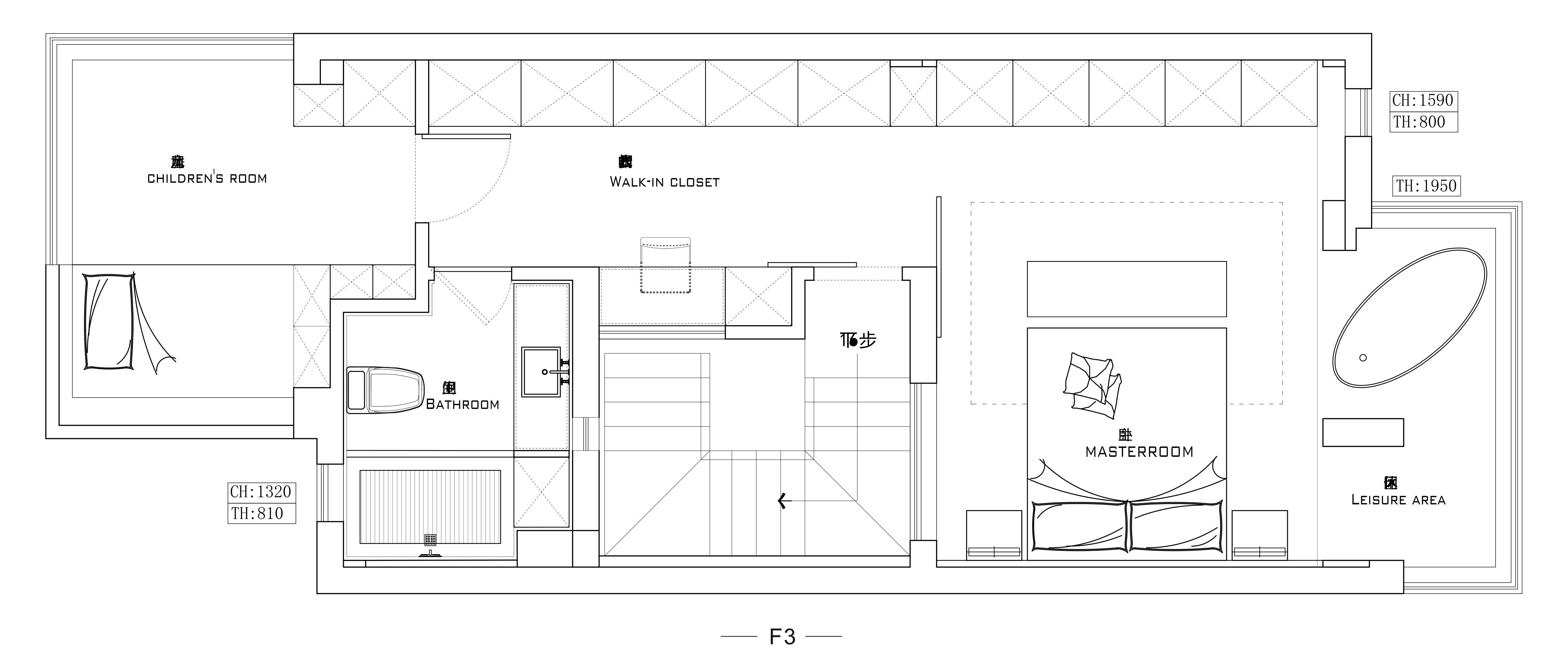
6、三层为主卧套间和儿童房;
7、地下室规划为下沉式会客厅。
案例讲解
# CASE EXPLANATION #
01# Living room #
纯白色基调让高达 6 米的挑空客厅显得更加明亮宽敞,巨型背景墙上的格栅和波浪造型简洁而灵动,原木色的窗框、饰面点缀其间,多了一份家的温暖。咖色的 B&B Camaleonda 的三人位模块沙发和墨绿色的螃蟹椅更加突显了整个区域的色彩和温度。
温暖的阳光通过四扇大落地窗,肆意地倾泻在客厅的每一处角落,带来极致的舒适、惬意。
镂空设计的白色楼梯,配以通透的玻璃扶手,不仅展现了空间的深度和立体感,更提升了艺术性和美感。白色阶梯被阳光照得愈发洁白轻盈,如回旋而上的琴键,弹奏出一曲光影变奏曲。
挑空区二楼的飘台,采用框景的设计手法,整体包了原木色窗框,更凸显出空间与空间的透射关系。
无论从横向还是纵向来看,视线都是能穿透镂空的楼梯尽情延伸……
近 6 米高的电视背景墙为上下两部分拼接的设计:上部白色墙面以石膏板叠层打造简洁的立体效果,下部电视区和地台选用米灰色进口罗威莱姆石整体铺贴。一组原木色通顶的高柜内嵌雾化壁炉,与朝南的立面连接为统一的整体,更有拉伸层高的视觉效果,凸显出客厅的纵向张力。
如白色珠链一般的客厅主吊灯,来自英国灯具品牌 Cameron Design House。
空间流转间的互通始终贯穿于全屋,让每个角度都能有开阔的视野。
02# Kitchen #
开放式中西厨由餐岛台和一字型橱柜组成,超大的落地窗外是满眼的绿色,享受着和户外无边界的融合。
03# Dining room #
餐厨一体化的设计,让厨房和餐厅融为一体,创造出更为开放舒适的居住环境。打开了中段的采光后,打造出明亮宜人的用餐和烹饪环境。整墙白色收纳柜则为厨房、餐厅提供了充足的储物空间,实用的同时也提高了整个空间的美感和时尚感。无论是烹饪、用餐还是家庭聚会,餐厨一体化设计都能为您带来更为便捷和舒适的生活体验。
纵向横梁结合拱形设计和丰富的灯光层次,在保留原顶高度的同时,也拉长了空间的进深。
04# Bedroom #
三楼为主人房与儿童房区域,两间卧室规划在一个楼层更方便父母照顾幼儿。朝南主卧顶面原始为坡顶结构,我们更倾向尊重原结构,保留原始层高,摒弃严肃打造休闲放松的度假氛围。
阳台封闭后与卧室融为一体。阳台区整体抬高的地台,则为整个卧室带来了更立体更丰富视觉效果。
独立浴缸设置在卧室中也是一大亮点:因为度假别墅这一属性,让屋主能够接受这种主卧放浴缸的形式,妥妥地将度假星级酒店的感觉搬进了家,带来更加亲近自然的沐浴享受。
收纳柜从主卧一直延伸至整个过道,达到惊人的 9 米长度。封闭门板和玻璃的穿插设计,避免超长衣柜单一材质形成压抑沉闷的感觉。
收纳柜的对面设计了梳妆区,也可实现简单办公。
儿童房为朝北的一个露台改造而成,粉嫩的配色和儿童家具充满温馨与童趣。整面的落地窗加上顶面开洞,采光甚至超越了朝南的主卧,小朋友则可以实现躺在床上看星星月亮的小愿望。
05#sutdy #
二层上来的挑空区可以俯视一层,并产生直接的互动,这是别墅生活不可取代的优势。靠北的整个空间规划为集学习、游戏、休闲为主同时兼具临时留宿之用的多功能区。楼梯利用了原始天井的位置,天然就是一个挑空区。从底楼至三楼,采光逐层增强,白天的阳光从不同角度投射进楼梯间,光与影的变幻让上下楼梯颇有种踏在云端的感觉。
宽敞的书房分为办公区和休闲区。休闲区整体抬高设计为地台的形式,靠窗边,白色百叶帘轻轻摇曳,洒落阳光,给房间带来柔和的自然光。这里是一个完美的阅读角落,可以坐在这里,安静地享受阅读带来的愉悦。
06# Toilet #
公卫设置在二层的走廊上,采光来自客厅挑空区的一面固定玻璃窗,百叶帘控制光线并可保护隐私。
07# Basement #
地下室作为相对独立的空间,设计上会更加大胆开放一些。本案地下室设计为圆形下沉式的客厅,配以相应的圆形吊顶,同时保留了丁字梁,不仅能够营造出独特的空间感,同时也让整个别墅看起来更加多元化。拱形壁龛书架呼应了圆形的设计元素,同时也注入了活泼俏皮的感觉。整墙镜面的运用也让室内的视觉效果得到了延伸,营造出更加宽敞和明亮的氛围。
客服
消息
收藏
下载
最近












































