查看完整案例


收藏

下载
项目名称:曲江大城 • 雍宸
项目风格:现代简约
项目面积:254㎡
主案设计:武登高
深化设计:王磊
本案面积 254㎡,追求极致的简约干净的家,去除多余的装饰和繁杂的元素保留空间的纯粹感。简洁的线条和明确的几何形状,强调结构和形式的简单性,实现功能性和视觉上的整洁。体现家的个性又能满足家与的审美需求和功能需求。
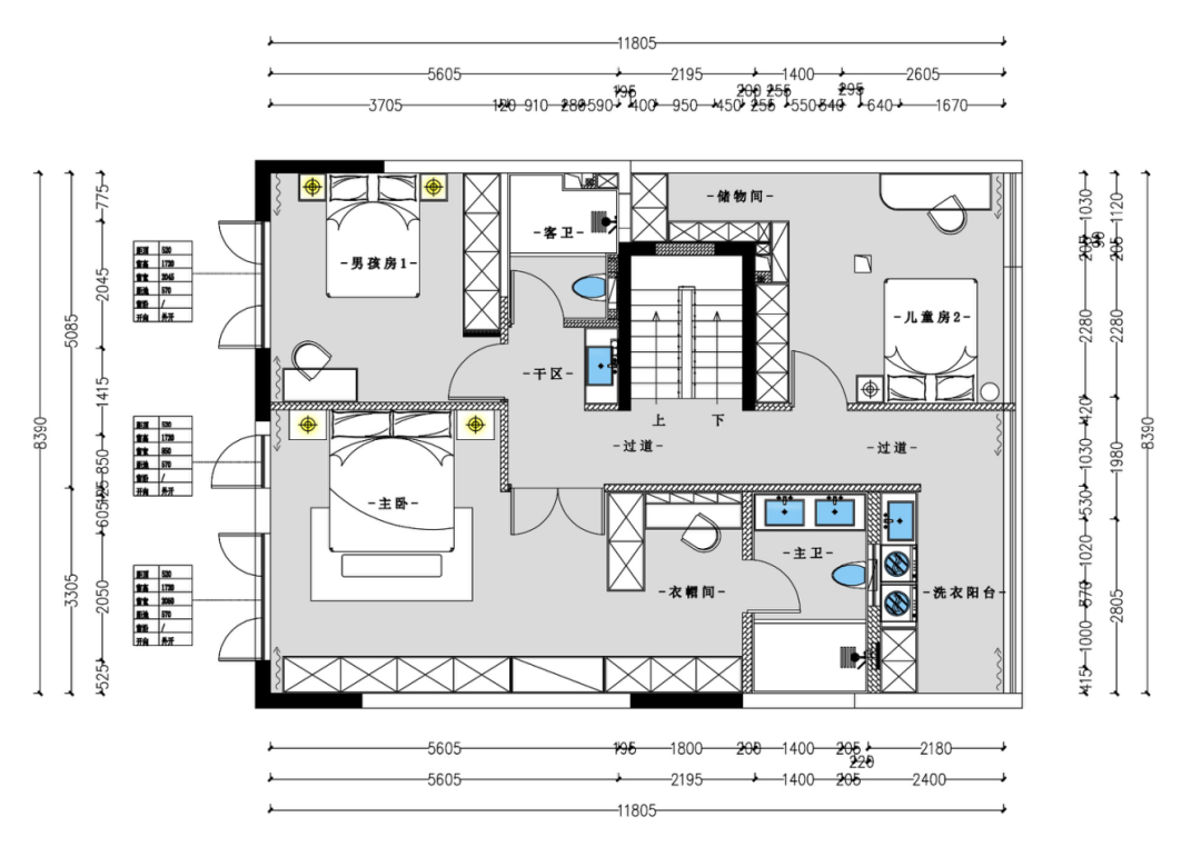
空间平面图
易高国际设计作品
一楼平面设计图
▲入户
▲入户
简化入户通道装饰,打造简约空间,让业主回家的心情得到放松,以艺术大板作为空间的装饰品,提升空间艺术氛围彰显家的品味。
▲餐厅
▲厨房
餐厨空间映入眼帘,以岛台与餐桌拼接作为餐厅主区域。线条简约流畅衬出空间层次,餐厅设有西厨满足品质生活需求。采光窗台也利用起来,小小收纳兼顾美观与实用,充分利用家的每一处空间。暗色调藏酒柜,珍藏浪漫。繁忙的生活当中也不忘细细品味。
▲客厅
▲客厅
无边界的设计让家功能区之间互相之间保持互动,光影在空间之中游走。客厅采用无主灯设计,利用灯光搭配简单色彩,调节家中氛围,保留空间的纯粹,回归心灵宁静。
▲一楼卧室
▲卫生间
一楼客房,适当加入暖色调元素让空间更显温馨。让居者感到舒适,静享生活美好。
空间平面图
易高国际设计作品
二层平面设计图
▲二楼主卧门厅
▲二楼主卧
▲二楼主卧衣帽间
▲二楼主卫
二楼为家中静区,以其干净、利落的线条和简约获得业主芳心,赋予了空间更多的舒适感和温馨气息。主卧门厅以爱马仕橙作为点缀,让整个空间衬得明亮,色彩层次丰富。以衣柜作为间隔划出独立空间作为衣帽间,注重打造品质生活。
▲儿童房
▲洗衣区
儿童房简单之中多了一些趣味性,设计梁柱增加空间动线,墙面卡通图案栩栩如生带着童趣,空间温馨简洁。定制收纳柜功能多样集展示收纳与一体,节省空间增加空间美感。
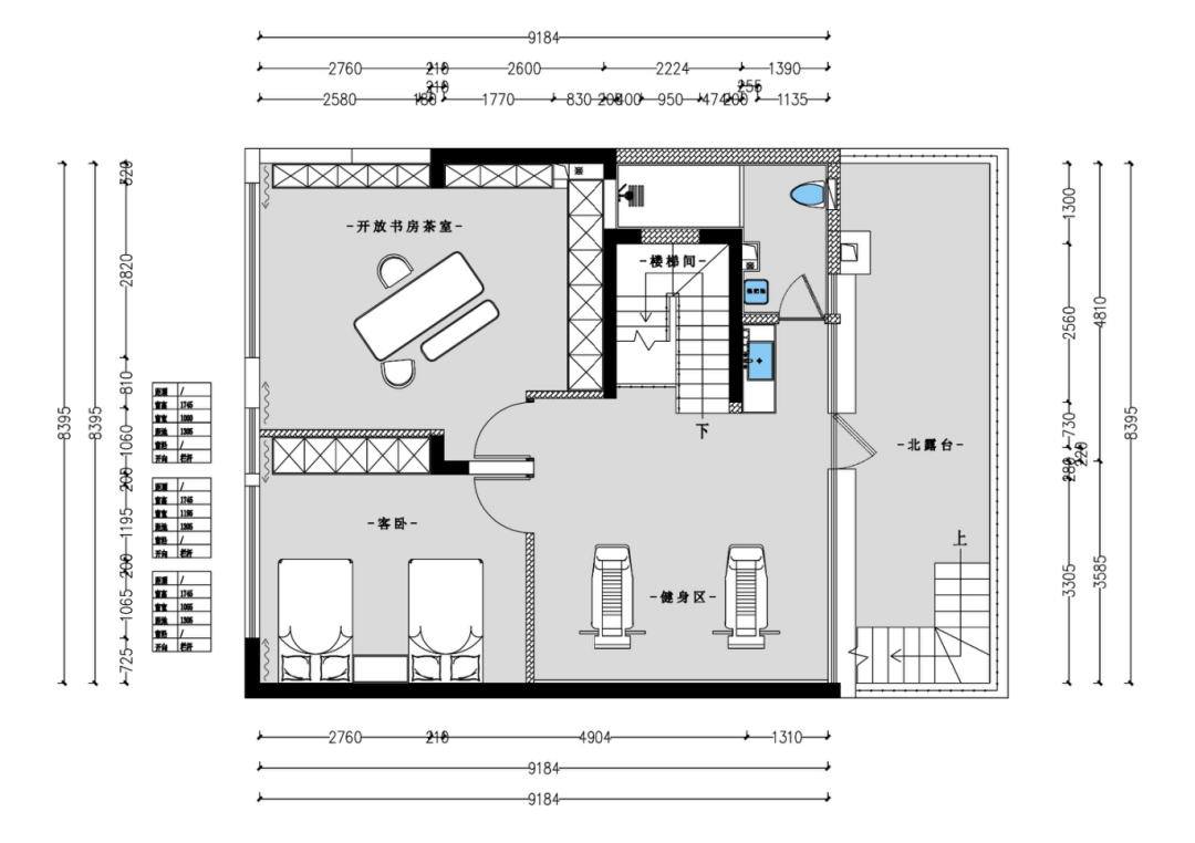
空间平面图
易高国际设计作品
三层平面设计图
▲书房
▲健身区
三楼书房,闹市中的一片宁静之地。利用深色沉木书桌营造空间气氛,营造韵味,使它成为一个能够滋养心灵的理想空间。
▲客房
▲卫生间
三楼客房摆放双床,酒店式设计让居者更加便捷,选用棕色调和布艺材质,营造出温馨的居住氛围。床头光影艺术让空间保有格调。卫生间采用纯灰色,注重品质的打造。极简即高级。
关于设计师
武登高
中国室内注册设计师
注册号:ZB20803174
毕业院校:西安美术学院
设计理念:用艺术的眼光雕琢生活
设计风格:中式、简约、欧式极简
从业时间:18 年
易高国际创始人、设计总监
2017 年瑞典色彩学院色彩专业结业
2004 年--2010 年北京元洲装饰首席设计师
2011 年--2013 年陕西九朝装饰首席设计师
2013 年至 2016 年北京峰上大宅装饰专家设计师
2009 美化家居设计大赛三等奖
2011 获陕西省优秀设计称号
2012 筑巢杯设计大赛优秀设计奖
2013 住宅装饰行业优秀设计师
2014 住宅装饰行业优秀设计师
2015 第三届【锋尚·京瓷杯】新中式设计大赛最佳功能布局奖
2016 第三届中国建筑装饰设计艺术作品展获铜奖
2017 居然顶层精英设计师
2017 年中国(陕西)设计杰出青年
2017 第四届峰尚杯新中式设计大赛最佳方案奖
2017 首届禾记万佳杯设计大赛优秀奖
2017 创意生活设计金蝴蝶奖
2017 商业旅游地产年度优秀住宅公寓设计师
2017 评选为亚太空间艺术大师
2018 金楠奖设计大赛优秀奖
2018 获得第二届西安建筑装饰设计“青年设计师领袖”称号
2018 设计作品《中海百贤府》获得第二届西安建筑装饰设计别墅类银奖
2018 设计作品《龙湖香醍》获得第二届西安建筑装饰设计样板间设计优秀奖
2019 金堂奖全国百强先锋榜百强设计师
2019 年度腾讯家居搜狐焦点家居杰出设计师
2019 德国高仪住宅精英榜 TOP108 匠
2019 蒂森克虏伯杯别墅设计大赛经典设计奖
2019 第三届西安建筑装饰设计奖“年度青年设计师领袖”
2020 中国设计新青年评选“城市举荐官”
2020 设计作品《石中木》获得陕西地区优秀住宅软装设计
2021-2022 中国新地产设计大会年度优秀别墅设计师
2021 金住奖-中国百杰居住空间设计师
2022 中国国际空间设计大赛十佳设计师
客服
消息
收藏
下载
最近























