查看完整案例


收藏

下载

翻译
Architects:AKA
Area:200m²
Year:2023
Photographs:Alina Lefa
Lead Architects:Katerina Apostolou & Minna Colakis
Contractor:Alexis Koukourakis
City:Athens
Country:Greece
Text description provided by the architects. This renovation aimed to create warm multifunctional spaces throughout the two floors of a characteristically brutalist duplex apartment that are fit for a young family while embracing the existing features and geometries of the floor plans. The dominant materials are industrial: exposed concrete walls and ceilings, hardwood floors, and strong metallic elements.
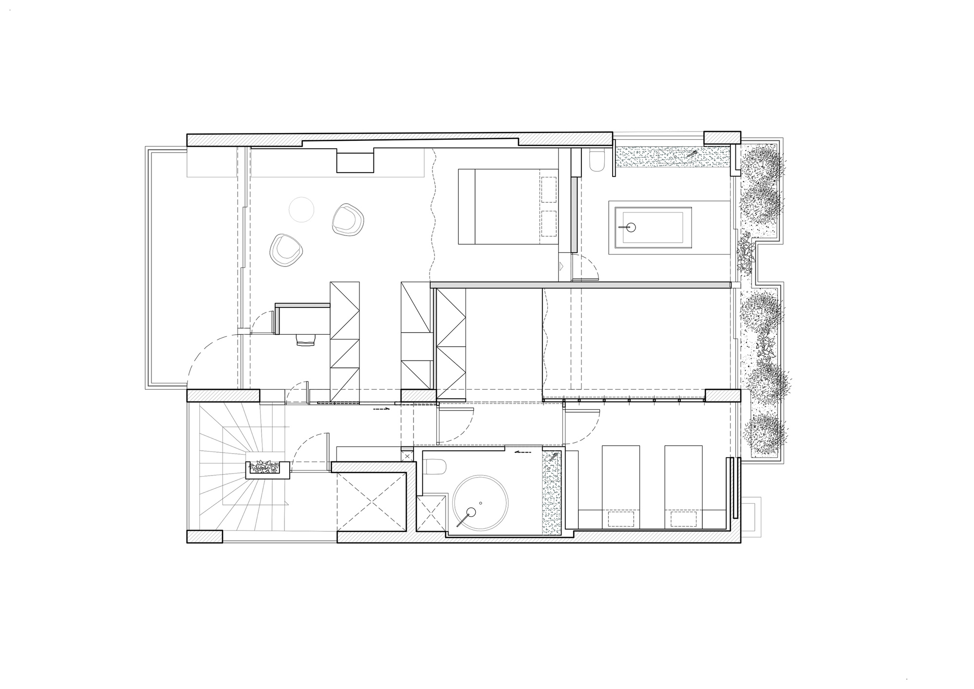
The apartment is composed of two floors and a rooftop garden. The lower floor hosts the family’s living quarters (a large master suite and two children’s bedrooms with auxiliary spaces), while the upper floor is an open plan living area, organically composed of various seating and dining spaces, and an open kitchen. A winding concrete staircase guides visitors from the main entrance on the lower floor to the more public upper floor, while a floating metal staircase offers a connection to the rooftop terrasse.
The first major intervention involved the application of a veil of translucent varnish onto the previously grey concrete throughout all spaces, offering levity to traditionally heavy material. An aqua blue was selected for the lower floor, and a light pink for the upper floor. The treatment successfully transformed the overall atmosphere of the household, adding a touch of playfulness.
The incorporation of custom woodwork was the second major intervention, focusing on the living space on the upper floor. On the upper level, the building’s concrete skeleton was strategically encased in geometrically complex and aesthetically pleasing wooden elements, offering a sense of warmth and a dash of color. Echoing the lines of the concrete beams, a series of wooden bookcases were hung from the ceiling. Metal elements throughout the spaces were also treated for better incorporation into the new color scheme: bookshelves, railings, and the floating staircase were painted petrol blue. The application of mirrors against the staircase wall multiplied the impact of this poetic central piece.
Several pieces of furniture were also designed and constructed. The circular kitchen table, made of wood with different varnishes, was designed with a small inbuilt storage bin for the children’s toys. The dining table, composed of linear light blue and wooden surfaces, was topped with a fabric pendant light that was designed as a playfully oversized lampshade.
Project gallery
Project location
Address:Athens, Greece
客服
消息
收藏
下载
最近


















