查看完整案例


收藏

下载
项 目 地 址:上海市黄浦区
设 计 单 位:7KK DESIGN
设 计 师:麦 古 一
突破传统会所装修理念,打造魔都精致艺术典雅体验馆,设计师为老洋房特有的古典韵味海派风融入当代流行轻奢风元素, 赋予了老洋房别样的空间体验,彷如穿越,在老上海情怀跟魔都风尚之间徘徊,
营造出
集
美容护肤
休闲娱乐一体的综合会所,让您在艺
墅馆体验到
一站式的服务!
拍摄完工毕业照时恰巧赶上下雨,雨中拍摄外景很有情调,很符合老洋房古典韵味。
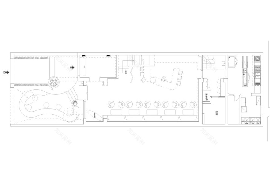
室外庭院约54个平方,石材与灯光的结合在雨水中里折射出来的光影效果很有梦幻感,光感的LOGO设计和墙面弧线造型勾勒出的艺术效果恰到好处,沿着台阶上去一眼就被大厅玄关个性造型所震撼!整个墙面用特制的木方造型装饰着在灯光的照射下散发出很强设计感味道。
每个热爱生活拥有艺术梦想的人,心中都住着一个梵高。这幅画,也与屋主内心的热烈跟梦想吻合,一样有着一段属于自己的故事,同时也赋予了老洋房独特的灵魂气质。
定制布艺软包卡座,加上对面墨绿单人沙发,可以容纳20人,卡座的设计节省空间,让来坐的客人感觉很有安全感,整体感觉也很有情调哦。
[url=]收藏[/url]
即便是下雨天,室外的自然光融入室内氛围也是极好,可以静坐在这,等待一场华丽的邂逅,留下一段美好的记录。
吊顶设计增加空间层次感,延伸空间视觉感,大面积菱形地板拼接很有品质,墙面浅灰色墙板设计,定制金属色系腰线搭配质感灰镜,精选的金属元素艺术吊灯和桌面上金属元素的烟灰缸和装饰品,轻奢风的体现很有小资的情调。
异形吧台的设计,在整个一楼空间很有特色,既有收银功能,也方便为客人提供酒水饮料,实用又美观,上面摆放咖啡机,制冰机等,转角一侧提供吧椅可以休闲品酒喝茶,很小资。
吧台下侧嵌入灯带,吧台上方定制造型灯模箱和旁边垂钓下来的简约小吊灯,整个灯光的设计营造一种异样情调和华贵感觉,运用光线的错落营造出华丽而浪漫的气氛。
正对台面一侧弧形的绿植造型墙很是养眼,大面积绿色让整个庭院很有生机。户外雨伞的搭建让下雨天也可以坐在这聊聊天、喝喝茶,静下心来细细品味生活、感知生活、享受生活。仿佛远离喧闹的都市生活,找回那种远离尘世的清净。
简约而不简单的门厅玄关设置,有木条搭建出凹凸有致的个性墙面,吊顶上方白色轨道灯光照射在墙面上,长长短短的影子深深浅浅的光影很有特色。
选择落地式的花器让植物在空间中的存在感更足了,黄铜质地带来的金属质感让人眼前一亮,放在大厅一角作点缀搭配墙面上独特的花艺造型,让进来的每位客人都能感受艺术与自然结合的浪漫氛围,为整个一楼带来与众不同的独特美感。
卫生间墙面选用绿色艺术瓷砖拼接干净清爽,黑色点状大理石台面高颜值容易清洁打理,深色木饰面门板选样质感大气,地面黑白色瓷砖拼接时尚经典。台面放置精选软装搭配增加艺术感。
美甲区一侧用弧形玻璃金属包边作为和走廊的隔断,让室内与室外拥有一种和谐、庄严的感觉,弧形的设计出来放大空间感同时也带来一种独特的、百看不腻的永恒美感。
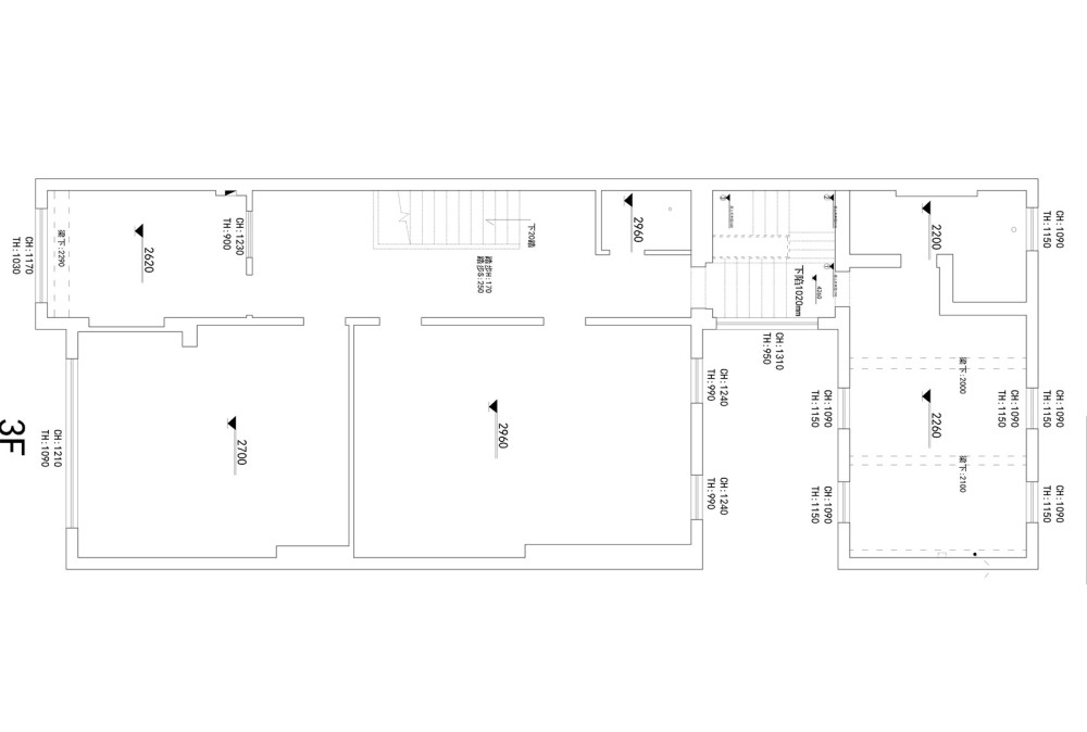
三楼整个走廊都带着独特的风情,做旧的木饰面,典雅清新纹理的壁纸,多块的彩状块玻璃移门,既洋溢现代气息,又保留着中国古典韵味。
走廊一角简单的装饰柜上面摆放艺术挂画,人体装饰艺术行为模特,每一处都充满着浓郁的艺术氛围。
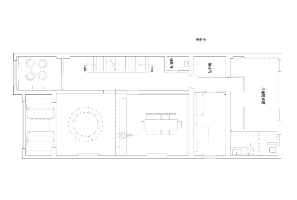
二楼餐厅包间很有老上海情怀用餐包间8.6个平方。一整面墙用一副古老的风景建筑作为装饰,做旧纹理的餐桌搭配,很有质感的生活品味。
大理石纹理桌面搭配金属色系精致餐具点缀,绿色装饰吸睛增加食欲,一场高大尚的视觉盛宴即将开始。 卡座上方开放式展示柜摆满了人工手作的菜系艺术品和艺术装饰品,在嵌入式灯带灯光的映衬下,通透明亮,为餐厅空间增加一抹亮丽的风采。
二楼餐厅大包间31平方,弧形造型空间划分,大面积窗户设计,光线很充足,靠窗划分出休息空间,自然光线的融入很有意境感。靠墙装饰柜摆满各种复古情怀艺术品。灰色沙发质感舒适,很适合家庭聚会或者朋友聚餐,公司聚会哦。
生活需要仪式感,精致的餐厅设计可以让用餐变得更加有仪式感!
墙面选择深色木饰面板与纯度比较较高的莫兰迪色石膏板拼接,既增加空间的厚重感,充满低调雍容的味道,又增添当代时尚潮流的艺术审美。墙面鹿的装饰和另一侧艺术挂画的搭配仿佛在诉说一段故事,等待一场盛宴。
二楼走廊空间楼梯扶手和墙面木饰面及门的选材色调厚重,加上经典花纹壁纸的拼接,充斥着浓郁的中国古典风情,清新典雅。
三楼主要提供美容护肤体验,墙面戏曲装饰画很有腔调,体现中国风不一样的艺术风采,赋予老洋房独特的人文情怀,文化特色。用一整面墙的镜子装饰来拓展有限空间的明亮度和开阔度。吊灯的处理也让空间更具层次感。
美甲区在美容护肤走廊的另一侧,美甲区墙面橘黄色乳胶漆色彩的搭配给沉稳的老洋房带来青春活力的时尚气氛,一些金属色系的软装搭配精致小资又不失品味。
一楼到二楼,墙面一副色彩明快的装饰挂画,清雅莫兰迪色裙摆护墙板装饰,精致的双面灯光壁灯,在光源的映衬下,整个楼梯空间给人以幽雅清新之感。
客服
消息
收藏
下载
最近








































