查看完整案例

收藏

下载
列奥纳多·达·芬奇曾说过这样一句话:“简单是极致的精致。”将繁杂与喧嚣的影响隔绝,以人为本地思考空间与居住者的关系,总会令人在时光里反复地爱上生活,赞叹纯粹的美学内涵。
本案是苏州南门世家280㎡的大平层,拥有怡人的景观视野,为了契合新婚夫妻的个性与生活追求,设计讲究简约主义的精神,通过多元化创作手法,细腻地勾画出空间的艺术性,让知性、高雅、风尚的氛围贯穿日常,带来家的温馨与享受。
案例名称:南门世家
房屋面积:280㎡
房屋户型:五室两厅
装修风格:现代简约
文案策划:修合文化
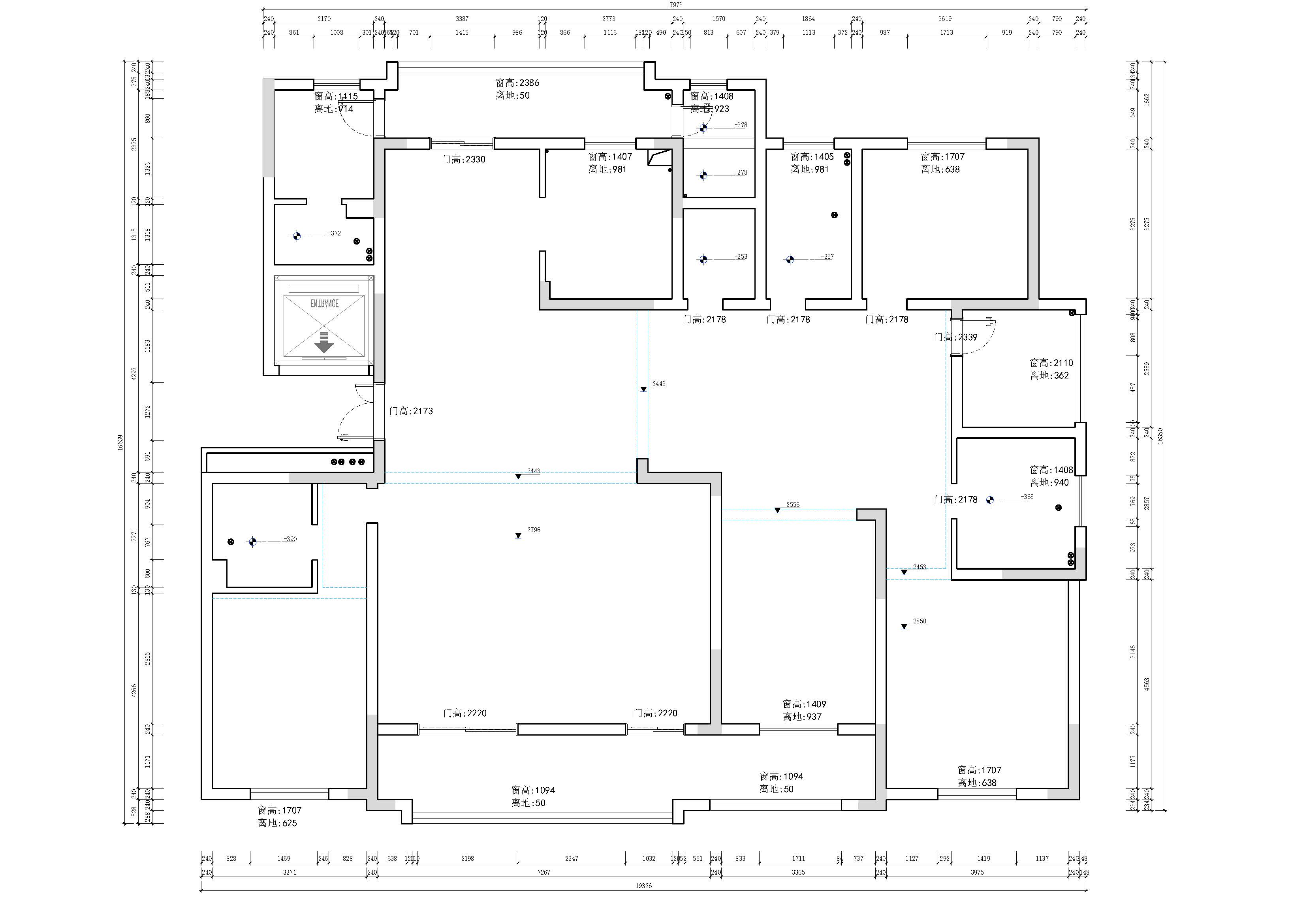
▼ 原始结构图
▼ 平面布置图
01 玄关
玄关实现了延续的视觉妙趣,融于主焦点,又独立于个体。亮泽质感展现出动态的不确定性,悄然化解了架构与色调的生硬感与清冷感。层次突破平面维度,唤醒简洁艺术之美,在统一格调中添置了收纳功能。
02 客餐厅
留白智慧,汲取光的语素、纹样的生命力以及质感的跳跃性,构筑出中性温润却蕴含张力的空间格局与设计细节。摒弃凡俗的简约定义,量身打造大气优雅的公共场域氛围,将家人的情感紧密联结,亦可邀好友欢聚,享受生活乐趣。
互通的客餐厅,释放着自由气质,从宏观把控高级灰的简约性与可塑性,给女主人预留出足够表达艺术修养与生活仪式的空间,随着光晕的蔓延与反射,渐渐波动了地面的“涟漪”。仿佛一叶小舟,驶向轻盈与稳定。
阐述变化的奥义,于黑白灰画面里穿插深木色餐椅,交织出文化与自然的独特性,绽放了石纹的亲切情愫与剔透饰面的灵动美感,刻录下美酒佳肴映入眼眸,流转鼻尖,触动多重体验。人间烟火,幸福你我。
03 厨房
透明的推拉隔断,承载着实用功能与美学价值,保持了空间的清洁性与美观性,一面渗透出厨房的暖融烟火,展露深色与浅色间置的节奏,一面播放人情味充盈的场景,既是滋养味蕾的世界,也是呵护心灵的私属之境。
04 过道
设计元素整体统一呼应,删繁就简,科学分道,以笔直路线导引去向不同区域的步伐。无主灯设计与嵌入式灯带配合,提供了温和舒适的光源,凸显精选出来的艺术品,高高低低,有疏有密,诉说着深刻的艺术思想。
05 卧室
增加木元素的分量,让物的特质带领人沉淀情绪,点缀宝蓝色布艺与萌宠造型,联结装饰画的艺术气质,表达出居住者的个性和品味。感受着清新、静谧的氛围,躺睡在床上,安全感十足,呼吸渐慢,畅游美梦。
06 卫生间
划分出干区与湿区,并将干区与主空间串联,巧妙构造长条立面的转折韵律,带来无限便利。冷中含暖的砖面引领几何形态作展示空间,透露出颇有意趣的生活情调。悬空洁具和雅白色调相配,舒缓了小空间的紧张体验。
客服
消息
收藏
下载
最近




















