查看完整案例

收藏

下载
重庆装饰公司俏业家作为全案设计领先品牌,专注为业主提供基装、全案、整装多模式、全品类的一站式高品质装修服务,是值得信赖的重庆本土装修品牌。本实景案例是重庆俏业家装饰设计师为中交中央公园雅颂140平四居室户型专门打造的现代简约风格装修案例。
——重庆中交中央公园雅颂案例内容详情——
楼盘:中交中央公园雅颂
区域:重庆市渝北区中央公园
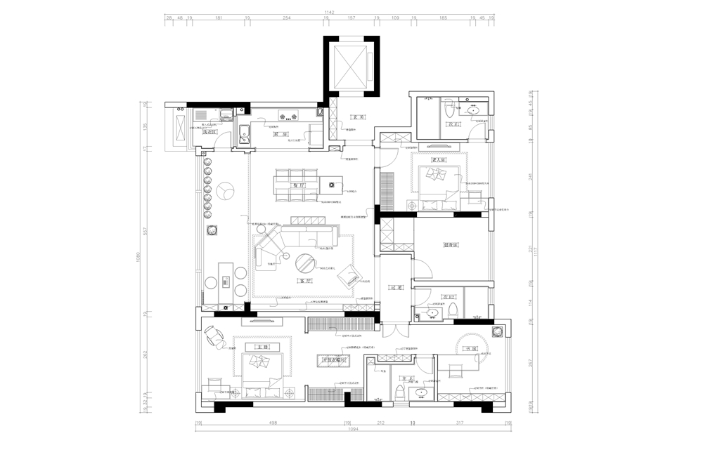
面积:套内140平
户型:三室两厅
装修风格:现代简约
设计师:陈涛
【业主需求】
本案例来自一个三口之家,年轻的业主是一名飞行员,对生活品质有着极高的追求,喜欢简约的风格,想要一个温馨高级的舒适家。由于大部分时间在全国各地飞,十分辛苦,所以希望待在家的时候能够得到彻底的放松,平时主要是父母在家,整个设计也需要考虑他们的便利性和舒适性。
【设计思路】
设计师在原户型的基础上进行了一些调整,整体以现代风格为主,搭配黑白灰+原木的简约配色,辅以布艺、木格栅,用材质本身的色调与肌理表达空间的质感,简约却不乏精致。
原户型面积140㎡,是当下流行的横厅、双主卧式设计,1.8米超宽景观阳台,整体采光通风效果不错,唯一的缺陷是厨房面积不大。
①厨房设计改造:原本的厨房面积过小导致整个厨房操作台面无法满足正常的生活需求,拆除家政间的部分墙体,让厨房往外推移,在这里安置台盆,增加整体空间面积。
②卧室设计改造:将原户型的4个卧室,改成了2个卧室。主卧与相邻次卧打通,变成带独立衣帽间的套房设计,保留一个老人的起居室,另外一个卧室改成健身休闲空间。
③景观阳台改造:家里的老人平时喜欢喝茶,希望有一间茶室,所以在设计时拆除了景观阳台的推拉门,将景观阳台纳入客厅,在这里抬高地面做了一间茶室,用来休闲放松。
④卫生间设计改造:因为原位置是空调外机区,故将原有设备区纳入到室内,将室内空间校正,增加使用面积。
【细节刻画】
1、客厅装修:客厅区域选择灰色地砖通铺地面,电视墙面运用深灰色大理石为背景,与地砖相呼应,层次分明。无主灯设计保持整个空间简约高级的调性,顶上的灯带增加了整个空间的氛围,简单开阔的客厅给人一种放松感。
2、餐厅装修:这个岛台设计,下面一层是空的,里面是个小冰柜,可以用来存放饮料食品等。餐岛一体化设计使整个区域干练简洁,同时又能够满足一家人的用餐需求,颜值与实用兼得。
3、厨房装修:原始厨房的空间不大,采光通风不足,所以采用了开放性设计,餐厅与厨房通透串连。厨房的空间以原木色和白色为主,取消了传统的油烟灶具,直接选用集成灶,既节省了空间,使用起来又更方便。
4、茶室装修:阳台内包进来做了茶室,在客餐厅地板的基础上抬高,围绕地台内侧隐藏了一圈灯带,当夜幕降临的时候,打开灯带,让整个地台空间更显精致和温馨。茶台、榻椅组合搭配,使得空间的功能更具多样化,父子俩相对而坐,品茗对弈,好不惬意。阳光透过斑驳的干竹和木百叶撒进室内,让整个区域的休闲氛围得到更好的释放。
5、主卧装修:主卧简约舒适,在配色上选择海盐蓝和浅咖色进行搭配,和客厅相呼应的无主灯和隐藏灯带,加上原木色的床头背板和天蓝色的背景墙面乳胶漆让空间更清新雅致,带来舒适静谧的睡眠氛围。
6、衣帽间装修:开放式的衣帽间配上中间置物柜的组合形式,让衣帽间变得多功能,也可以作为首饰柜使用,可以用来放置手表、配饰等小物品。
7、书房装修:书房整体色调更为沉稳大气,阳光透过百叶窗洒进室内,规则的线条设计与灵动自然元素,在这一刻融为一体,为新家增添了生活的气息,业主可以尽情享受惬意的午后阅读时光。
8、老人房装修:老人房注重舒适安全以及收纳空间,整体以简约自然为主,灰咖色床品+浅灰色乳胶漆墙面及素色硬包的搭配让卧室更显温馨感,让父母有一个身心放松的睡眠。该房间没有放置床头柜,布置了一张书桌,方便老人在抽屉里存放一些常用物品,书桌台面老人可以用来读书看报,让老人也有自己阅读休闲的空间。
9、卫生间装修:卫生间以灰调为主,通铺灰色哑光砖,给人简约干净的感觉,搭配原木色地柜、黑色置物架作为调剂,可以作为日常储物空间,细节处的处理让卫生间看起来更整洁。
客服
消息
收藏
下载
最近





























