查看完整案例


收藏

下载
曾看过一部电视剧叫奋斗。陆涛和他的好朋友在一个厂房里修建了属于他们自己的乌托邦场所。同样我们在苏州也找到了这样一地儿,建造了我们自己的乌托邦之地:橙色几何。个别王斌、小培、小培、常集雁谢城陆文伟向往徐华周吟秋没有风格苏州 400 平米。2016 年也是这个时候,也是我们这班人我们这群人,里有设计师房产策划人酒店运营管理者广告人蹭吃蹭喝者。平时聚集的次数多了就有这样一个想法,建造一个属于自己的茶室会所吹牛吃火锅的地方。橙色几何就是我们这乌托邦的名字,代表着我们还有激情,代表着我们还有棱角。在这个社会里希望我们还是充满激情,做着自己的事情,不会被磨的圆滑棱角还是依然存在。说干就干。
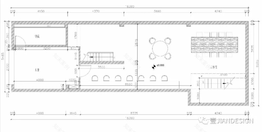
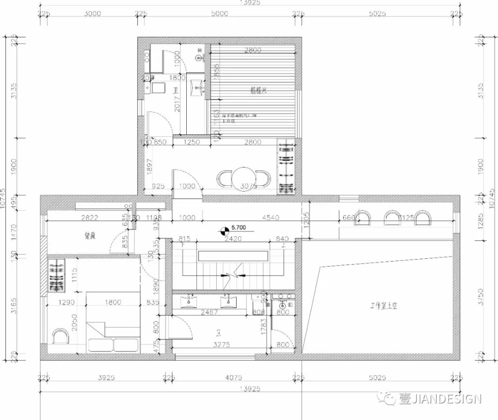
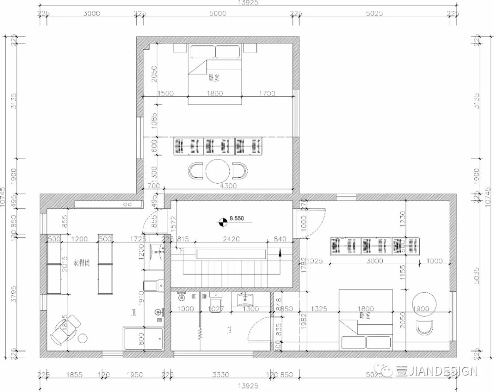
这个地方就是我们最终找到的场所整个 4 层连地下室。公共区域放在一楼设置茶室开放式厨房影视厅,地下室是公用的办公区(主要是打麻将)。
就这样开始设计了
还是这几个人 5 天之内初步方案出来
自此我们就走上了不归路余下的时间就成为了玩房子的时间了从此这班人就与闲暇时间巧妙的擦身而过
院子与地下室的连接口基本成形
楼梯绝对的既经济又有逼格的做法钢板生猛的固定
为了茶室的灯
隔壁王二狗家的树枝惨遭殃
妹子亲自上场
大厅的油画也是我们亲自画我们创作的原则就是看心情
为了水泥效果,嫌弃瓦工师傅批得太整齐,设计师也是拼了亲自上。
小院
茶室的小角落
专门为了某人而留
窗外的一年四季
不同的景致
不同的心情
家具我们也是特地选择可以搬动,可以根据我们聚会主题随意组合,可以一起玩杀人游戏,一起带着自己家的娃儿,一起搞一个自己的派对,哈哈,生活不只有工作,还有我们的家庭,也还有我们没来得及走失的情怀。
感谢一路走来的伙伴一路支持我们的朋友。
400 平方的面积我们把自己的生活与爱好进行叠加重合历时半年。
整体预算含家具电器 35 万的预算我们进行了尝试。
虽有不足但我们很知足。
对于生活的感悟即是你对设计的感悟。
客服
消息
收藏
下载
最近























































