查看完整案例

收藏

下载
米洛映象 | 常德今日兰亭别墅:摩登碰撞古典,游赏庄园之趣
序言
—
THE PREFACE
我觉得生命是一份礼物,我不想浪费它。你不会知道下一手牌会是什么,要学会接受生活。I figure life is a gift and I don’t intend on wasting it. You never know what hand you’re going to get dealt next. You learn to take life as it comes at you.
&
/
客厅&
The sitting room
/
高贵、典雅、精致、大气为本案的设计宗旨,在空间及软装设计上遵循美式风格文化的精髓:温方尔雅、贵气逼人。空间主色调用尊贵红打造一个奢华与细腻并存的家居空间,淡雅的米咖色作为空间背景,增加柔和的温馨氛围。
Noble, elegant, delicate, atmosphere for the design purpose of the case, in the space and soft decoration design to follow the essence of American style culture: wenfang Elegant, expensive gas pressing. The main color of the space is noble red to create a luxury and delicate home space, quietly elegant rice coffee color as the space background, increase the soft and warm atmosphere.
美式风格家具造型典雅绅士,精致而富有气魄,细节处精美的雕花,典雅的纹路,使用纯铜物件及雕刻的桃花心木,给予人沉稳贵气之感。象征着富贵与气质的软装元素,在华贵大气的空间里组合,彰显出主人的高贵与精致的生活态度。
American style furniture modeling elegant gentleman, delicate and full of spirit, details of exquisite carving, elegant lines, the use of pure copper objects and carved mahogany, giving a person’s feeling is calm, noble gas. The soft outfit elements, which symbolize wealth and temperament, are combined in the space of showily atmosphere, revealing the owner’s noble and delicate attitude towards life.
餐厅&The restaurant/文化与贵气并存,亦不缺乏自在与情调,是传统美式家居风格的精髓诠释。随处可见的复古艺术挂画提升空间文化格调,形成强烈的视觉符号,达到极致的美与和谐。
The waves interweave and swell, and the silences of the flow pile upon pile like strings of nature, colliding with space to make a wonderful sound. Colour collocation combines layout to differentiate, demarcated, because of flowing line however and do not show curt, add a downy and refined distinctive charm on the contrary.
桃木隽永庄重,线条粗狂大气,优雅的灯饰与极富生命气息的植被消弭了空间的压抑感,呈现出一个经典与活力的感官空间。空间每个元素都蕴藏着卓然的审美品位,具有生活气息的就餐场景更显艺术格调。
The mahogany is meaningful and solemn, the lines are thick and wild. The elegant lighting and the vegetation with rich life atmosphere eliminate the sense of oppression of the space, presenting a classic and vibrant sensory space. Every element of the space contains outstanding aesthetic taste. The dining scene with life atmosphere shows more artistic style.
书房&The study / 典雅大气的书房空间糅合出别样的韵味,如思想者般稳重的理性之美渗透于细部,蓝色窗帘赋予空间沉静与静谧,更有一份经岁月积淀的睿智优雅。
The study space of elegant atmosphere is mixed together the lasting appeal that gives another appearance, if the sedate rational beauty like thinker penetrates at detail, blue curtain endows a space calm and quiet, have the wisdom grace that accumulates classics years more.
卧室&Master bedroom/卧室设计不刻意强调繁华,只流露出真实的精致生活情调。每个元素的点缀都承载着传统美式的复古气韵。祥云灯饰环抱而上,桃木线条勾勒出空间整体构造,风雅与意趣并存。
Bedroom design emphasizes not painstakingly flourishing, reveal real delicate life emotional appeal only. The ornament of each element carries the retro charm of traditional American style. Xiangyun lamp decoration and embrace, mahogany lines outline the overall structure of the space, elegant and interesting coexist.
金属边式作为空间的点缀,结合单人靠椅与茶桌,于落地窗前接受阳光的沐浴,营造时尚不失质感、典雅不失浪漫的空间氛围。
Metal edge style as the decoration of the space, combined with single chair and tea table, in the French window to accept the sunshine bath, creating a fashionable do not lose texture, elegant do not lose romantic space atmosphere.
家庭影院&Family cinema / 家庭影院旨在营造温馨宁谧的空间氛围,蓝与红的点缀使得空间自有独到的雅气。深色木饰面与纯黑顶面增强墅居大气的空间感,创造舒适、惬意的休闲环境。
Home cinema aims at building sweet and tranquil dimensional atmosphere, blue and red ornament makes the space has original elegant spirit. Dark wood veneer and pure black top enhance the sense of space in the villa atmosphere, creating a comfortable and comfortable leisure environment.
次卧&Second lie/次卧采用温暖的米咖色配色,以及极具线条感的床具,搭配圆形艺术灯具,沉稳大气不乏活力。床头深色点缀丰富了空间层次,结合自然景观的背景墙面,制造视觉亮点的同时给人一种张弛有度的休闲感。
The second bedroom adopts warm rica-colored matching colors, as well as the bed with a strong sense of line, with round art lamps and lanterns, calm atmosphere and vitality. The head of a bed is brunet adorn rich dimensional administrative levels, the setting metope that combines natural landscape, make visual window gives a person a kind of relaxation to have the recreational feeling of degree at the same time.
低饱和度的银灰不显张扬又极具时尚质感,低调的空间情绪缓缓蔓延开来。圆形艺术装置跳色点缀,精致优雅,格调非凡。窗边单人沙发的设立将空间舒适度拉满,与冬日暖阳共存惬意时光。
The silver ash of low saturation does not show make public to have fashionable simple sense extremely again, low-key dimensional mood spreads slowly come. The circular art installation is decorated with jumping colors, which is exquisite and elegant with extraordinary style. The single sofa by the window pulls the comfort of the space full and coexists with the warm sun in winter.
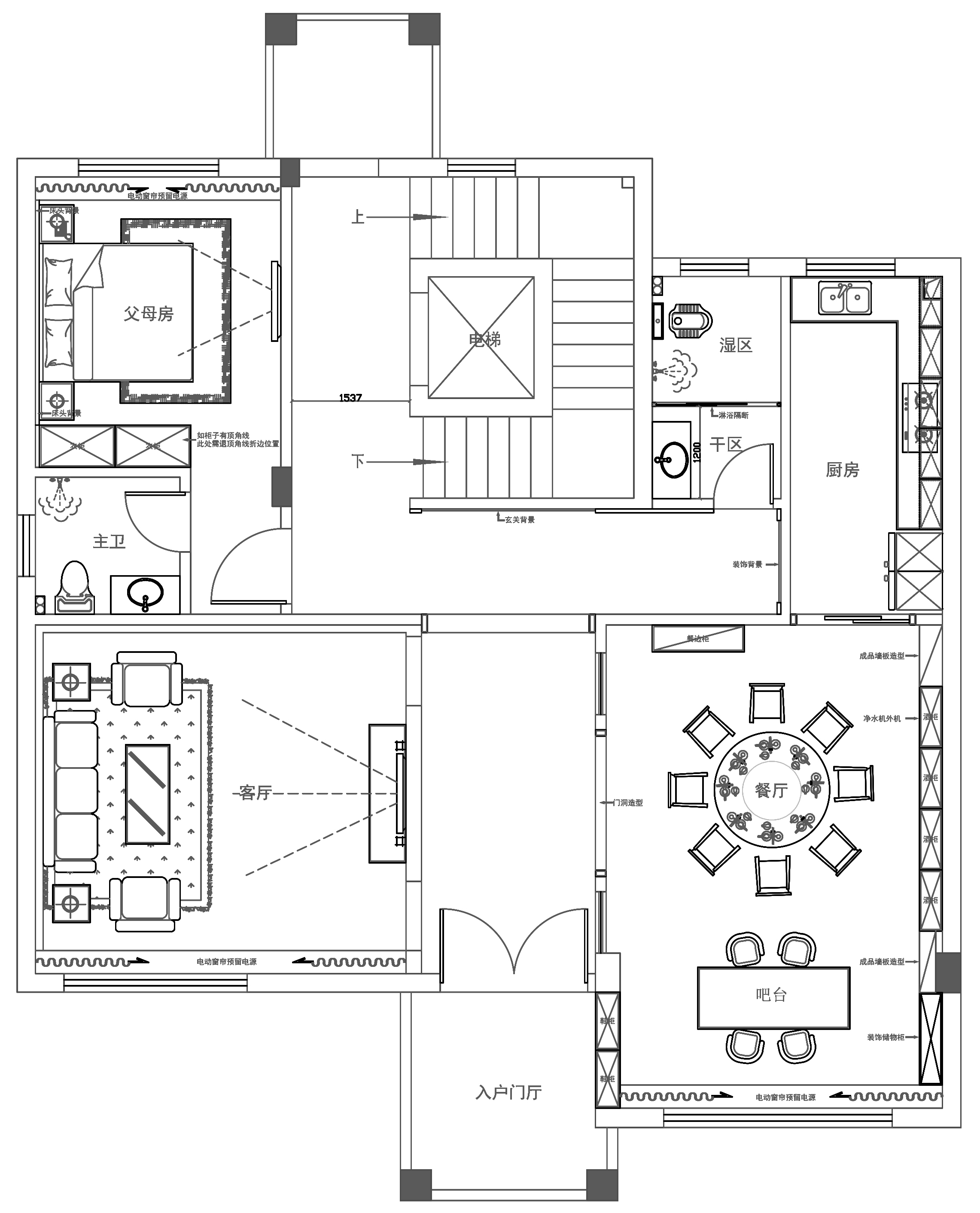
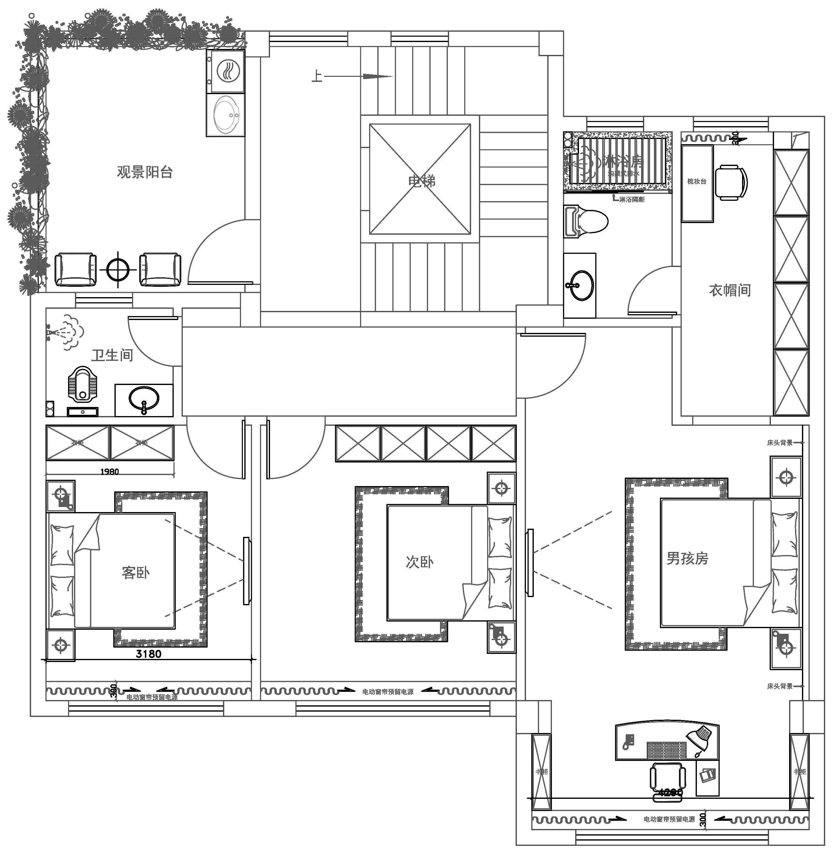
平面设计图
项目名称|常德·今日兰庭
Project Title | Changde Today Lanting
项目类型|别墅公馆
Type of project | Villa residence
项目面积|522㎡
Project area | 522㎡
项目地址|湖南·常德
Project Address | Hunan Changde
软装设计|米洛映象
Soft decoration design | Milo image
硬装设计|恒美建筑装饰
Hard installation design | Hengmei Architectural Decoration
项目摄影|如辰空间摄影
Project photography | Such as Chen space photography
完工时间|2021
客服
消息
收藏
下载
最近




































