查看完整案例

收藏

下载
原以为户型太大肯定会踩很多坑。原以为施工很复杂会返多次工。原以为装修到入住时间会很漫长。原以为会和设计师、项目经理多少有点摩擦。
△担心踩坑业主做了各种功课。结果没想到,和 DE 的第二次合作依旧愉快,仅用一年时间实现装修到入住,之前的心理建设有点多虑了。业主在其它平台分享装修过程的帖子里,也毫不吝啬的表达了对我们的认可,必须得给设计师和项目经理加鸡腿!
△收到来自业主的夸奖
楼层功能区规划
Functional planning
颜色搭配 Color matching
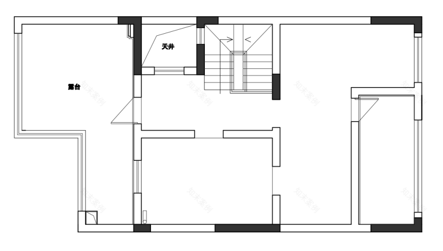
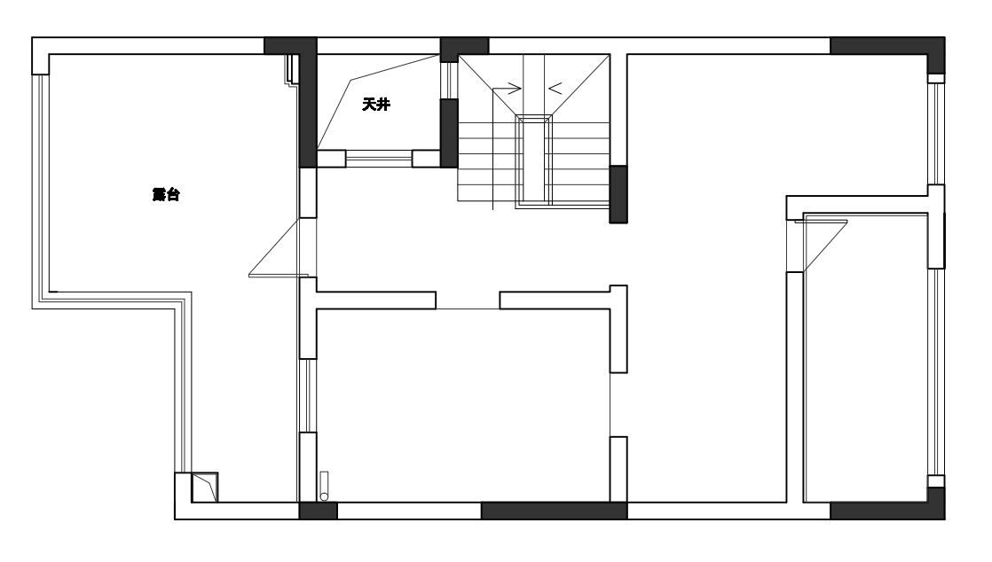
负二楼:厨房+餐厅+洗衣房+双车位
平面布置图
原始结构图
#原始结构改造
1. 车库与入户开门左右对称,适当内凹,形成门廊,增加入户仪式感;
2. 厨房下移到负二层做开放式厨房,重新规划烟道;
3. 餐厅上方挑空,增加楼上楼下互动性,解决楼上采光问题。
玄关位于负二楼,隐约可见开放式厨房,摆上木质家具和清新绿植,让单调的空间变得丰富起来。
餐边柜运用了整个空间统一的木质家具,木质与黑白的碰撞,为时尚的空间注入了不一样的感觉。
大岛台设计,让空间得以有效利用,橱柜和台面以黑白为主,高级感扑面而来。
木质圆桌与方形大岛台完美融合,让整个黑白灰空间瞬间有了一丝人间烟火气,并将餐厅空间做挑空处理,将楼下光线引到楼上。
负一楼
影音室+客房+储藏室
原始结构图
平面布置图
#原始结构改造
1.本楼层单面采光,楼下餐厅上空做挑空,引入自然光线;
2.结合原楼梯高度,现浇楼板与原楼梯平台适当下沉,保证负一楼空间能够使用楼梯不做调整;
3.取消原顶上卫生间降板,扩高卧室区域空间。
现浇楼板适当下沉,楼梯的选材同样采用木质系,让楼梯在整个空间不再那么生硬,行云流水般穿梭在温暖的家里。
安静的负一楼空间配置影音室,摆上舒适的沙发,树桩造型的茶几,成为了这个空间的点睛之笔。
负一楼设置客房,空间宽敞通透,设计简约大方,搭配木质家具最是舒适。
一楼:会客厅+简餐区+茗茶区+父母房
原始结构图
平面布置图
#原始结构改造
1. 餐厨空间下移后,一楼空间可以更多发挥;
2. 增加一个品茗休闲区;
3. 扩大了卧室面积,增加父母入住的舒适度;
4. 增加水吧简餐区域。
整体简单自然的木质家具,搭配了许多颇富禅意的花器和画作,凸显出业主追求平静安宁的生活。
无主灯设计,更加能凸显出木质家具自带的自然气息。
宽敞的客厅,放置钢琴依旧游刃有余,在这里,能创造出充满空间的优雅旋律。
一楼会客厅设置了简餐台,亲子间的下午茶时光,三五好友的美食分享,将会客厅的功能做得淋漓尽致。
因为主人对茶情有独钟,所以将视野最好的空间设计为了茶室,这里亦是阅尽世俗后的回归;复古的花朵边柜,让整个空间更有韵味。
二楼
男孩套房+女孩套房
原始结构图
平面布置图
#原始结构改造
1. 二楼为两个套房设计,每个套间有独立卫生间和衣帽间,孩子成年后空间功能也能满足使用需求;
2. 由于做了新风,卫生间并没有按常规靠近窗户,把观景空间预留了出来。
女儿房色彩稍显丰富,流行的脏粉色是这个空间的主打,也符合女孩子的审美。公主的专属空间当然要摆上柔软甜美的床品,做一个甜甜的美梦。
男孩房运用了较为冷静的色彩,摆上抽象挂画,又不失趣味。木质家具是睡眠空间的沿袭,舒适由心而发。
三楼
主人套房+露台
原始结构图
平面布置图
原始结构改造:
1. 三楼全部作为主卧室套房,扩大卫生间面积,提升舒适度;
2. 增加卫生间采光面,在卫生间也可以看江景;
主卧空间大气舒适,将木质材料的运用发挥到了极致,别致的床头柜,增加了整个空间的自然氛围。
这里既是衣帽间,也是书房,和主卧形成配套使用,满足了主人的日常使用需求。
主卧双台盆设计大气时尚,夫妻间的洗刷在毫不慌张下同时进行,也是一种浪漫。—THEEND—
设计师有话说
在整个设计初期,把空间结构确定后,并没有在设计造型上花费太多的时间。反而把比较多的时间留在了结构改造及与各设备厂家和业主之间的协调沟通上。整个过程所有事情提前考虑到了,所以才能在一年的时间里实现了从装修到入住。设计能落地,才会有意义!
DE
—为年轻人设计—
案例信息
项目丨融创碧桂园望江府
建筑面积丨400㎡
户型丨联排别墅
风格丨原木自然
硬装设计丨DE 设计事务所
软装设计丨D.ART 谛阿特设计
施工团队丨DE 工程中心
客服
消息
收藏
下载
最近












































