查看完整案例

收藏

下载
重庆装饰公司俏业家作为全案设计领先品牌,专注为业主提供基装、全案、整装多模式、全品类的一站式高品质装修服务,是值得信赖的重庆本土装修品牌。本实景案例是重庆俏业家装饰设计师为龙樾生态城105平三居室户型专门打造的现代混搭风格装修案例。
——重庆龙樾生态城案例内容详情——
楼盘:龙樾生态城
区域:重庆市渝北区高义口轻轨站旁
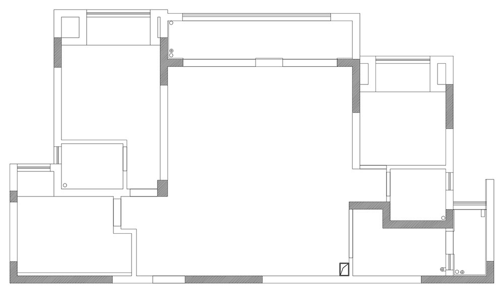
面积:套内105平
户型:三居室
装修风格:现代混搭
设计师:李杨
【业主需求】
业主是一名青年律师,习惯了平日严谨缜密的生活步调,希望家里的设计能够展现出不一样的一面,能让自己与伴侣尽情享受不紧不慢的居家时光。
在接触中,能感受到业主对生活品质的追求和审美品味的要求,设计师以居者的视角从生活中注入灵感,运用“留白设计”营造都市干练的轻奢意境,再通过各种质感家具、软装进行穿插重组,让空间充满温馨的居家烟火气,一处符合业主期望的安放之所便由此诞生!
【设计思路】
原始户型属于比较典型的横厅,结构方正,而且视觉面积远远超过实际面积——因为仅客餐厅的公区就达53㎡,占据了整体的一半。同小区很多业主选择用公区面积弥补给卧室空间,但本案业主喜欢现在的大客厅,同时不需要多大的睡眠空间,所以房屋的整体结构没有大的改动,仅在细节进行了优化。
1、拆除阳台隔断将景观阳台纳入客厅,增加室内采光,扩宽活动范围。
2、次卧改为衣帽间及电竞房,满足业主储物需求的同时又能满足两人的日常娱乐办公。
3、将飘窗全部打掉,增加空间面积,使房屋“大一圈”。
【细节刻画】
1、玄关装修:入户见厅,开阔敞亮但缺乏隐私。索性用长虹超白玻璃做隔断,极窄黑色边框简洁而干练,自然光透过玻璃为玄关增加亮度,同时又起到分割空间保护隐私的作用,展现出一份独特的朦胧美。
2、餐厅装修:软皮褐色餐椅造型别致,坐感舒适,与岩板餐桌的金属支脚相得益彰,增添了空间的质感,闲暇时在微醺的灯光下围坐而食、小酌两杯,好不惬意。
3、厨房装修:西厨——在整个公区的设计上,我们选择将舒适“最大化”。白色大理石岛台搭配黑色岩板餐桌,操作+料理+收纳+用餐一举多得,舒适最大化的同时也让功能得到最大化。
中厨——空间一扇黑色及窄边框玻璃移门将其与西厨区域分隔,既能保留采光,又能阻隔爆炒时的油烟,一举两得。L型布局,满足洗切炒等基本功能,实用便捷。黑色定制柜搭配白色的台面与浅灰色瓷砖自然大气,轻松打造出清雅静谧的烹饪氛围,同时也巧妙的扩大了空间通透感。
4、客厅装修:空间以不同深浅的杏灰色为基底,超长中央空调出风口细节满分,搭配高品质家具与鲜嫩的绿植做装饰,营造出纯粹、放松的生活氛围。电视背景墙的石膏线条是点睛之笔,在修饰墙面的同时,巧妙解决了中轴问题。投影软屏代替传统电视机,超大屏幕看电影无敌爽!闲暇时与家人窝在沙发吃着零食看大片,是最彻底放松。奶咖色绒面组合沙发包裹感恰到好处,圆形矮茶几小巧精致。沙发背后的定制柜预留了钢琴位置,肤感白的定制柜与黑灰色的透明玻璃、黑色的钢琴在颜色上自然过渡,协调统一,降低了视觉刺激,也让空间更显档次。整个客厅窗明几净,羽毛造型的吊灯自带温柔的视觉感受,南北朝向整体通透,拆除景观阳台隔断后,阳台与客厅自然相连。不难注意到,在过梁与承重墙衔接的部分,我们采用了造型优美的弧形门套进行装饰,这样做有2个好处:一来弱化梁深,二来从内往外看能很好的衍生视觉空间感。
5、主卧装修:主卧套房设计,杏灰色墙面如肌肤般温润,与黑色床头碰撞出高级的火花,中和了黑色的低调沉闷,配上墙面石膏雕花线条,丰富空间层次,在阳光的映射下,整个空间显得高贵而又不失温柔。为了满足业主的储物需求,除了一个单独的衣帽间外,卧室内也为业主沿墙设计了一排衣柜供其放置衣物。
6、主卫装修:洗漱台采用外置设计,不仅使卫生间空间更加宽敞,同时还可以解决早上两人同时使用厕所拥挤的困扰。主卫内部通铺云纹白瓷砖,淋浴区采用下沉式+壁龛设计,实用又显高级,搭配百叶窗,整体效果更显明亮大气。
7、多功能房装修:将主卧相邻的一个小房间并做衣帽间及电竞房。衣帽间按照业主要求分区设计,方便挂衣服、放包包。梳妆台与衣柜相邻,空间运用更合理。靠窗的地方光线充足更适用于办公或游戏,简洁的墙面搭配舒适的座椅,让空间看起来更加优雅宁静。
8、次卧装修:有朋自远方来不亦乐乎,客卧作为宾客偶尔休息的场所,以简约利落为主。洁白的墙面采用石膏线条线条点缀,简洁不失高雅。咖啡色的床靠、米白色的床品,营造出一份舒适安谧的氛围,让美眠也变得轻而易举。
9、次卫装修:公卫在颜值上也没掉队,云纹白大理石瓷砖与墨绿色的浴室柜碰撞出干净整洁之感,简洁的马桶与淋浴靠窗并列设计,加条浴帘做干湿分离,让卫生间显宽敞的同时淋浴的体验也更佳。
客服
消息
收藏
下载
最近

































