查看完整案例

收藏

下载
米洛映象 | 金麟府:简欧之旅,续写当代奢华
“THE PREFACE 序言
从四月起
森林重放清香
经过落雨的午后悠长
金黄的斜阳
照耀着崭新的时光
——里尔克《影像集》
From April on, the forest is fragrant again, after a long rainy afternoon, the golden setting sun shines a new time.
—— Rilke, The Book of Images
/
&
/
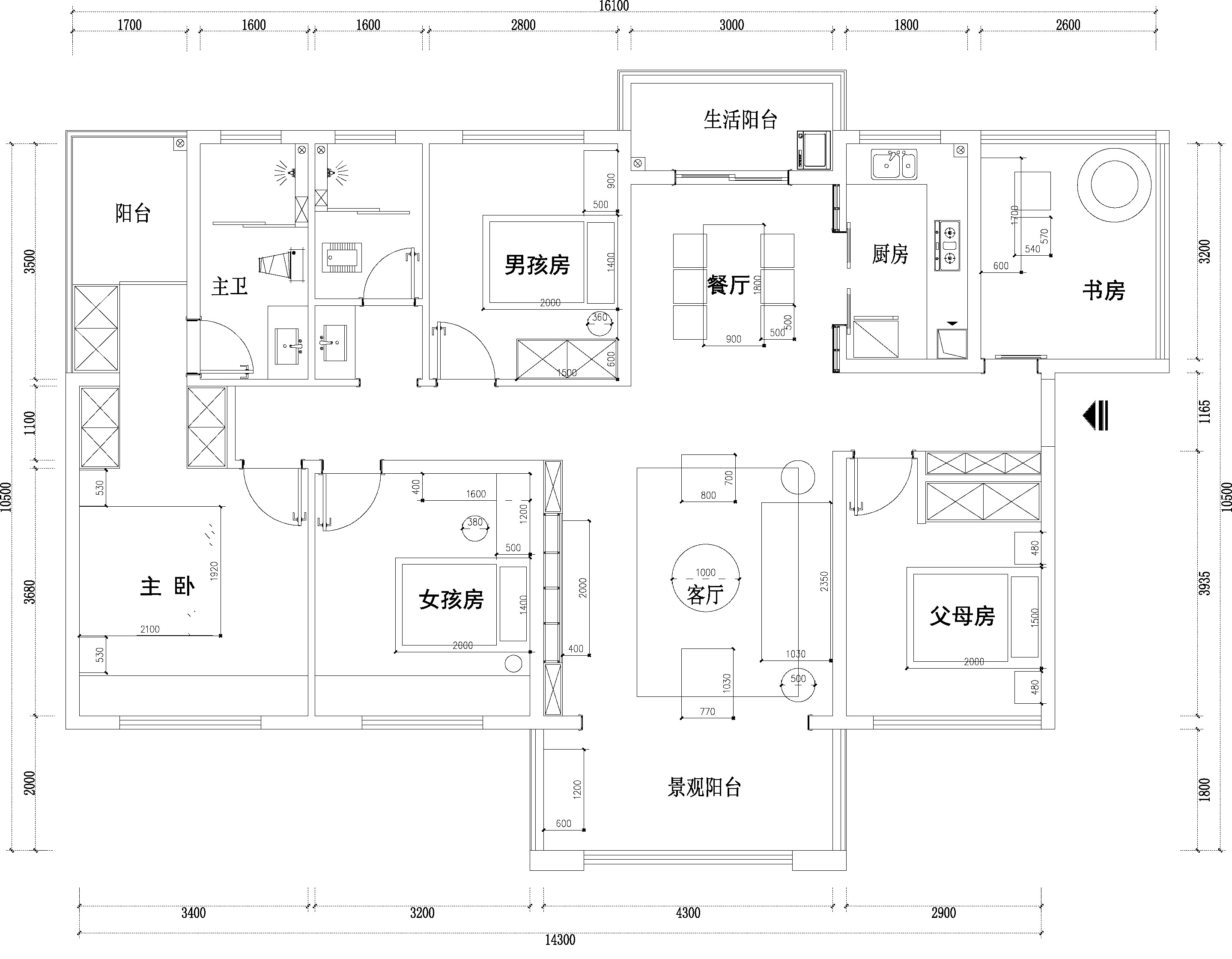
01. C 户型样板间
现代极简 112㎡
/
艺术之家,通过不断捕捉空间变化,用艺术的语言描绘其形态,以“美学”为艺术创作精神,追求和谐唯美设计感,不造作、不浮夸、不喧嚷,以此表达空间自身的时髦态度。
Art House, by constantly capturing the changes of space, describes its form with the language of art, takes "aesthetics" as the spirit of artistic creation, pursues the sense of harmonious and beautiful design, and does not make artificial, grandiose and noisy, so as to express the fashionable attitude of space itself.
—大理石墙面纹理清晰可见,恰到好处的跳跃色彩演绎简约时尚,艺术装置将主然景象引入家中,格调生活展现于物件之中。空间在一派清新明朗中,尽显优雅的现代之美。
The marble wall texture is clearly visible, the right jumping colors deduce simple fashion, the art installation will introduce the main scene into the home, the style of life in the objects. The space is fresh and clear, showing elegant modern beauty.
—艺术品位启发每一处味蕾感受的细节,餐厅渲染雅致臻境,浅色系表现空间的自然美学,结合现代餐椅,是点睛之笔,亦是浸润心灵之美。
Artistic taste inspires every taste buds to feel the details, the restaurant rendering elegant and perfect, light color is the performance of the natural aesthetics of space, combined with modern dining chair, is the finishing touch, is also the beauty of infiltrating the heart.
—卧室把生活空间的结构还原为生活的本质,去除多余的、浮夸的装饰图案,用简单的系统来营造生活场景。
The bedroom restores the structure of living space to the essence of life, purify redundant, grandiose adornment design, build life scene with simple system.
平面设计图 | GRAPHIC PLAN
02.
A 户型样板间
法式浪漫 142㎡
/
莫兰迪色系是优雅时尚的代言。莫兰迪色不张扬,给人优雅知性,浪漫的感觉。在保持绿色的同时,色系上的灰色调会更加高级,看起来也很柔和,附有低调奢华的气息。
Blue plays and sings; Reason, comfort, hope. To break the peace and coexist with the peace, this case with simple modern strokes, into the natural light of the large area of glass window, so that light in the space wanton flow, time slowly forward.
— 客厅细腻华丽的欧式雕花装饰墙边,注入典雅的精致感,墙面简化的石膏装饰墙线增添复古雅致质感。温柔视觉的莫兰迪绿,恰到好处的点缀,清新自然,任由这一席美好时光倾泻,温柔岁月芳华。
The sitting room is exquisite and luxuriant Europe type carve adornment wall edge, infuse elegant delicate feeling, the gesso that metope simplifies decorates wall line to add restoring ancient ways refined simple sense. Tender vision of Morandi green, just the right ornament, fresh and natural, let this wonderful time pour, tender years youth.
—
摈弃浮华,归家只享悠然时光。餐厅没有了高饱和度带来的强烈与浓重,不张扬的色彩让视觉上得以舒缓,十分静谧高雅。
Get rid of the glitz, go home and enjoy the time. Dining-room did not have the intensity that high saturation brings with dense, the colour that not make public lets a vision be able to slow, very quiet and decorous.
— 主卧的灰绿与一点朱红,增强空间不同区域的互动性,大面积飘窗为空间带来充裕的自然光线,温暖明媚,惬意非常。
The grey green and a little vermilion in the master bedroom enhance the interaction between different areas of the space. Large bay Windows bring abundant natural light to the space, which is warm and beautiful, and very pleasant.
—
女儿房童稚可爱,男孩房活泼天真。粉与蓝的空间色彩体现,糅合儿童成长特质,打造出两间充满童趣又不失艺术氛围的生活空间。
Daughter room childish lovely, boy room lively and innocent. The space color of pink and blue reflects the characteristics of children’s growth, creating two living Spaces full of childlike interest and without losing the artistic atmosphere.
平面设计图 | GRAPHIC PLAN
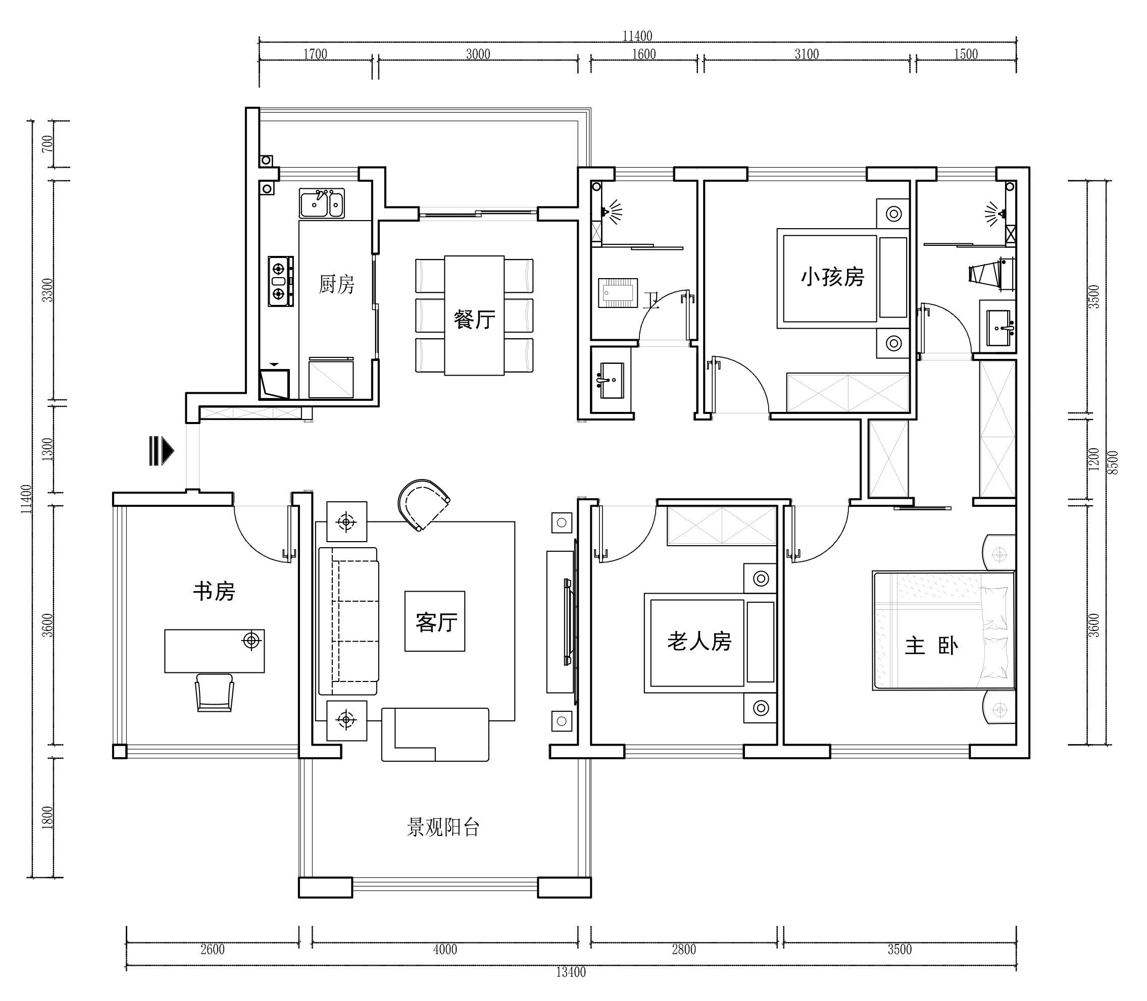
03.
B 户型样板间
新中式 128㎡
本案以端庄、优雅为设计理念,抛开传统中式束缚,用国际东方式体现一种人文精神界的新追求。把自然情景元素贯穿整个空间,营造空间中的清透、休闲、舒适感。高雅稳重的配色、体现品质的家具,所有的一切都在描述家的概念。
This case with dignified, elegant design concept, put aside the traditional Chinese shackles, with the international Oriental way reflects a new pursuit of humanistic spirit. The natural scene elements throughout the whole space, to create a clear space, leisure, comfort. Decorous and sedate match color, the furniture that reflects quality, all everything is describing the concept of home.
—
雁字回时,月满西楼。
餐厅弥漫着温雅宁谧的空间氛围,软包餐椅以不同深浅构建出空间的层次,视觉感受增强,落地窗以轻纱浅佛,氤氲出江南烟雨的朦胧美感。
Wild goose word back, full moon west building. The restaurant is filled with warm and quiet space atmosphere, soft bag dining chair with different depths to build a spatial level, visual experience enhanced, French window with light gauze shallow Buddha, dense out of the misty rain of the south of the Yangtze River hazy aesthetic feeling.
—
主卧空间采用素墨色彩与木质纹理的相协,现代形制中不乏绵绵古韵。衣帽间规划合理,满足日常一切需求。微风过境,思绪清明,宁静的不是空间,而是此时的心境。
The master bedroom space uses plain ink color and wood texture coordination, modern shape and structure is no lack of continuous ancient rhyme. Cloakroom planning reasonable, to meet all daily needs. Breeze passing, thoughts qingming, quiet is not space, but the state of mind at this time.
—
所谓诗意,它糅杂于杯盏器具间,生长出四时景象。在弥漫着一室淡淡花香的空间内,娓娓述说着一脉东方故事。煮酒听雨,捧一盏香茗。木质桌椅的合理使用、恣意延伸的绿植摆件,勾勒出丰盈而绵长的幽然诗韵。
The sitting room is exquisite and luxuriant Europe type carve adornment wall edge, infuse elegant delicate feeling, the gesso that metope simplifies decorates wall line to add restoring ancient ways refined simple sense. Tender vision of Morandi green, just the right ornament, fresh and natural, let this wonderful time pour, tender years youth.
—
女儿房整体风格在延续新式古典之外,更添几分轻快活泼。虚掩的纱幔,雅致的灯饰,空间色彩淡雅明媚,温柔恬静。淡淡的柔美气息萦绕在此,描绘出一幅自然的诗情画意。
Daughter room integral style is in continuance outside new-style classic, more add a few minutes brisk and lively. Virtual veil, elegant lighting, space color quietly elegant bright, gentle and quiet. Light soft breath lingering in this, depicting a natural poetic painting.
平面设计图 | GRAPHIC PLAN
04.售楼部
梦幻之蓝 2000㎡
/
从十二世纪开始,蓝色的社会地位突飞猛进,逐渐成为了圣母、法国皇室、亚瑟王与贵族们的代表色;在十六世纪的宗教改革中,蓝色有幸避开了新教与天主教的争吵,成为了一种“中立色”;浪漫主义对“高尚之蓝、梦幻之蓝”钟爱有加。
This project takes natural ecology as the origin of design, with white and wood colors as the main colors, presenting a natural and comfortable Shanghai style space. Let people return to inner peace from the outside world to consider every detail design in the space, concise modern sense, presenting exquisite quality of life.
—
交流与表达,是人与人之间的沟通方式。天花几何体块排列均一,在光影孕育下表现出极致华美的艺术秘境,与形成独立围合之态的洽谈区相互呼应,形不拘格。色彩在深浅不一的描绘下,体现出十足的视觉层次感。
Communication and expression are ways of communication between people. The geometric blocks of the ceiling are arranged uniformly, showing the ultimate gorgeous artistic secret environment under the birth of light and shadow, echoing with the negotiation area which forms an independent enclosing state, and the shape is not confined. Color in the description of different shades, reflects the full sense of visual levels.
—VIP 洽谈区在保证绝对独立与私密之余,用现代化表现手法,营造优雅的艺术之境。步入其中,极简布设带给人宁静之感,背景墙面的留白设计空间的对话状态,让场景形式退居到人与人互动、交流之后。
While ensuring absolute independence and privacy, THE VIP negotiation area uses modern expression techniques to create an elegant artistic environment. Step into it, the minimalist layout brings people a sense of tranquility. The dialogue state of the blank design space on the background wall makes the scene form retreat to the interaction and communication between people.
—儿童活动区以温润的木色渲染空间氛围,再注入自然清新的绿、纯净静谧的蓝、明亮活泼的黄,进行不同方式的点缀,为空间增添极大的趣味与活动性。
Children’s activity area renders the space atmosphere with warm wood color, and then infuses natural and fresh green, pure and quiet blue, bright and lively yellow to decorate the space in different ways, adding great interest and activity to the space.
平面设计图 | GRAPHIC PLAN
PROJECT INTRODUCTION
—
项目名称|金麟府
Project Title | Jinlin Mansion
项目类型|样板间、售楼处
Type of project | Model rooms, sales department
项目地址|郴州桂阳
Project Address | Chenzhou, guiyang
软装设计|米洛映象
Soft decoration design | Millo Casa
硬装设计|桂阳三维雅筑
Project photography | GuiYang 3 d building
完工时间|2021
Time of completion | 2021
客服
消息
收藏
下载
最近
















































