查看完整案例

收藏

下载
精致生活·匠心品质
Exquisite life · Ingenuity quality
针对本项目的地理位置优势,延续售楼处风格调性,设计师从项目定位、居住客户群体、功能空间、生活习惯等多方位考虑确定“现代摩登”这一设计主题,实现年轻客群的“体验式”升级。
By tapping into the advantages of the project’s geographical location, and continuing the style of the sales office, the designer enriches the design theme of "modern fashion" from the project positioning, residential customer groups, functional space, living habits and other aspects, thus bringing an "experiential" upgrade to the young customers.
经典与时尚如果会说话,可能会大声疾呼:不想被定义。优雅与摩登,于每个人的眼中各有所及。
Classics and fashion, if they could speak, would cry loudly: “We don’t want to be defined.” Elegance and fashion are dancing in the deep blackness of everyone’s eyes.
客餐厅 The Restaurant
客餐厅空间一体化设计,带来了宽敞的视觉感受,灰白的经典基调,点缀优雅而活力的墨绿色,金属与皮革珠联璧合,石材与布艺刚柔并济,演绎摩登与经典的对话。
The integrated design of the restaurant space delivers a spacious visual experience; the marriage of grey classic tone and the elegant and vibrant dark green, the perfect matching of metal and leather, and the mutual-enhancement of stone and cloth art, perform a dialogue between the modern and the classic.
阳台 Balcony 闲暇时光为自己调制一杯特饮,配合窗外优美的风景,为生活增添更多小资情调,生活其乐融融。
Have a nice leisure time making yourself a special drink, looking at the beautiful scenery outside the window, and injecting petty bourgeoisie taste into your joyous life.
主卧 Master Bedroom 或许我们都需要一个宁静的休憩场,让身心远离浮躁与喧嚣,感受当下环境与场地的纯粹。绿色在不同的材质、纹理中交织碰撞,搭配极简的金属吊灯,大理石台面的点缀,无不彰显着卓越的都市精英品味与意式奢华品质的追求。
Perhaps we all have a need for a quiet resting place, where we can stay away from impetuousness and hustle and bustle physically and mentally, concentrating on what is going here and now. Green, amid different materials and textures, is interwoven with minimalist metal chandeliers; the marble countertop is decorated in such a way as to reflect the excellent taste of urban elite and the pursuit of Italian luxury quality.
长辈房 Elder Room 长辈房的色调相对沉稳,床头艺术装饰无言诉说着岁月的印记,细节处的艺术摆件,以简约而独特的魅力,丰盈着空间的美学氛围,同时增添一份柔和魅力。
The tone of the elder room is relatively composed, the artistic decorations of the bed telling the marks of time without words; the artistic ornaments in the details send off simple and unique charms to uplift the aesthetic atmosphere of the space and add a soft fascination.
儿童房 Chilren’s Room
把他宠爱的 MICKEY MOUSE 作为艺术表现主题,用兴趣爱好刻画空间记忆。墙面造型灯与层板相结合的设计方式,再加以书籍和饰品的装点,活泼的色彩,童趣的陈设,是对孩子天性的尊重和回应。
His favorite MICKEY MOUSE is used as the artistic expression theme, translating his hobbies into spatial memories. The combination of metope modelling lamp and laminate board, the blessing provided by books and decorations, lively colors and playful furnishings, all are designed to show respect and response to the child’s nature.
多功能房
Multifunctional Room
当精神自由的追求成了生活不可或少的部分,私享书房满足都市人群生活和工作的无缝隙切换,为居家办公及个人兴趣爱好置一块天地,悬浮型的台面和转椅,让主人在观赏窗外风景之余,还能得到艺术潮玩的亲密陪伴,让生活状态休闲轻松化。
When the pursuit of spiritual freedom becomes an indispensable part of life, a private study is where an urban resident can shift seamlessly between life and work. Homeworking and personal interests call for such a private space, where the floating countertops and swivel chair allow the owner to look out the window, enjoy the intimate company of artistic articles, and season his life with leisure and relaxation.
结语:九度设计以当代人居需求为主,从年轻人对生活的追求出发,以实地考察、市场调研等工作进行方案设计,经过反复推敲与调整,将自然生态与现代摩登融合,致敬未来人居。
Jiudu Design, committed to meeting the contemporary living needs and echoing the young people’s pursuit of life, has made field trips and market research in the project design which, after repeated challenges and adjustments, paying tribute to future living with the integration of natural ecology and modern life. 图纸呈现
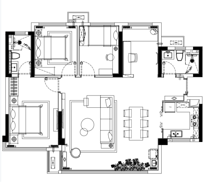
项目名称:锦绣天宸
甲方单位:华宇集团四川公司、金科地产川云区域公司
项目地址:中国·绵阳
项目类型:样板间
项目面积:112㎡
设计时间:2021.09
竣工时间:2022.01
软装设计:成都九度装饰设计有限公司
甲方团队:华宇集团四川公司设计管理部装饰组、金科地产川云区域公司园林装饰部
Project Name:Jinxiu Tianchen
Party A:Sichuan Huayu Group Co、Jinke Property Sichuan and Yunnan Branch
Project Address:Mianyang, China
Type of Project:Model House
Project Area:112㎡
Design Date:Sep. 2021
Completion Date:Jan. 2022
Soft Decoration Design:Chengdu Jiudu Decoration Design Co., Ltd.
Party A’s team:Decoration Group of the Design Management Department of Sichuan Huayu Group、Department of Landscape Decoration, Jinke Property Sichuan and Yunnan Branch
Photography:by 404NF STUDIO
关于九度设计
九度装饰设计有限公司成立于 2011 年,十年来专注地产领域,凭借一流的研发和创新能力为客户提供全流程、一体化的室内空间解决方案。业务范围涵盖地产(售楼部、样板间、精装房、公区)、商业办公、酒店、文教、软装等多个领域。
公司总部位于成都,且已进驻重庆、西安、昆明等城市。公司拥有逾 200 位具足国际视野并深谙本地市场的专业人士,与客户倾力合作,创造了一个又一个具有行业标杆影响力的室内空间作品,因此屡获殊荣。
秉承“让生活更美”的使命,从传统与现代多元文化中获得灵感,用严谨和智慧实现空间想象力的艺术表达。提倡设计以空间使用者为本,功能与美学兼备,从而实现空间与自然、环境、人文的可持续发展。
客服
消息
收藏
下载
最近





















