查看完整案例

收藏

下载
家,斯洛文尼亚,巴西
设计师:BL Studio de Arquitetura
面积:800 .2501349m²
年份:2020
摄影:Fellipe Lima
建造商:AutoDesk, Bontempo, Casa Volpi, Castelatto, Deca, Eletromac, Jacuzzi Brasil, Palimanan Revestimentos, Roca Brasil, Trimble, Veezit
负责建筑师:Rogério Barbieri
设计团队:Rogério Barbieri, Fernanda Lonardoni, Gabriella Dalefi, Luciano Costa
业主:Projeto:Rogério Barbieri, Fernanda Lonardoni, Gabriella Dalefi, Luciano Costa 业主:Familia Martins Ferreira
工程:Roger Roland Appel e Bruno. Appel
施工负责人:Augusto Barbieri
顾问:Sem consultores
景观设计:IO Paisagismo
城市:Rolândia
国家:Brasil
设计师描述 | Designer description:
2017年聘请建筑师rogério barbieri来开发他的新住宅项目时,客户完全知道他们想要什么。他说房子应该是妻子梦想的房子,就像她梦想和渴望的那样。
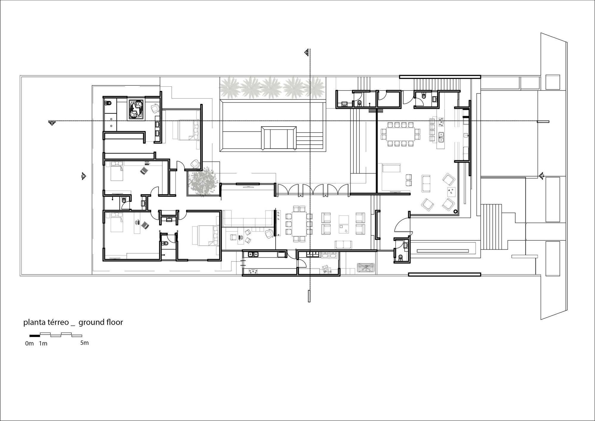
反过来,她只提出了一个要求:“我想住在作为度假胜地的房子里,那里每天都有植被和风景。”在天堂里的某个地方表演并不困难,但是房主买的土地是一堆抽屉,一千平方米,完全平坦,在一个既没有自然景观也没有景观的城市公寓里。
从这一点出发,决定不存在的景观将在内部创造。工程转向批的中心,绕过游泳池和中央花园。为确保批地的最佳利用,将车库和仓库放在地下,收回的土地被用来增加社会通道和美食,给外墙带来了纪念碑和台阶,使得户外和中央花园之间的交通和过渡更加戏剧性和有趣。
为了确保项目的舒适性和时效性,我们将完全热爱的天然材料、木材、木石和砂砾用于湿地。几乎100%的绿色植被保证热带空气。为了欣赏街上的路人,大型的镶嵌玻璃,悄悄的被木磨坊掩盖,低调地展示室内,激起了外面观看者的好奇心,同时保持着家人的隐私。在高度为7.00米的大型旋转门的社会领域,他们将房间完全打开到游泳池甲板上,就像坐在电视机前或在室内走动时看到的一样。
从主套房里,通过观察情侣床和水的植被,还是可以进入甲板和黎明。工程采用钢筋混凝土、砌块砌体和钢架的组合,根据paranaense内部材料和劳动力的最佳供应情况进行。
项目完工照片 | Finished Photos
客服
消息
收藏
下载
最近


































