查看完整案例

收藏

下载
房子,扩建,东马尔文,澳大利亚
设计师:studiofour
面积: 400 .2501349m²
年份:2019
摄影:Shannon McGrath
建造商: Brodware, Dulux, Hub Furniture, Caroma, Darkon, Embelton Floors, Gaggenau Appliances, Gippsland Glass, Hi Mac
Lead Architect:Annabelle Berryman
Project Architect:Sarah Henry
Builder:Vonier Rowan Constructions
Surveyor:The Goodmen Surveyors
City:Malvern East
Country:Australia
设计师描述 | Designer description:
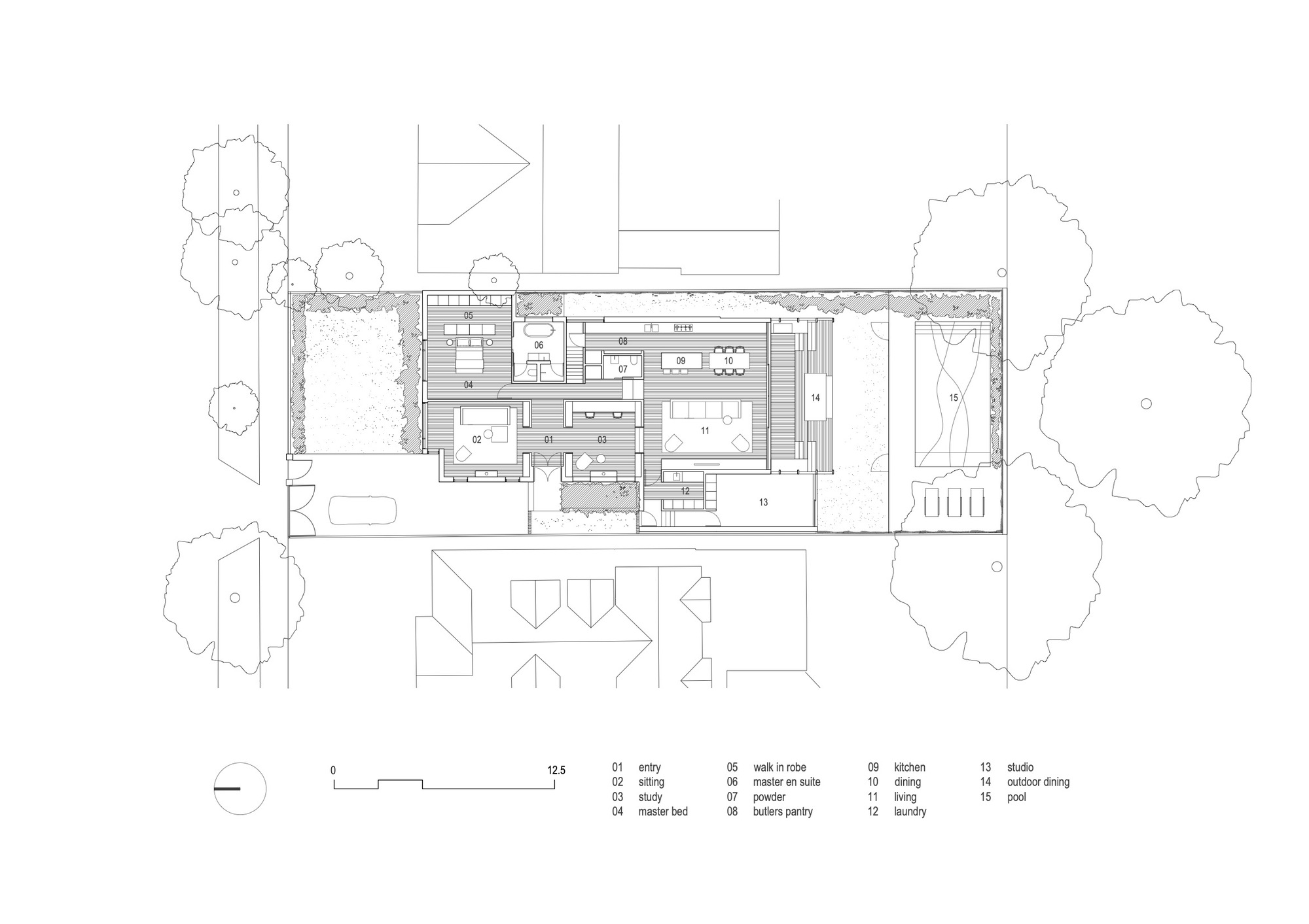
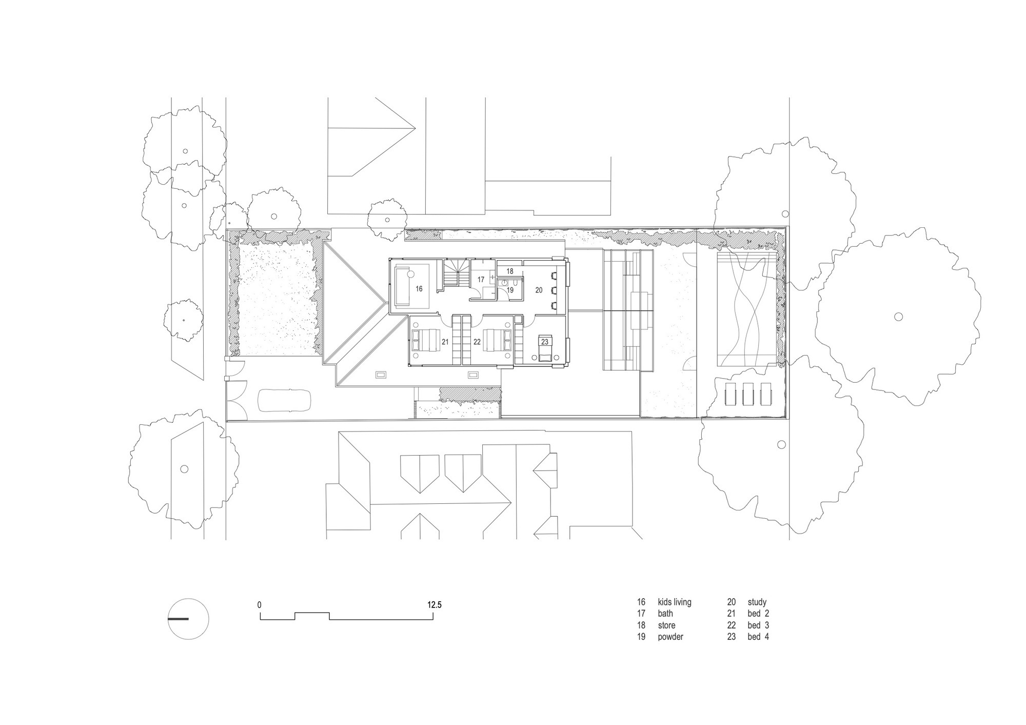
作为现有简约闻名的室内设计工作室studiofour,为卡德拉街住宅的设计提供了一个最新设计样板体验,在赫奇利·德纳花园区内,提供了一个与该遗址直接的绿色景观环境更强有力的联系。为了缓解现有楼层和场地之间的差异,扩建部分变成了室内/室外过渡区,从房屋内部逐渐向花园延伸。像一个住宅规模的圆形剧场,独特的体验提供了许多不同层次的娱乐机会,包括户外烹饪,综合座椅,和户外用餐区。
该地块以前为一个与景观没有联系的住宅,并阻挡了可以进入赫奇利·德纳花园的借来的景观。从本质上来说,我们的策划是为了让新增加的部分流畅、可渗透,并与景观高度相连。现代建筑设计和形式现在被定位为将这些观点融入家庭,与感知的和真实的景观紧密相连。
设计重点反应材料和细节上最微小的展现,强调由花园提供的景观。内部元素保持简单,并向外延伸,以创造一个内外之间的过渡。基于一种平静的感觉,整合的内部和外部改善了功能和提高了用户体验。
通过修复具有装饰艺术建筑入口时,入口两侧的两个相对的入口形成了远处的景观,立即将花园与建筑连接起来。然而,这种观点之间有一定的间隔,只有当一个人通过一个压缩的走廊进入新的建筑时,才能体验到广阔的双高空间。正是在这里,树景的影响,无论是邻近的还是更远的,都是直接的和全面的景观体验。这个双重高度的空间是住宅的重点,是提供一个真实的和有形的景观视觉体验。
项目完工照片 | Finished Photos
客服
消息
收藏
下载
最近
























