查看完整案例

收藏

下载
规
·涂宅
用自然的色系与现代材料的相融合,将原本常规结构下的普通空间重塑为一个亦温情亦潮流的自在居所。
每个客户的开始都是有所顾忌,到过程中的有所保留,再到最后的敞开心扉...
“第一次接触这个案子的时候,业主没有说太多需求,因为先前接触了太多不同公司的设计师,说的多了,也就乏了,直接让我先做个方案看看,在没有详细全面的沟通情况下,只能根据自己对于甲方年龄,家庭成员等信息,结合自己对于家的理解去考虑。
初次与客户碰上面后,方案汇报完,让人感到十分惊讶的是,业主的要求我们全部给她实现了,其他公司和设计师即使需求全部阐述完,也不一定全部实现和满足。就这样,初次的方案碰撞对于我们就很认可。下一步毫不意外的就是跟各大公司对比预算,但是还是选择了麦丰。
最后我们努力坚持做到的就是让选择了我们的客户不后悔,让没有选择我们的客户也同样认可我们。最终我们的关系当然很好啦。”
01THE CUSTOMER DEMANDS
业主需求
偏向于现代风格
孩子目前上幼儿园,收纳尽量多
需要书房,中岛台
02ANALYSIS DIAGRAM
分析图
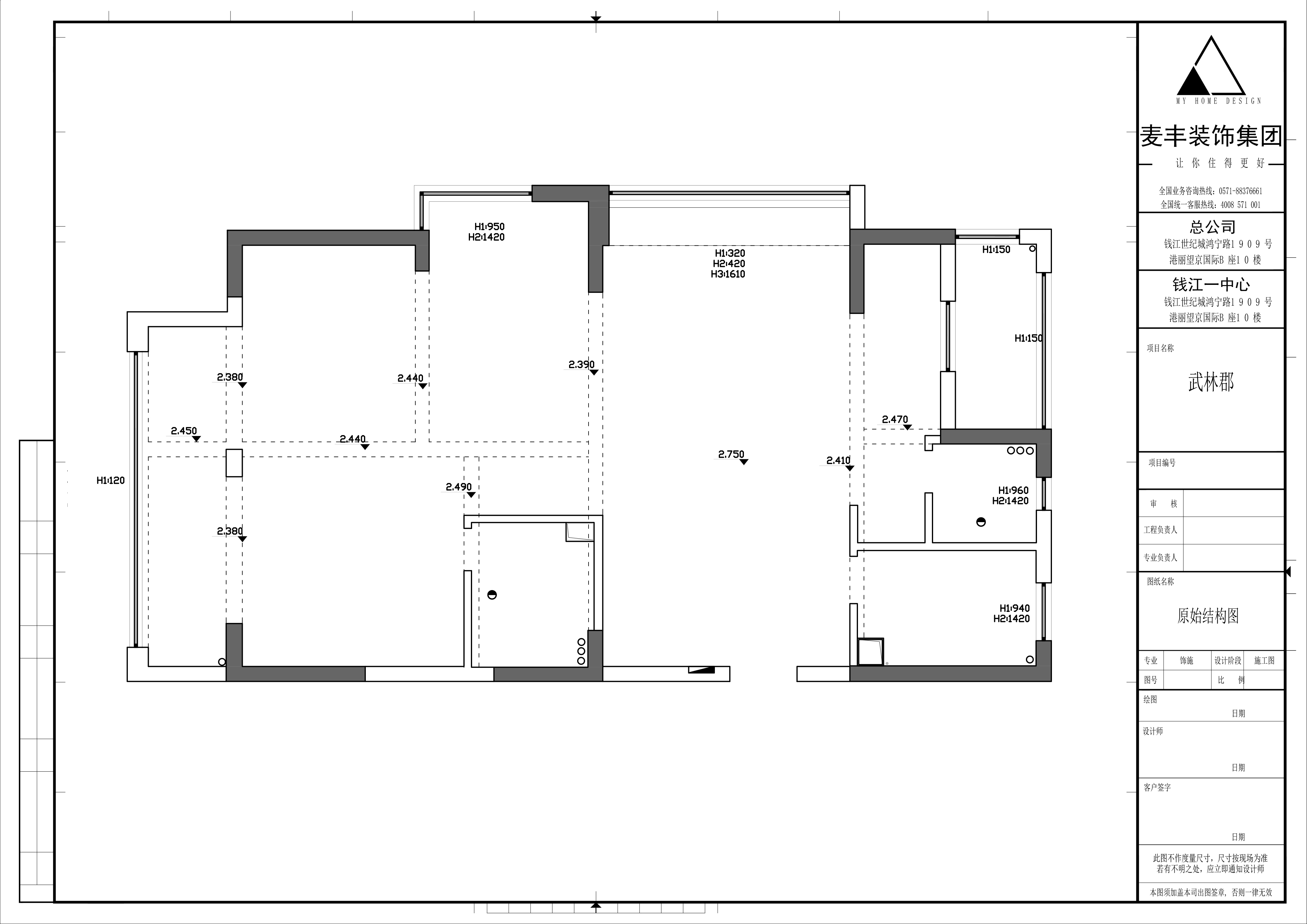
▲原始平面图
//
户型优劣势
户型优势:三房朝南,户型较方正,采光好。
户型劣势:户型南北长,东西短,再加上飘窗对客厅的占用,整体客厅偏窄。由于边套的特质导致无门厅。客卫偏小。由于户型是南北长,所以去往卧室过道会偏长。
03DESIGN INSPIRATION
设计灵感
边套户型对于绝大部分业主来说都是充满着爱意的,它光线的毫不吝啬,空气的自由流动。
这是我们一直值得尊重的特质,本案也是同样贯彻始终,弱化所有的过道,让功能与空间相互融合,尽最大的努力让阳光洒到每个角落...
04Living Room
客厅
环绕型客餐厅。吧台、餐厅、沙发的自由形式让尺寸感和舒适度进一步提升。让待客和用餐区有顺畅的动线,开放与互动的精妙在此处得以展现。
利用飘窗的特质,进行了比例的修正,形成了一个沙发尺度的坐塌,同时也将飘窗藏于榻中,实现了美观与空间利用。
光是整体设计的元素之一,低饱和度的沙发、地毯、茶几在温和的光线中展现朦胧雅致的美感。
细腻舒缓的基调足以唤醒家的温存
...
05Dining Hall
餐厅
用餐时光是一家人能够团聚一起的美好时刻,它承载着生活的琐碎,也承载着最真实的自我...
为了保证厨房的操作空间,将冰箱安排在中岛和厨房中间,不仅缓解了厨房的拥挤,也更符合冰箱的使用场景。
通过厨房、次卫和孩童房的入口,整合到一起形成了一个新的功能区,既保证了动线,又实现了功能。
可旋转的长虹玻璃屏风让客餐厅有所保留,角度可自由控制,趣味与使用结合。
0
6
Study Room
书房
书房通过折叠门来模糊过道感,使书房的视觉感更广,空间的实用性和多样性得到展现,同时使南面采光更完整地被室内空间吸收。
07 Master bedroom 主卧
主卧保持了与客厅整体一致的风格。素白与亚麻色让人身心放松。
简洁的线条、金属质感的灯饰,丰富了空间的层次感,营造干净、纯粹、温馨的休憩环境。
镜面衣柜通透、轻盈,令视觉得到延展,既有力贴合业主需求,又让不俗品味悄然流露。08 Secondary bedroom 次卧
次卧质感温润朴质,整墙的飘窗映景于室,此刻闲适安宁、时光静好。
用茶色中和鲜亮的赤橙,平衡基调。
内嵌收纳柜为卧室增添更多灵动空间。
09Bathroom
卫生间
墙面、地面由同款石材一体而成。置入镜面和木质柜体,简洁之中恰到好处的融合与均衡。10 Little Bing 小景。
案例信息丨
Case Information
项目地点:武林郡
项目类型:住宅
项目性质:全包
项目面积:125㎡
项目风格:现代风格
设计师:麦丰国际设计 冯上淼
方案深化:麦丰国际设计 李雄
施工:浙江麦丰装饰设计工程有限公司
软装:东麦家居
主要用材:皮革、镜面、岩板、KD 板
装修总投入:硬装 28 万、软装 6 万、设备 4 万.
客服
消息
收藏
下载
最近
































