查看完整案例

收藏

下载

翻译
Architects:Quinzhee Architecture
Area:1080m²
Year:2021
Photographs:1Px
Manufacturers:Agway Metals Inc.,Forterra,James Hardie
Senior Architectural Designers:Guillaume Fafard, Catherine Parent
Project Technician:Maxime Allard
3 D Artist:Étienne Dumas
Client/Owner:Construction St-Pierre Roseberry
Entrepeneur:Construction St-Pierre Roseberry
Photography:1Px Dave Tremblay
City:Quebec City
Country:Canada
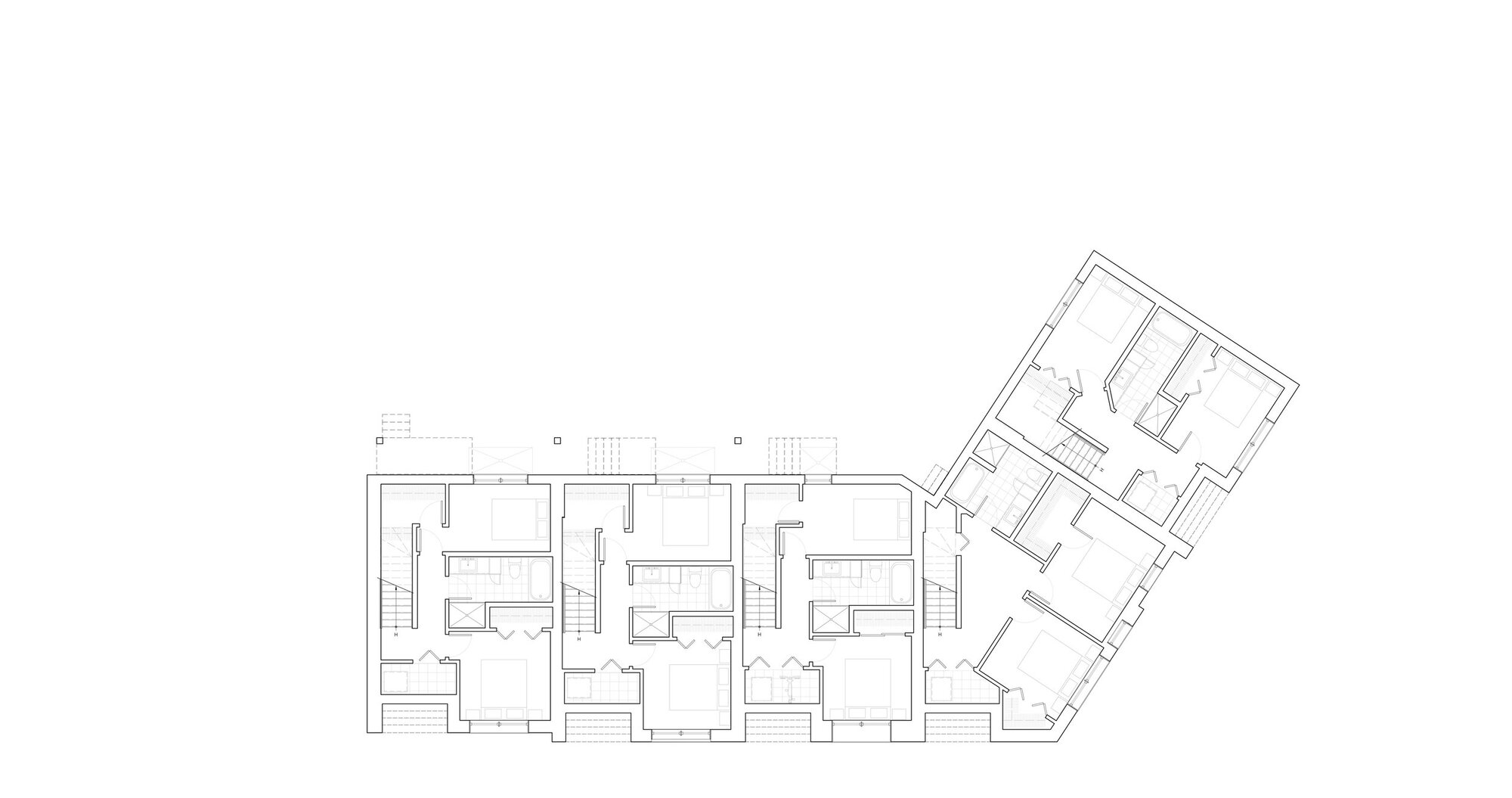
Text description provided by the architects. Located at the corner of Rue de l'Aqueduc and Rue Kirouac, Ozias is a multi-residential project of ten through-and-through dwellings on two floors. It is articulated by following the layout of the neighborhood to clear a green backyard accessible to all occupants.
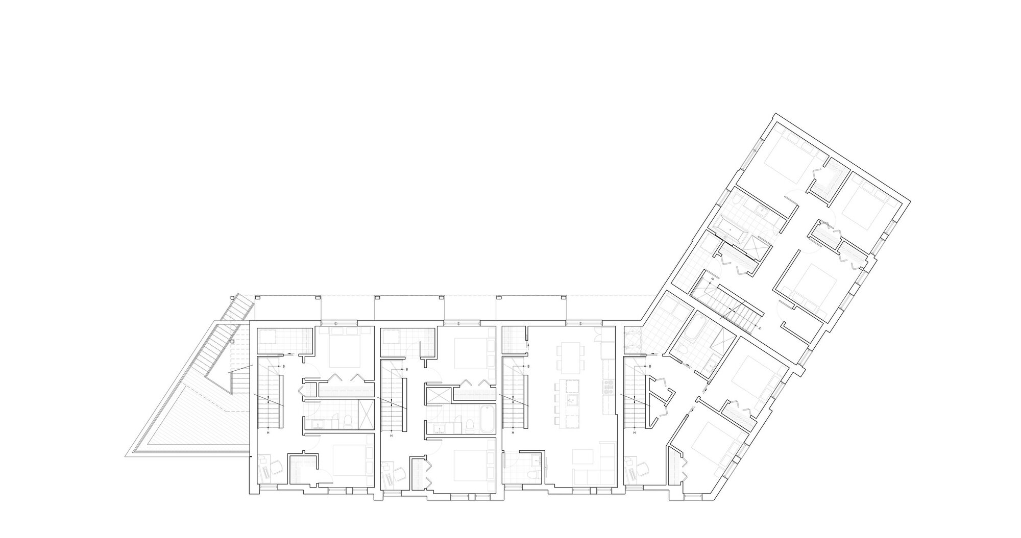
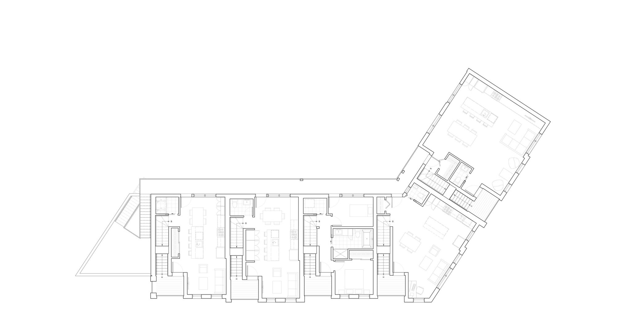
On the facade, the verticality is enhanced by the withdrawals, the sets of bricks, and the different materials. The clay brick blends with the warm colors of the masonry of the surrounding context and contrasts with the metallic coating. On the ground floor, deeper indentations mark the street entrances that serve all dwellings. They share the common courtyard at the back while the upper accommodations enjoy balconies and private rooftop terraces.
Finally, Ozias seizes the opportunity to densify a wasteland site by ensuring a coherent integration with its neighbors. The two-story layout also allows for a hierarchical arrangement of spaces for the privacy of the occupants, and the vis-à-vis is to the advantage of the latter since the floor level is raised in relation to the street.
The layout of the living spaces located on the second floor contributes to the animation on the street and to the optimization of the space. The regulatory requirements that required some reflection for this project can be summarized as maximized zoning, construction at the edge of the lot, respect for heritage, and integration with the environment. The urban insertion is also part of this reflection as well as a green area on the roof.
Project gallery
Project location
Address:Quebec City, QC, Canada
客服
消息
收藏
下载
最近

































