查看完整案例

收藏

下载

翻译
Architects:Álvaro Siza Vieira
Area:172000ft²
Year:2022
Photographs:João Morgado
Local Architects:Gabellini Sheppard Associates, SLCE Architects
Client:Sumaida + Khurana & Levy
City:Nova Iorque
Country:United States
Text description provided by the architects. This long narrow, residential tower becomes ‘home’ from the outside, while its windowed walls climb toward the sky to capture incredible urban views from the inside.
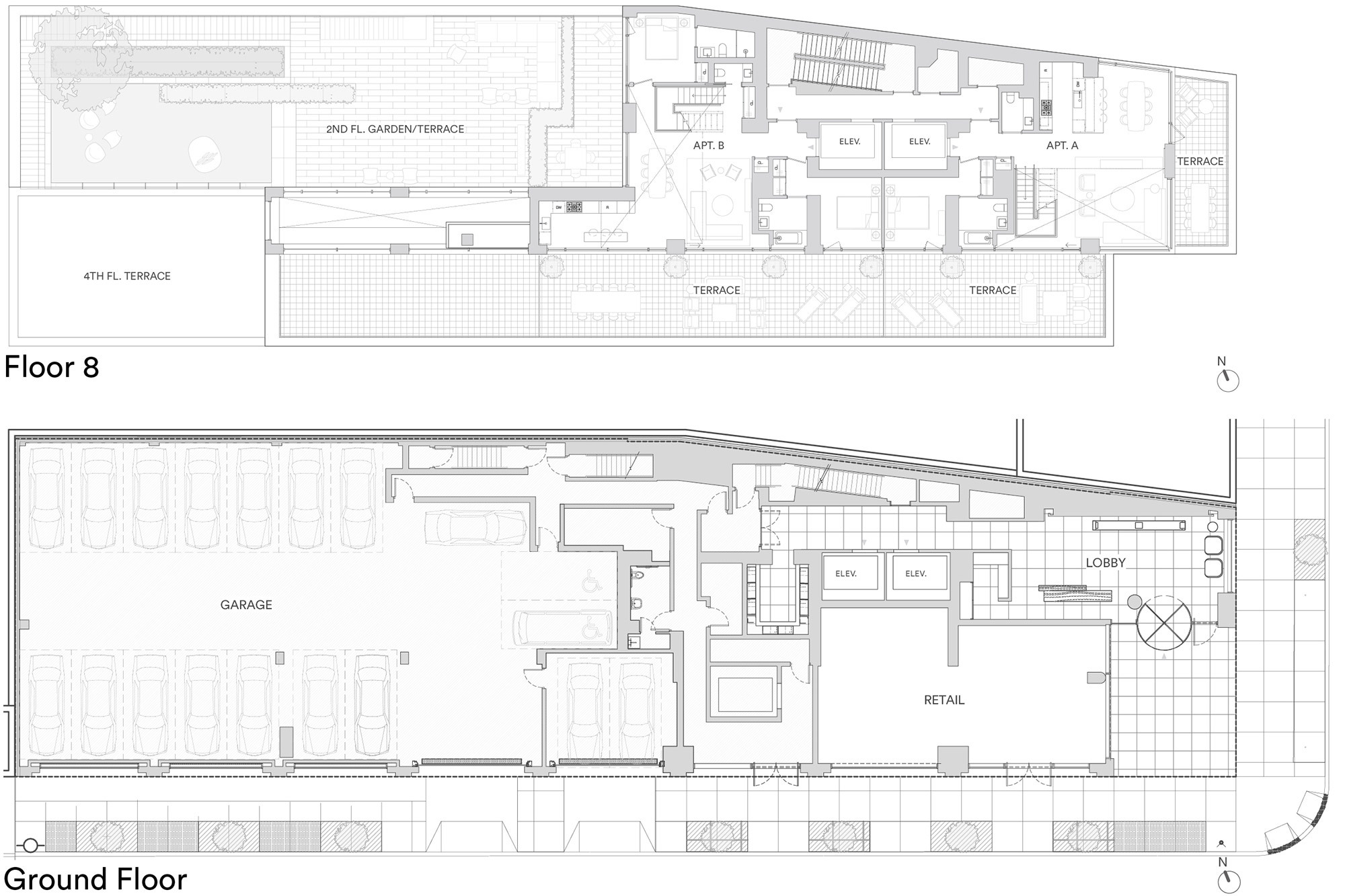
Located at 823 11th Avenue and the corner of 56th Street, the recently completed residential tower 611 W 56th St, rises up from the ever-changing New York City neighborhood of Hell’s Kitchen. Set within a forest of buildings that shoot from the ground, shoulder to shoulder, unique yet just one cell of a growing body – with the spontaneity of a cypress tree or a bamboo stalk.
Capturing its portion of the NYC skyline along the western edge of Manhattan near the Hudson River, this tower claims the northwest corner of Eleventh Avenue for its base. It stands on a narrow site within a heterogeneous context of higher and lower buildings, dark and brilliant, old and contemporary, and a variety of time evolved materials, textures, and colors. The structure has a profile of 36 floors projecting from the building’s base while respecting the strict urban zoning requirements of the site. It measures 172,000 SF, over 450 feet tall, and provides a diversity of residences ranging from one- to four-bedroom units, terraced ‘maisonette’ duplexes, and penthouses.
A primary architectural design objective for 611 W 56th St residential tower was to mark this important urban intersection, creating a strong architectural presence on an extremely narrow site in order to firmly connect with and celebrate its prominent corner relationship within the city and its streets.
At the same time, this white limestone volume reaches toward the sky in brilliant contrast, rising against the adjacent black glass and steel neighboring development to the north. It grows tall out of its surrounding built landscape of time-evolved neighboring buildings of many sizes, proportions, and mixed materials like more traditional brick and stone.
611 W 56th tower joins a pre-existing urban forest and a heterogeneous evolving neighborhood, striving for volumetric respect for urbanization and context.
Project gallery
Project location
Address:Nova Iorque, NY, Estados Unidos
客服
消息
收藏
下载
最近




































