查看完整案例

收藏

下载

翻译
Architects:Forgas Arquitectes,Gammarquitectura
Area:1210m²
Year:2021
Photographs:Simón García
Manufacturers:Aguilar,Breinco,Calaf,Celenit,Sate
Lead Architects:Joan Forgas, Dolors Ylla-Català, Mauro Mas
Technical Architect:Miquel Sellès Oliva
Structure:Eskubi Turró Arquitectes SLP
Facilities:Aribau 70
City:Taradell
Country:Spain
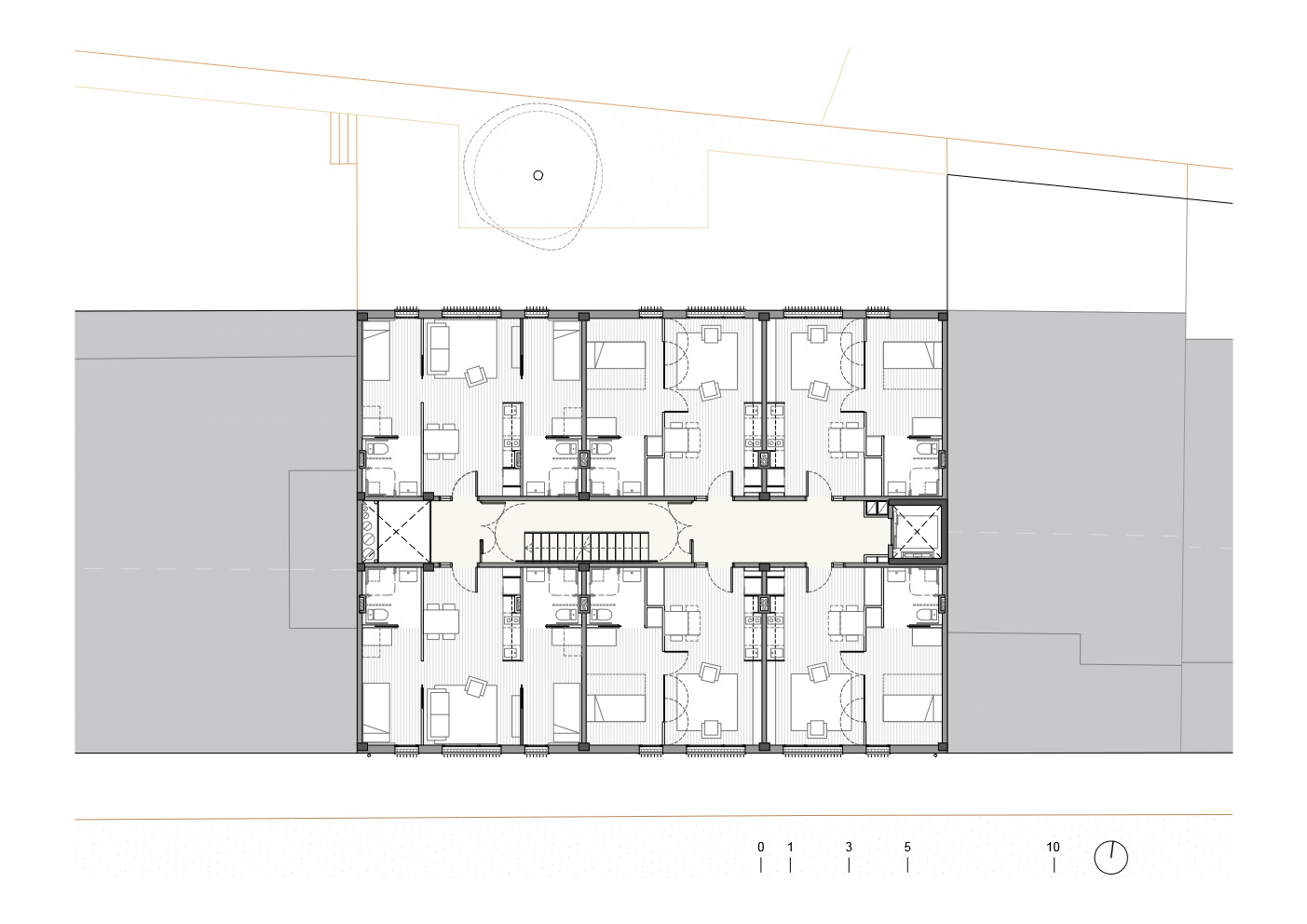
Text description provided by the architects. The project consists of the construction of 16 sheltered housing units that serve elderly people who may live alone, people with disabilities, or families in situations that may require temporary housing.
The plot, located in the traditional urban expansion area of the town, is between party walls, with a width of 20m, a buildable depth of 15m, and a height of PB+2.
As for the program, the habitats are located on the first floor and on the two first floors, while the common spaces with the dining room and laundry are located on P-1, with an exit to the rear courtyard level.
The rooms (10 of 36 m2, 5 of 44 m2, and 1 of 61 m2) respond to three different programs, but always follow a similar typology: a common space that integrates a kitchen-dining-living room that distributes the access to the rest of the rooms.
The composition of the facades is based on the recognition of the environment, opting for openings in the form of balconies in order to have planters that give joy to the habitats and life to the street. It is proposed the incorporation of adjustable solar protections for the glazing that allows the sun to shine in winter and avoid it in summer.
Project gallery
Project location
Address:08552 Taradell, Barcelona, Spain
客服
消息
收藏
下载
最近













