查看完整案例

收藏

下载

翻译
Architects:DDAP Architect
Area:800m²
Year:2021
Photographs:Indra Wiras
Manufacturers:Tekuni Gallery
Lead Architects:I Ketut Dirgantara, M.T., IAI
Construction:Herland
Landscape:Suksma Garden
Design Team:I Ketut Dirgantara, Yuni Utami, Banyu, Pande, Iwan
Clients:Mr.Hendra & Mrs. Lilie
Project Manager:Putu Oka Diputra
Lighting Design:Ong Cen Kuang
Interior & Furniture:Tekuni Gallery
City:Kuta
Country:Indonesia
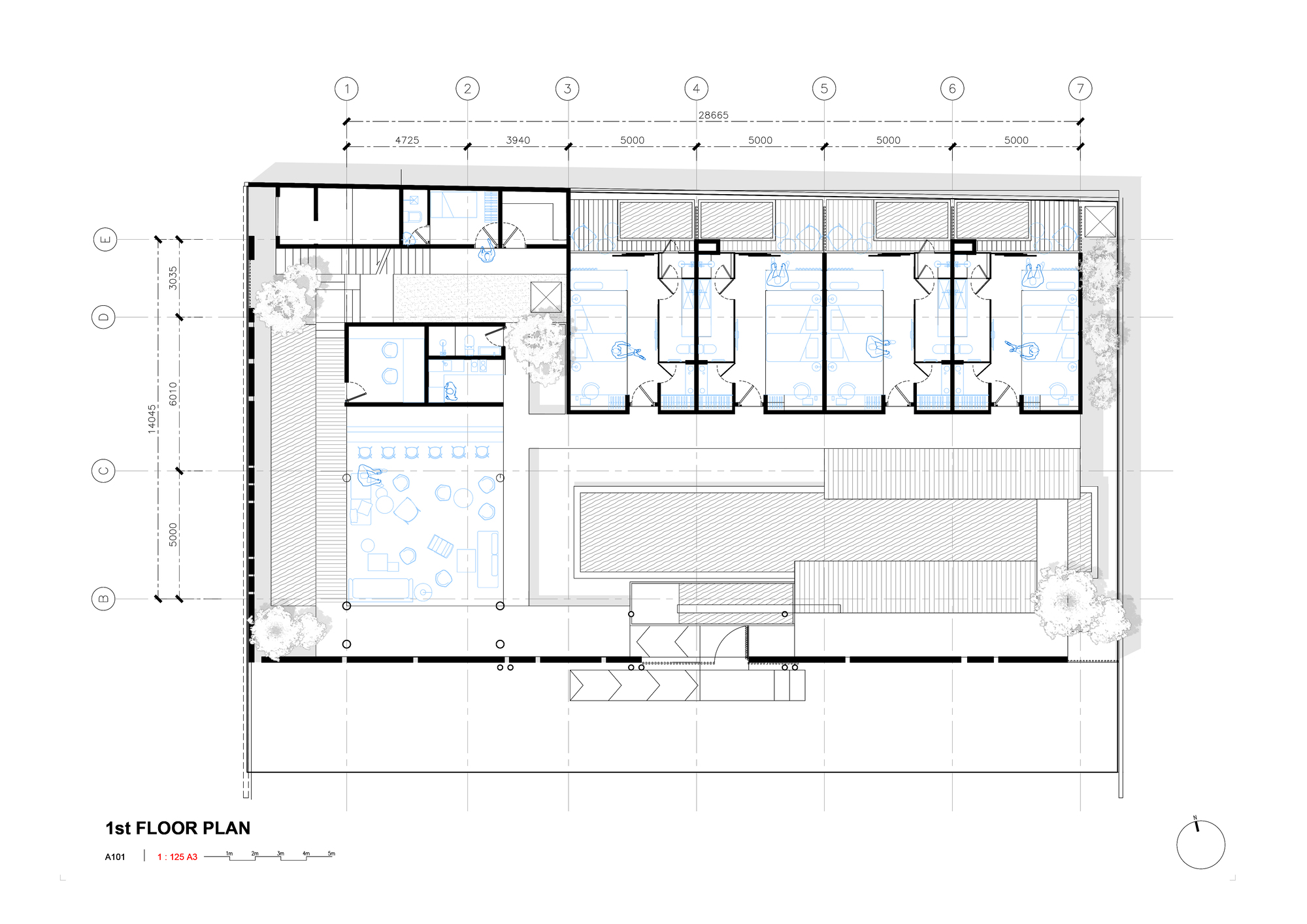
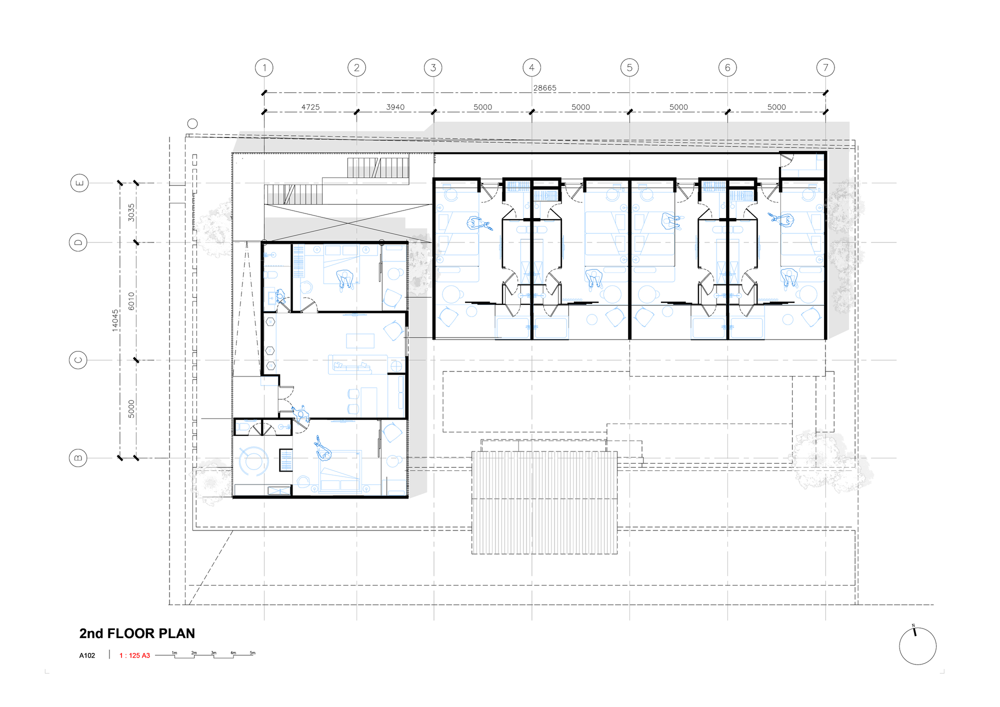
Text description provided by the architects. TEKUNIDUA, Brings Out The Real Style of Asian Architecture Today. TEKUNIDUA is an apartment living project with 4 garden rooms, 4 standard rooms, 4 suite rooms, and one penthouse stands in an 800sqm area with a 1000 sqm floor area. Inspired by Asian Architecture, DDAP Architect boasts of Asia's diversity of materials, spaces, and scales as a potential character and a soul for the project. Located in a busy area of Kuta Bali, TEKUNIDUA offers a new skyline to the streetscape, its play with massing, height, protrude, and recessed facade. The client wants a similar set of the aesthetic principles of the previous Ruang Tekuni and to bring an oasis in urban peak areas. DDAP plays with scale, lighting, shadow, breeze, winds, and also scents to respond to the senses and tension of the user.
The architect's simple mission is to move all the beautiful reclaimed materials from the client's warehouse to apply to the project. The client's warehouse surprisingly contains not only reclaimed wood but also natural materials, used quality furniture, recycled tiles, granite, marble, and also unique used accessories. The architect needs to think about how these materials can be embedded in the project with harmony and assembled to represent the memories of the owner's wood business journey. "We feel that these materials have a soul so that when we apply them to this project the soul will be attached and will be felt by users". The use of reclaimed and recycled materials will not only help to reduce the project's budget but will also be incorporated into sustainability principles.
From the warehouse, more than 10 sets of reclaimed traditional Chinese truss were applied to emphasize the entrance, facade, and as an interior decoration part, especially on the upper rooms and penthouse. Besides that, 60 boxes of used Chinese medicine sublimation bottles are located right in the sunshine area and it turns into a beautiful lighting effect on the floor while also becoming a privacy barrier for the swimming pool. To enhance the stair area, the recycled table legs were applied as a north screen facade, creating an intricate pattern to the building. Reclaimed teak wood played well in almost every element of design such as column, wall, roof, and also interior. For detailed touch, recycled Javanese sugar molding was modified as the room numbers.
Asia is known for its diversity and so is TEKUNIDUA. The architect emphasizes the diversity of materials from the owner's warehouse and turns it into a beautiful project. The material is not only one type but various types. Not only from Bali, but the equipment also comes from Java, and some even from China. "We feel we have completed our simple mission. By interrogating the potential of reclaimed materials from the owner, it allowed the revamp of the embedded soul and a unique narrative for the project itself. But in principle, we still move on the basis of neatness and order so that the modern impression remains. This step might be our first step to bringing out the real style of Asian Architecture today".
Project gallery
Project location
Address:Seminyak, Kuta, Badung Regency, Bali, Indonesia
客服
消息
收藏
下载
最近































