查看完整案例

收藏

下载

翻译
Architects:Volpatohatz
Area:1010m²
Year:2021
Photographs:Niklaus Spoerri
Lead Architects:Nicole Hatz, Marco Volpato
Urban Planning:VOLPATOHATZ AG
Structural Engineer:Ernst & Eitel GmbH
Landscape Architect:Grand Paysage GmbH
Project Architect:Daria Hagea
Cost Control:Baukostenplanung Ernst AG
City:Birsfelden
Country:Switzerland
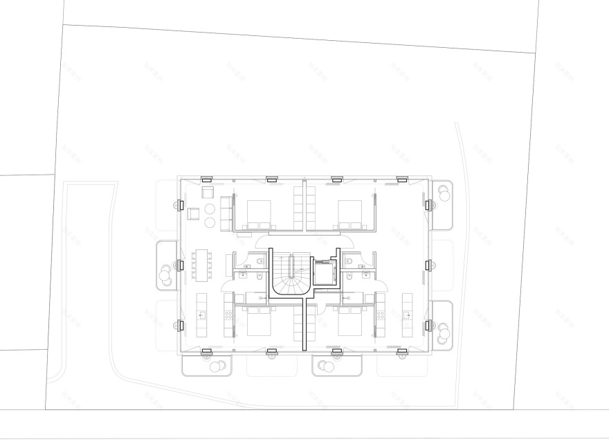
Text description provided by the architects. VOLPATOHATZ was commissioned to design a new low-rise apartment building in the heart of Birsfelden Switzerland, called ‘The New Lindengarten Development’. The new development is situated close to Basel consists of eight apartments over four levels plus a penthouse on the fifth level. Below ground is parking for nine cars, bikes, storage area, and a plant room.
Like a classic Italian Palazzina, balconies are located on all facades, however, displaced in an alternating manner allowing each apartment the possibility of accessing a balcony from the living, dining, kitchen, even the bedroom. Floor plans share similarities with a Palazzina in that, living areas and bedrooms are placed on the perimeter of the building whilst bathrooms are attached to the central core comprising of stairs, lift and service ducts. The concept was to allow circulation around the perimeter of the building and separated by a party wall between apartments.
This becomes more evident with the penthouse apartment, one can freely circulate 360 degrees through the living, bedrooms and bathrooms with no walls to interrupt the flow. A 13-meter-long and uninterrupted living space, which flanks either side of the building floor plan, has windows on all three sides providing plenty of light to the kitchen on one end, dining in the center and living area on the opposite end. All windows comprise of a fixed panel and a glass door plus electric fly screens and louvers. Bedrooms are accessible from either end of the living space via sliding doors which butt onto the perimeter wall.
Balconies are 1.5 x 3 meter in dimension making it generous for several people to sit on a small table and enjoy a coffee or simply read a book. The concept was to connect tenants by extending the steel frame from one apartment to enclose the neighbor’s balcony above. There are specially designed pots on each balcony which hold plants that climb up along steel slated frames. Leaves, which adorn each balcony, will provide visual privacy and motivate and a connection between tenants to be co-care over of these plants.
The production of the balconies was a special process. Katia programs and latest production facilities and knowhow for making cars was applied to these balconies. It took two years to design, develop and produce these balconies and requiring only a few hours to install which sped up the construction process. Each balcony has its own floor drainage system incorporated with an access panel for inspections. The exposed rainwater pipe runs from the penthouse terrace through each balcony collecting water on its way down is easily accessible for maintenance.
Project gallery
Project location
Address:Birsfelden, Basel-Land, Switzerland
客服
消息
收藏
下载
最近





































