查看完整案例

收藏

下载

翻译
Architects:RVdM Arquitectos
Area:4178m²
Year:2021
Photographs:Ivo Tavares Studio
Engineering:Pedro Ferreira; Rui Lopes
Team:Rafaela Naia, Daniela Melo, Nuno Marques
City:Aveiro
Country:Portugal
Text description provided by the architects. ORIZZONT BUILDING - Aveiro Until recently the city of Aveiro was turned back to the water landscape. The salt pans and the Ria de Aveiro were understood, especially until the 1980s, as spaces that were affected by industrial production. For the production of salt, the collection of ‘moliço’ and the careless use of its channels as wastewater conductors of the region's industry. Everything has changed, however, for the better. The building is now positioned in a privileged location facing the Ria, on the western edge of the city.
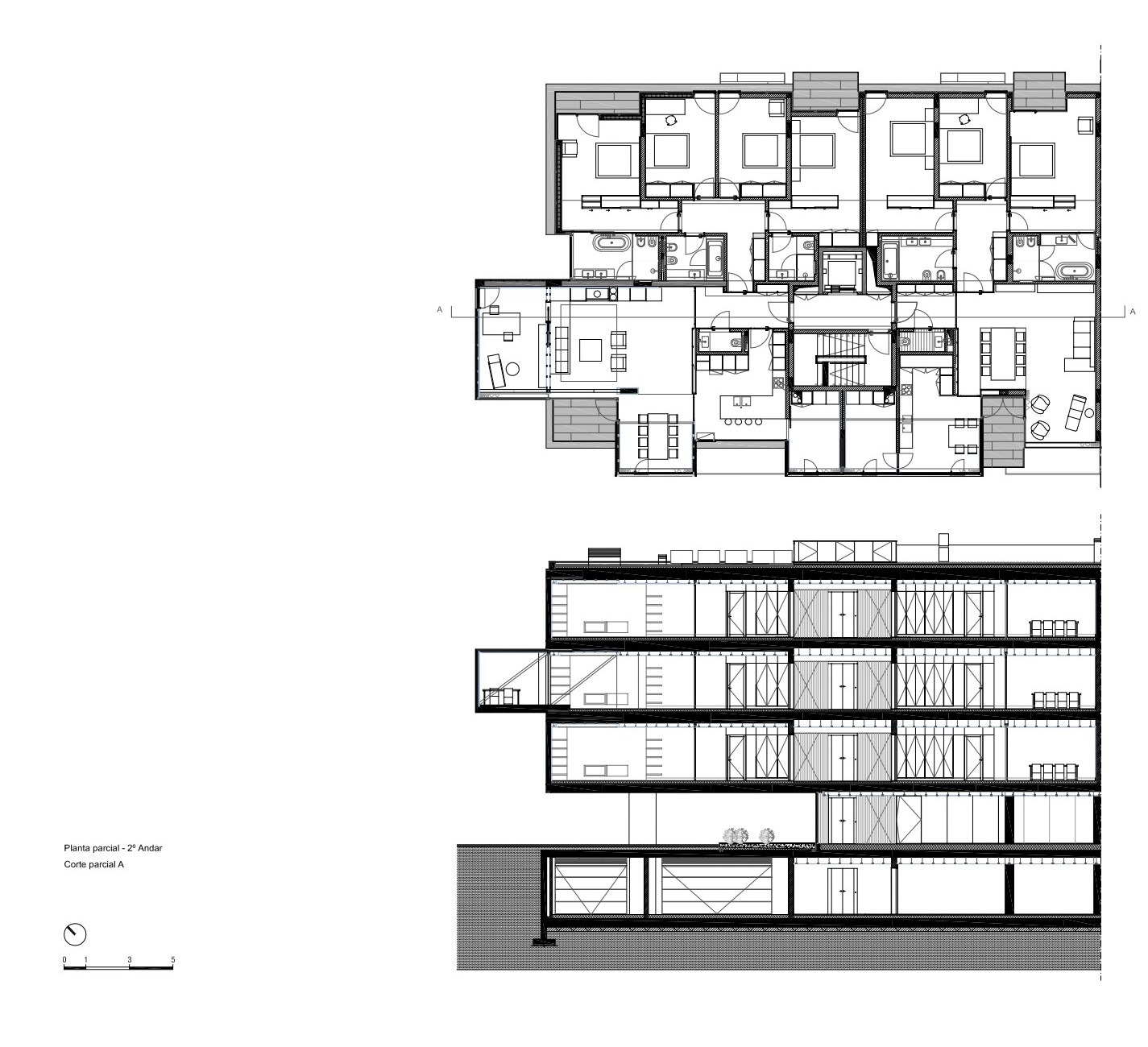
Functionally, the building is organized in three layers: The ground floor defines an antechamber for the dwellings. The apartment floors organize common spaces to the sunny south/west, and the bedrooms face the opposite quieter quadrant. The basement floor offers a complementary program with a condominium room and patio facing the heated swimming pool.
Project gallery
Project location
Address:Aveiro, Portugal
客服
消息
收藏
下载
最近



































