查看完整案例

收藏

下载

翻译
Architects:B-architecten
Area:4253m²
Year:2021
Photographs:Lucid
Lead Architect:Pieter Van Den Berge
Structural Engineer:UTIL Structuurstudies
General Contractor:Groep Geudens bvba
Design Team:Evert Crols, Eva De Clerck, Emilie Dorekens, Isaura Doumen, Dirk Engelen, Sven Grooten, Lennert Hermans, Olmo Peeters, Pieter Van Den Berge, Evelien van de Riet
Client:Alta Build nv
Technical Engineer:PI-consult bvba
City:Antwerp
Country:Belgium
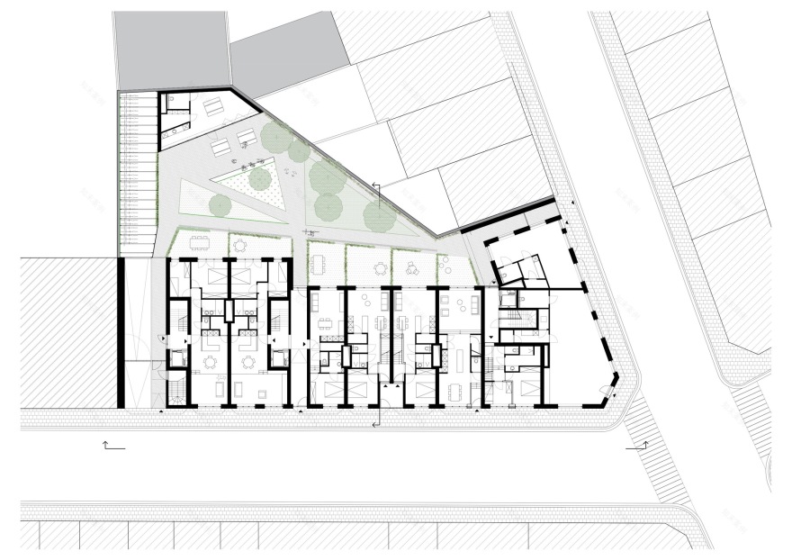
Text description provided by the architects. W.PLACE is located on the corner of the De Wittestraat and the Kemmelbergstraat in Berchem. For this purpose, the former police station on this site was completely demolished. The project consists of 25 residential units, two commercial units around a communal garden with a neighborhood shed, a roof terrace, and an underground car park.
The building volume consists of a maximum variety of typologies, supplemented by the principles of co-housing. We designed townhouses with four bedrooms, kangaroo dwellings, two-bedroom duplexes, classic two-bedroom flats, smaller flats, and penthouse roof flats.
W.PLACE opens up to the south on the De Wittestraat and is provided with units with indoor terraces. The volume consists of a mix of through-zoned units, living on the street side or living on the side of the communal garden, with the aim of providing as much variety as possible and activating all façades.
The communal garden consists of places to sit, play elements, a herb garden, large tree sections, a bicycle shed, and a neighborhood shed: a communal space with a kitchen and communal materials for chores. At the same time, this can also be a place where the residents can invite their families.
In addition to the communal garden and the neighborhood shed at ground level, we also designed an easily accessible underground car park for all the residents. In the basement, there is space for individual storage rooms of the residents and a communal laundry room with washing machines and dryers.
The roofs of the various terraced housing typologies form a landscape of lush roof gardens and roof terraces, including one distinct communal roof terrace for all residents.
Project gallery
Project location
Address:Berchem, 2600 Antwerp, Belgium
客服
消息
收藏
下载
最近






















