查看完整案例

收藏

下载

翻译
Architects:Plus Architecture
Area:44138m²
Year:2021
Photographs:Simon Devitt
Lead Architect:Ian Briggs
Project Team:Jaimin Atkins, Piers Bowman
City:Auckland
Country:New Zealand
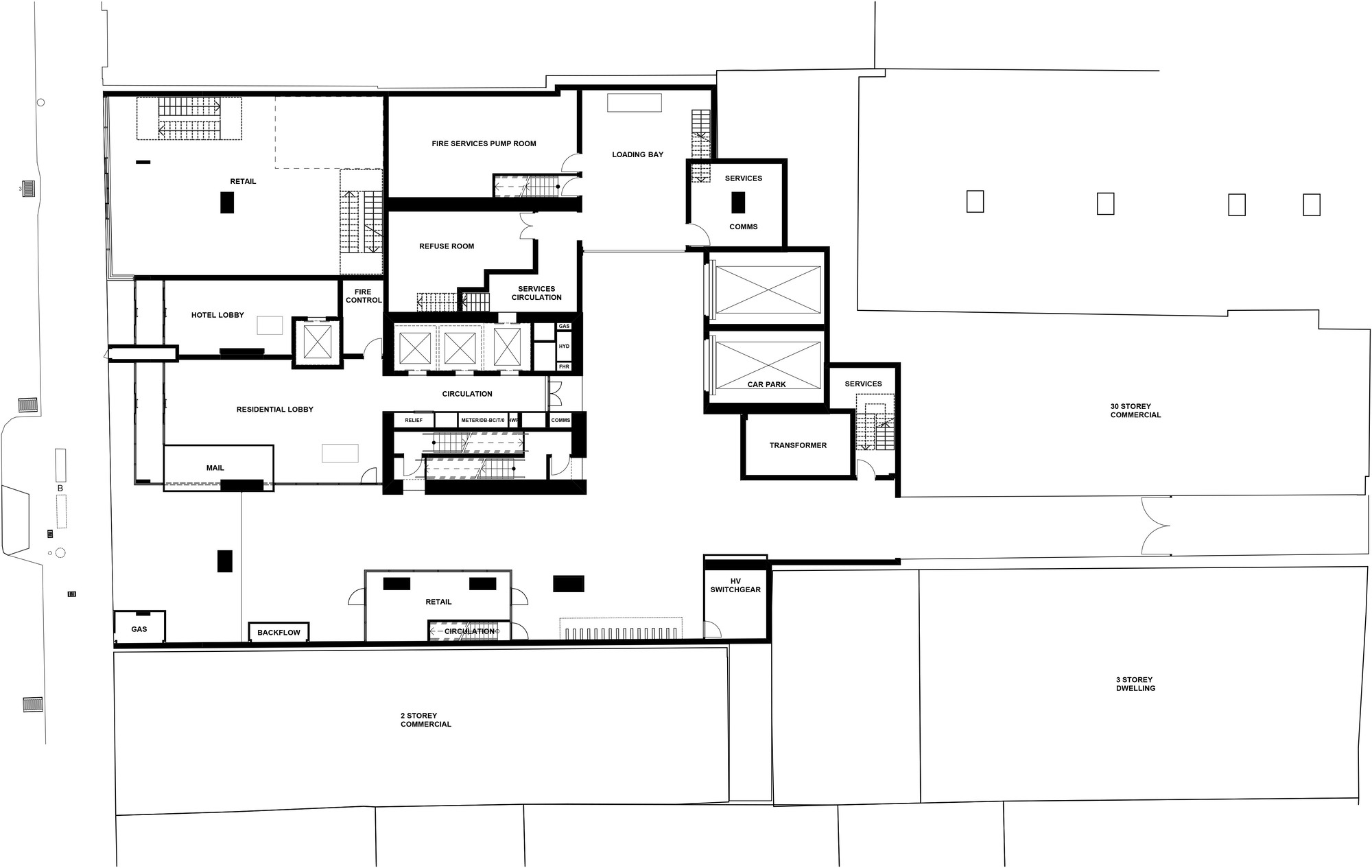
Text description provided by the architects. With The Pacifica standing at 57 stories and 178 metres high, it is Auckland’s tallest residential tower and will play a major role in the rise of Auckland’s CBD as a truly liveable city, featuring a mix of apartments, a boutique hotel, and retail spaces.
With the development of The Pacifica commencing in 2016, the tower was designed for developer Hengyi. It features 272 sky-high luxury apartments with the highest quality amenities, including a heated lap pool, sauna, steam room, spa, gym, media room, residents’ lounge, library, and barbeque terrace – offering a true high-end lifestyle in the heart of Auckland. Apartments at the upper levels feature enclosed balconies, dubbed winter gardens, to provide a buffer between the resident and the outside, providing an element similar to a front garden.
The Pacifica is inspired by the beauty of Auckland and its backdrop. The building’s unique design was inspired by the laneways, with the lower levels of the Pacifica crisscrossing before projecting upwards. Then, above the podium level, the glass facade is designed to reflect the surrounding city’s wide-open blue skies and sparkling waterfront, with every element inspired by its environment, from the jewel-like structure, material enhancements and colours referencing Auckland's stunning coastal setting.
With a focus on the details, The Pacifica also pays homage to the cultural significance of the area, emphasising the Maori Pikorua motif of two intertwined pikopiko ferns, represented in the ‘twist’ pattern on the building’s exterior.
Project gallery
Project location
Address:Auckland, New Zealand
客服
消息
收藏
下载
最近




























