查看完整案例

收藏

下载
向来喜欢给项目起名字,带着各种期许与设定,或许已不仅仅只是拟人化
要好看,要耐看,要有性情、有气质,要不同俗、不自媚,要在寄托精神层面的同时满足功能需求,
还要能随着
时光变、年岁增、
科技
日新月异地更新不落伍……有这种标准要求,设计确实是件永无止
境的事,当然,乐趣同伴始终 —— 琚宾
这套叫“度半”,比起“见山”、“长青”,是另一种角度的“素”,可能进入后会感觉更自在、更放松一些
▲ 餐厅 | 上图为设计图、下图为实拍图
▲ 起居室 | 上图为设计图、下图为实拍图
▲ 门厅 | 上图为设计图、下图为实拍图
▼ 改造 | 现场
一直希望空间剥离掉社会属性,让空间回归空间本身,材料回归材料本身。以材料本身的特性,辅以
人工,
或单一或混合,寻求一种平衡的状态,让其只为空间所用,以一种最基本的方式诠释对人与自
然关系的理解
让我们只在意内里的空间和材料之间的、经美的方式过滤过的最本质的建构对话
起居空间设计上偏向舒适的功能性,为了让设计更具持久性,避免落入‘流行色’的消费主义圈套,设计
以黑白灰和木为主色,干净的背景可使家具、装饰、光线甚至是艺术、情感更为突出,这也是简约的最
大意义,在整个空间中,没有显著的东方符号堆砌,却自始至终浸透着东方特有的禅思静谧
餐厅与厨室用特定移门及酒柜相隔,通过移门的开合,创造出灵动的空间组合,使空间既可融为一体,
也可
单独使用。立面构成上,既往保持一贯的整体,背景饰一钢制屏风,原天花横梁严重破坏了起居和
餐厅的完
整性,通过立面构成统一处理成块面,简约的作用之一是洞穿固有思维,继而重新调整对待生
命的态度
▲ 厨房
▼ 过厅
作为主人居住空间,采用“银杏”硬包饰面点题结合木色立面构成做了不对称的设计,从而拉长了背景
宽度
借以美学的视角,搭建家具间一气呵成的体块关系,从视觉、听觉、嗅觉堆砌丰富而多元的情感空间
次卧,设计延续了主卧的色彩和立体构成关系
设计了学习台和书架,衣帽柜侧设了试衣镜
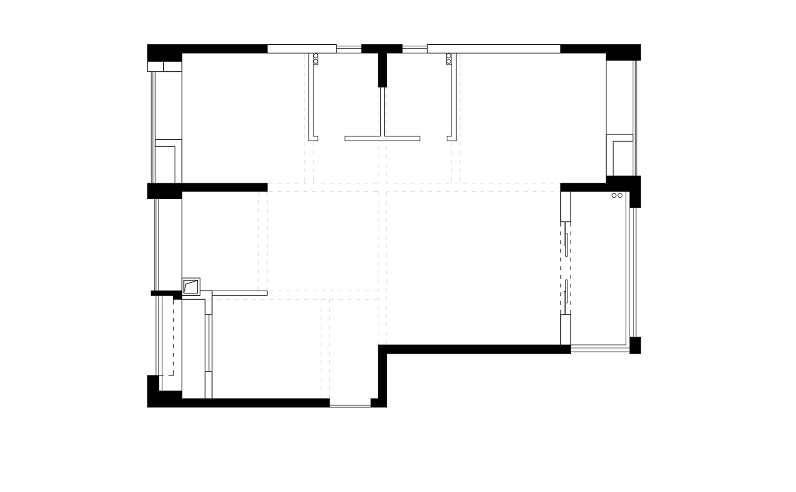
▼ 原始 | 结构
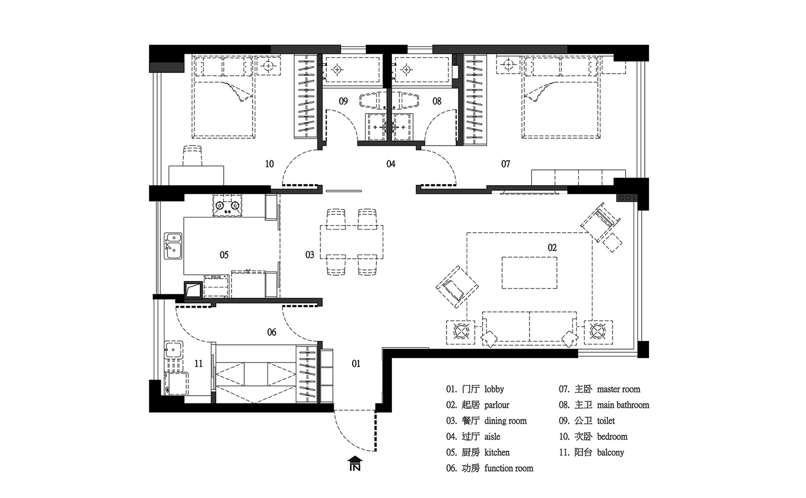
▼ 设计 | 方案
远看东方近看无
将设计的精神与东方文化的内核,与现代生活相依相融
在空间规划上,设计的一切都基于对生活的理解:家庭伦理的次序和人情的温度,继而结合到现代居住
环境
和空间格局之中,探索空间秩序和几何比例,使其呈现出简单自然的元素,予居住者一种真正的生活方式
艺术源自热闹的世界,却长存在恬静的生活
所谓「家」,装点的是生活
抛开形式,从情感层面直切内心
耳听松风,如在山林
项目名称 : 度半 | 远看东方近看无
开发建商 : 隆恒 · 财富广场
项目地点 : 福建 莆田
室内面积 : 103平米
设计时间 : 2018.06
风格定位 : 新中式风格
设计公司 : 元兀设计
主创设计: 苏清华
施工单位 : 自装(致敬大龄阿姨)
客服
消息
收藏
下载
最近























