查看完整案例

收藏

下载

翻译
Architects:HápticaLab
Area:170m²
Year:2021
Photographs:Amy Bello
Manufacturers:AutoDesk,Chaos Group,Trimble
Lead Architects:Mariana Pedrero Romo
Collaborators:Diego Garduño Pérez
Builder:Diego Garduño Pérez
City:Cholula
Country:Mexico
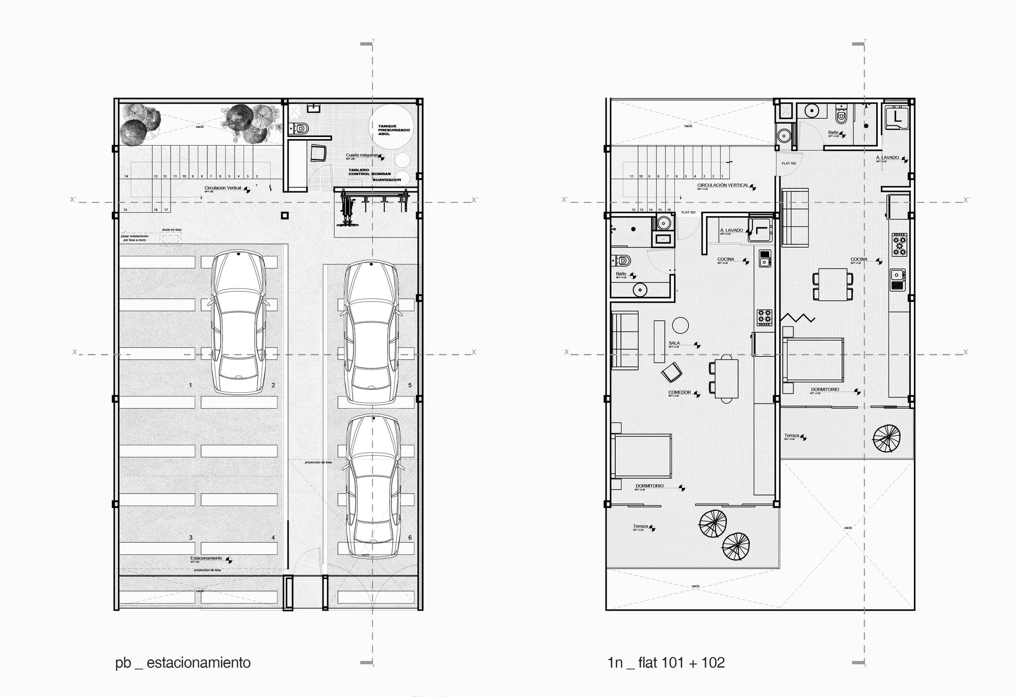
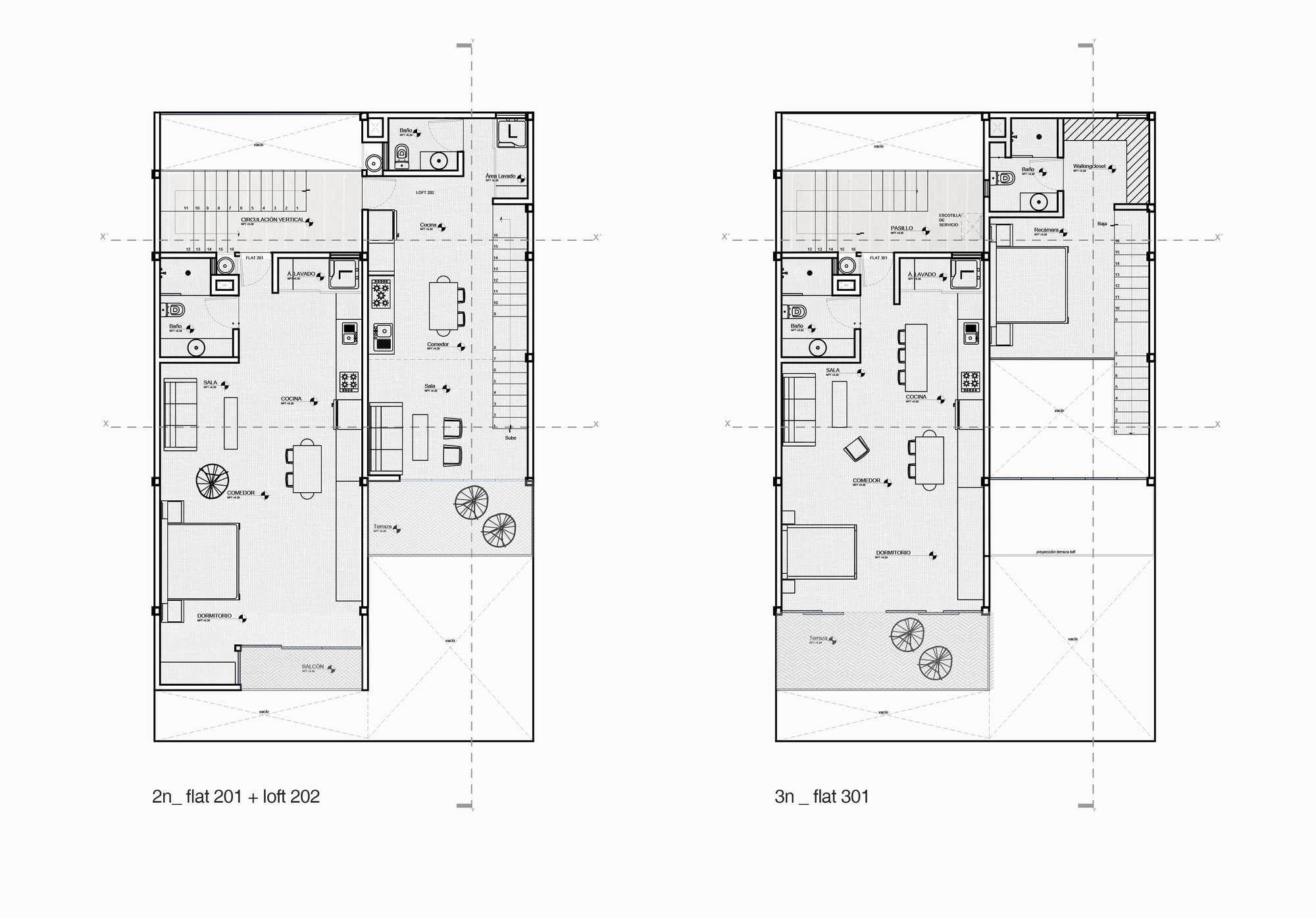
Text description provided by the architects. The project is located on a 170m2 site in Zerezotla, San Pedro Cholula Puebla. It houses four open-plan flats and a double-height loft with generous terraces, parking space, and roof gardens.
Zapoteco ONCE13 was born as an exercise to generate housing under the premise of a minimum living area. This space gets ordered through an interior element that organizes and dictates its inner function.
The fusion of architecture and furniture makes the flats an interactive space with the user. Day-to-day activities are distributed and organized by a piece of 9-meter built-in furniture. On the facade, the concrete body represents a terrace per floor. Therefore, those living here will get the feeling of both being inside and outside.
Zapoteco ONCE13 also presents an alternative to living away from the city and being immersed in a natural environment: powerful views of the Popocatépetl and Iztaccíhuatl volcanoes, and the Zapotec Reserve.
Zapoteco ONCE13 celebrates and respects today's cities' industrial aspects using only the space and materials necessary. However, with minimalist features, this small residential building has all the essential things to live comfortably. Moreover, it opens the possibilities for users who seek to invest in a residence without the hassles and costs of building and maintaining a traditional home.
Project gallery
Project location
Address:Residencial Zerezotla, Cholula, Pue., Mexico
客服
消息
收藏
下载
最近




















