查看完整案例

收藏

下载

翻译
Architects:Ryuichi Sasaki / Sasaki Architecture
Area:447m²
Year:2020
Photographs:Nacasa & Partners Inc.
Lead Architect:Ryuichi Sasaki, Sasaki Architecture
Lighting Design:Lighting Sou, Natsuha Kameoka, Lighting Sou
Design Team:Gen Sakaguchi, Yuriko Ogura, Sasaki Architecture
Client:Ascot Corp.
Contractor:Maeda Komuten
City:Shibuya City
Country:Japan
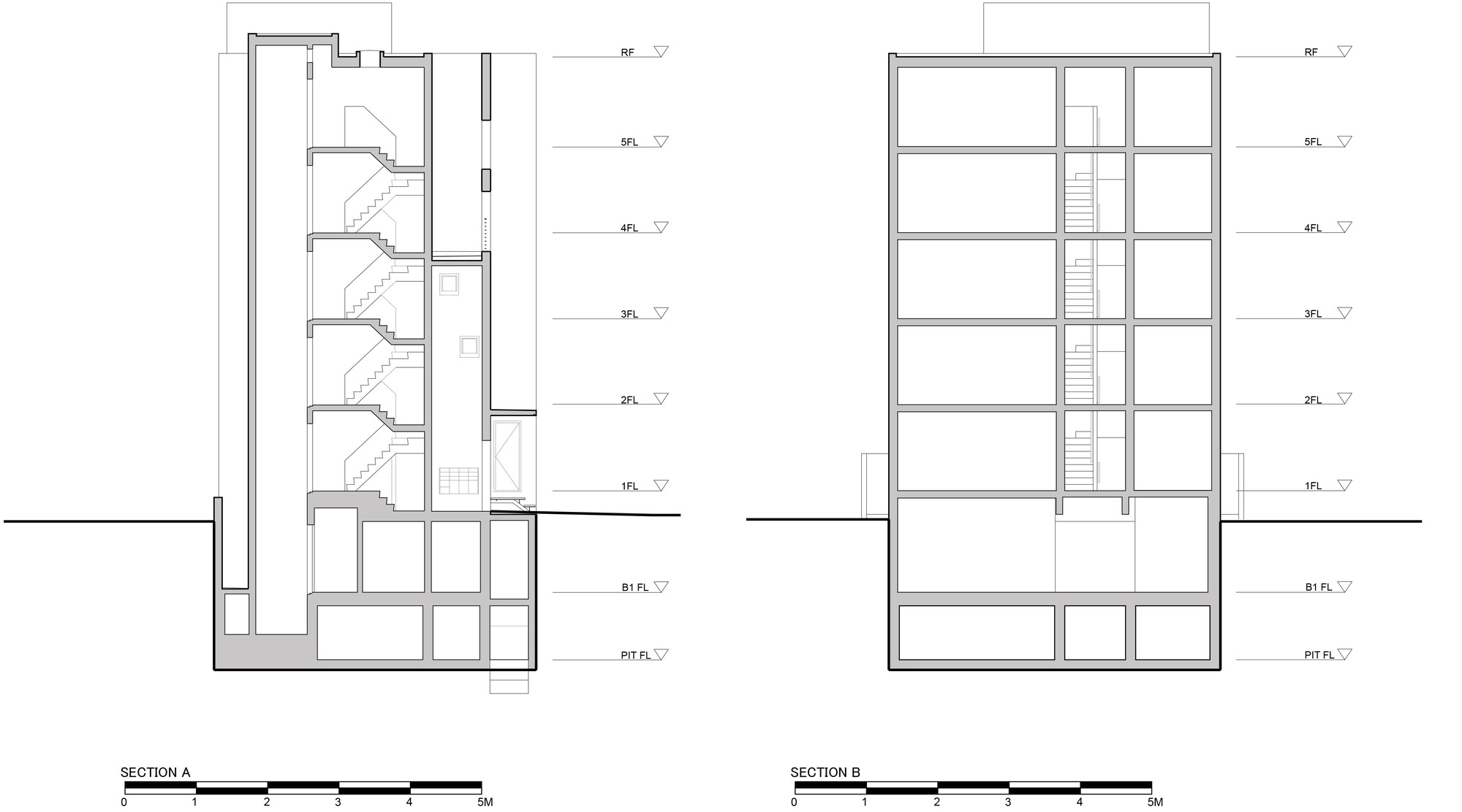
Text description provided by the architects. Some of the main key challenges of this project were to create spatial sensations within the rooms, while limited to a small property. This has been achieved by applying sliding doors as dividers of apartment rooms, resulting in widening the living room area and giving it a wider and spatial feeling.
Similarly, in the smaller studios, a similar yet very different approach was taken. Instead of the sliding doors, the wall that separates the closet and the main room does not reach the ceiling — by being a self-supporting wall it gives a sensation of more space within the given size of the studio, which is less than 20m².
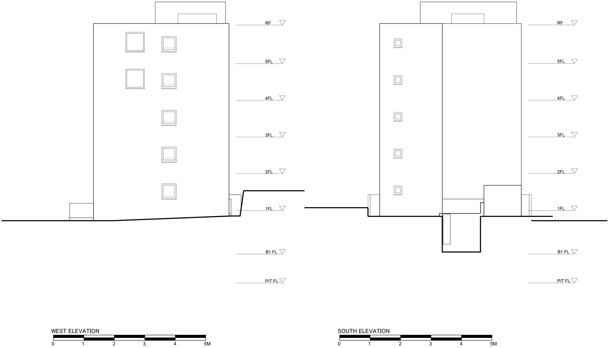
One of the key products that have been used is reinforced concrete, the skeleton of the structure, holding it up and adorning the interior and exterior of the building with indenture openings design across its facade. In addition, some of the glass windows are framed by materials such as bronze-colored stainless steel and cedar board forms — which assist in maintaining the square framework intended design, while also giving it an overall abstract composition.
One of the unique features of this project is its overall balanced composition, connecting the rooms within the residential area by incorporation of a three-story high enclosed atrium space between them as a divider of space. The uniqueness of it comes from the conceptual idea of the residents being aware and close to each other, while also maintaining their privacy, by the use of square-shaped opaque windows on the atrium’s walls facing each other.
Project gallery
Project location
Address:Yoyogi, Shibuya City, Tokyo 151-0053, Japan
客服
消息
收藏
下载
最近






























