查看完整案例

收藏

下载

翻译
Architects:VOID Studio
Area:8730ft²
Year:2021
Photographs:Zaickz Moz
Manufacturers:Axoque Studio,Casa Atica,La Metropolitana,Porcelanosa Grupo,Taller LU´UM
Design Team:Luisa Fernanda Rodríguez Uranga, Joel Armando Martínez Valdez, Gabriela Sisniega
Engineering:Víctor Gurrola
City:Tulum
Country:Mexico
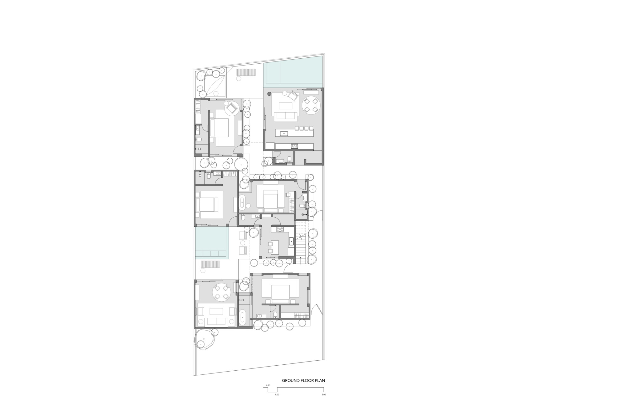
South of Tulum, on a 476 m2 plot, architects Fernanda Rodríguez and Joel Martínez designed and constructed four apartments which, altogether, sum 811 m2. Each one has its unique layout and personality, but they all were planned to ideally respond to the environment and provide quality spaces.
With a discreet facade, the architects devised a development that would open inwards, that would make view of its own space, opening to its forms, its textures, colors, lights, shadows, and vegetation.
There are two private pool units on the ground floor and two terrace units on the second level; the four with two or three bedrooms, the four with a disposition that makes one go to the exterior before getting inside the next room.
“We wanted each apartment to felt different, we wanted people to identify with the place, to make the apartment of their own as they explored it. But it was also important to make sure they knew they were in Tulum, that they lived the jungle, the heat, the ambient humidity and, of course, the skies” –says the architect Fernanda Rodríguez.
Along with achieving clear transitions between interior and exterior, another objective was to achieve a type of independence and privacy that wouldn’t require walls entrenching the residents or a development cut in four. For the architecture firm it was important not only to link the inhabitant to the environment but also to encourage the interpersonal connections. For this reason, the apartments are intertwined and let the presence of the others be perceived in places like the crossing passageways, bridges, and the matched angles.
With the idea of experimenting views and natural conditions as plainly as it could be, Cuatro Cielos was built with local materials: chukum stucco for the floors, walls and pools, limestone –collected from the same digging– as gravel and exterior coating, Maculí Wood and jiles fences. This selection, apart from involving the use of local and traditional techniques, has the merit of giving the buildings good resistance for the site conditions: jungle, saltpeter, lots of sun and humidity.
Aesthetically, the natural character of those materials pay tribute to the beauty of Tulum’s jungles and beaches, and it exploits the impact of sunlight on its surfaces, turning out in colors, textures and entire atmospheres that change according to the hour of the day and the season of the year.
Project gallery
Project location
Address:Tulum, Quintana Roo, Mexico
客服
消息
收藏
下载
最近





















