查看完整案例


收藏

下载

翻译
A modular living system by the Wood Program at Aalto University
As the Nordic countries have recently been experiencing fluctuations in population, it has become apparent that there is a severe shortage of temporary housing solutions for students, asylum seekers, displaced residents, and others with similar short-term needs.
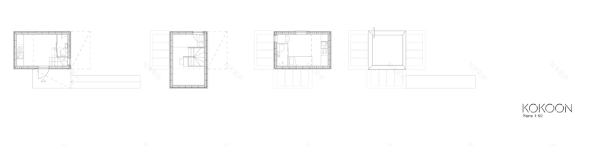
In urban and sub-urban contexts, the pre-fabricated modules can be transported and combined into various configurations to fit numerous sites. Rather than the typical approach of autonomous, deployable containers, Kokoon allows for habitable space that can expand both vertically and horizontally. Additionally, simple approaches to storage, lighting, and spatial division ensure that the interiors are both practical and dignified.
Kokoon is a design / build project from the 2015-2016 Wood Program at Aalto University School of Arts, Design, and Architecture. It was constructed to address the current housing situation in Finland. The three prototype units were finished in Otaniemi and assembled on-site in one day. They are intended to be displayed and used in various locations around Finland over the coming years.
客服
消息
收藏
下载
最近























































