查看完整案例

收藏

下载

翻译
Architects:Hamed Hosseini
Area:3700m²
Year:2021
Photographs:Mohammad Hassan Ettefagh
Manufacturers:AutoDesk,Adobe,Deland,Tabriz Tile
Lead Architect:Seyyed Hamed Hosseini
Design Colleague:Shadi Shademanrooz
Client:Yousef Farahani
Structure Design:Ashkan Feizi Raad
Executive Supervisor:Farid Farahani, Ali Farahani, Salar Negahban, Kiana Moghadam
Diagram Design:Melika Asgari Sereshg, Fatemeh Sadat Abiri
Executive Group:Farasazan Group
City:Tehran
Country:Iran
Text description provided by the architects. The PAEIZ 6 project is located in Tehran, at the intersection of 3 streets. There is a small green space in the northern part of the project. For this reason, the entrance of the complex was defined in this section to ensure easier access, and to be able to enjoy the desired view of the greenery from the lobby. The facade shell with its positive and negative horizontal levels is inspired by NAHAZ O NAKHIR (a kind of bricklaying method in Iranian historical architecture) so that the viewer can see different lights and shadows at each hour of the day. Among these shapes, Using plants also helps to avoid routine.
Choosing the combination of brick and stone, while having harmony with each other, has been done in order to respect the city and in order to accompany the surrounding buildings as much as possible. By designing windows like puzzles with different and various dimensions, in addition to being different from the common forms, has formed an integrated shape. Vertical access is placed in the middle of the eastern side so that the units can use as much natural light as possible so that the division and common spaces are reduced to a minimum. Stairs, elevators and corridors which are dividing the units with their transparent material led to maintaining the visual connection of the spaces and as a result, it appears larger.
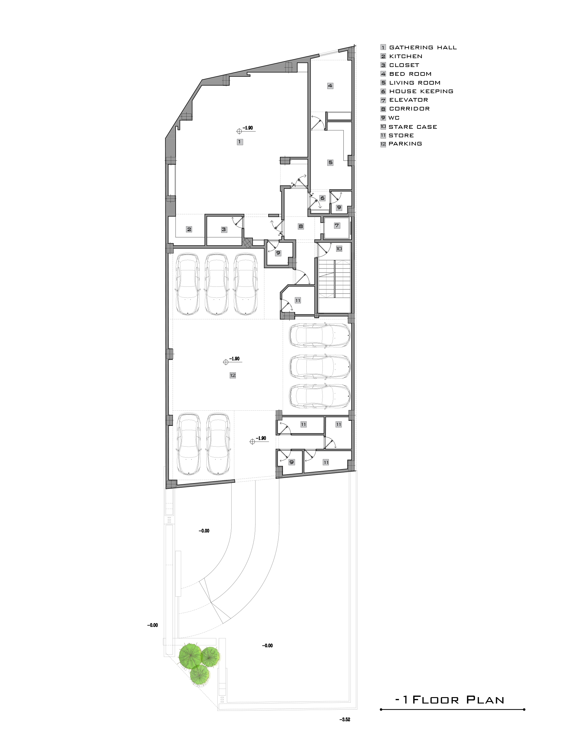
As our design mainstream, the use of plants in the facade, lobby, basements, the lobby between units and interior design can be seen. The yard did not have enough space for landscaping as a result of having two ramps. In order to solve this challenge, The roof of the ramp is prepared to grow plants. The ground floor consists of two parts, the southern part is parking and the northern part is lobby. The lobby, while having seating and waiting areas, includes a guard post and security equipment, which is decorated with Fountain and plants. -1 and -2 levels consist of parking and storage, a gathering hall and a caretaker.
The residential project with 5 floors, totally includes 15 three-bedroom residential units. The roof has various facilities such as a bathroom, kitchen, barbeque, Jacuzzi, sunbathing area and seating and walking areas. Numerous seating spaces are located at scattered points due to the number of units and the possibility of simultaneous use. Walking paths through the gardens have defined a suitable space for walking. Due to the desired view to the north (mountains in the north of Tehran) and south (QEITARIEH Park), the walls of these two sides have been shortened with gaps, while the western wall overlooking the neighborhood is surrounded by higher walls.
Project gallery
Project location
Address:Tehran Province, Tehran, District 1, Sholeh, Iran
客服
消息
收藏
下载
最近











































