查看完整案例

收藏

下载

翻译
Architects:Ad Urbis Arquitectos
Area:390m²
Year:2019
Photographs:Nestor Kim Enríquez
Manufacturers:AutoDesk,Adobe,Trimble
Lead Architect:Kiovet Sánchez Álvarez
Design Team:Samuel Puente, Amed Aroche, Nguyen Rodriguez
Structural Engineer:Marisol Marrero Oliva
Electrical Engineer:Enrique Lopez Zimerman
MEP:Odrasir Ruiz González
Mechanical Engineer:Armando Quiñones
Collaborators:Nelsón Ponce, Edel Rodriguez Molano (Mola), Gabriel Lara (Gabo), Yaimel López
City:La Habana
Country:Cuba
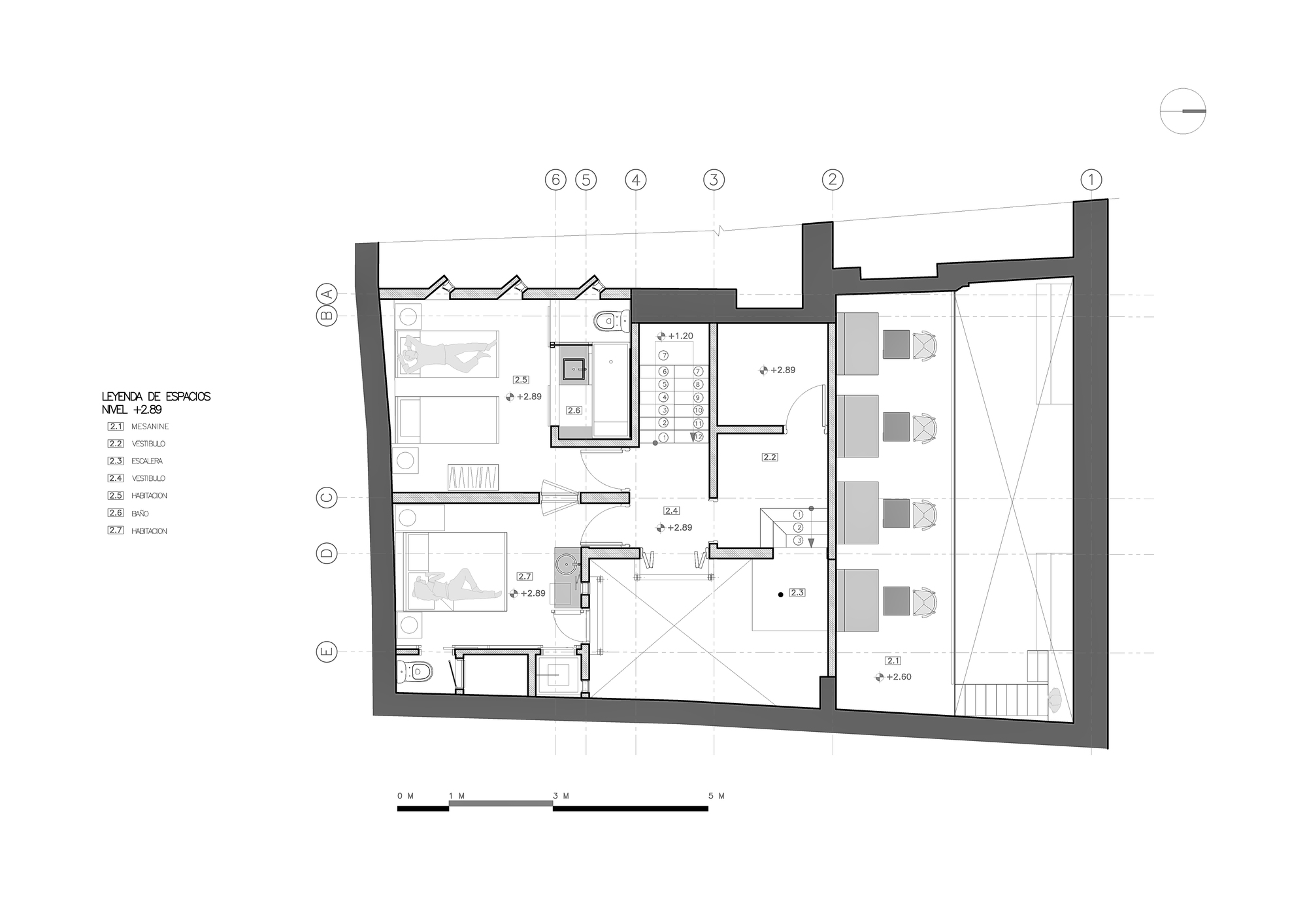
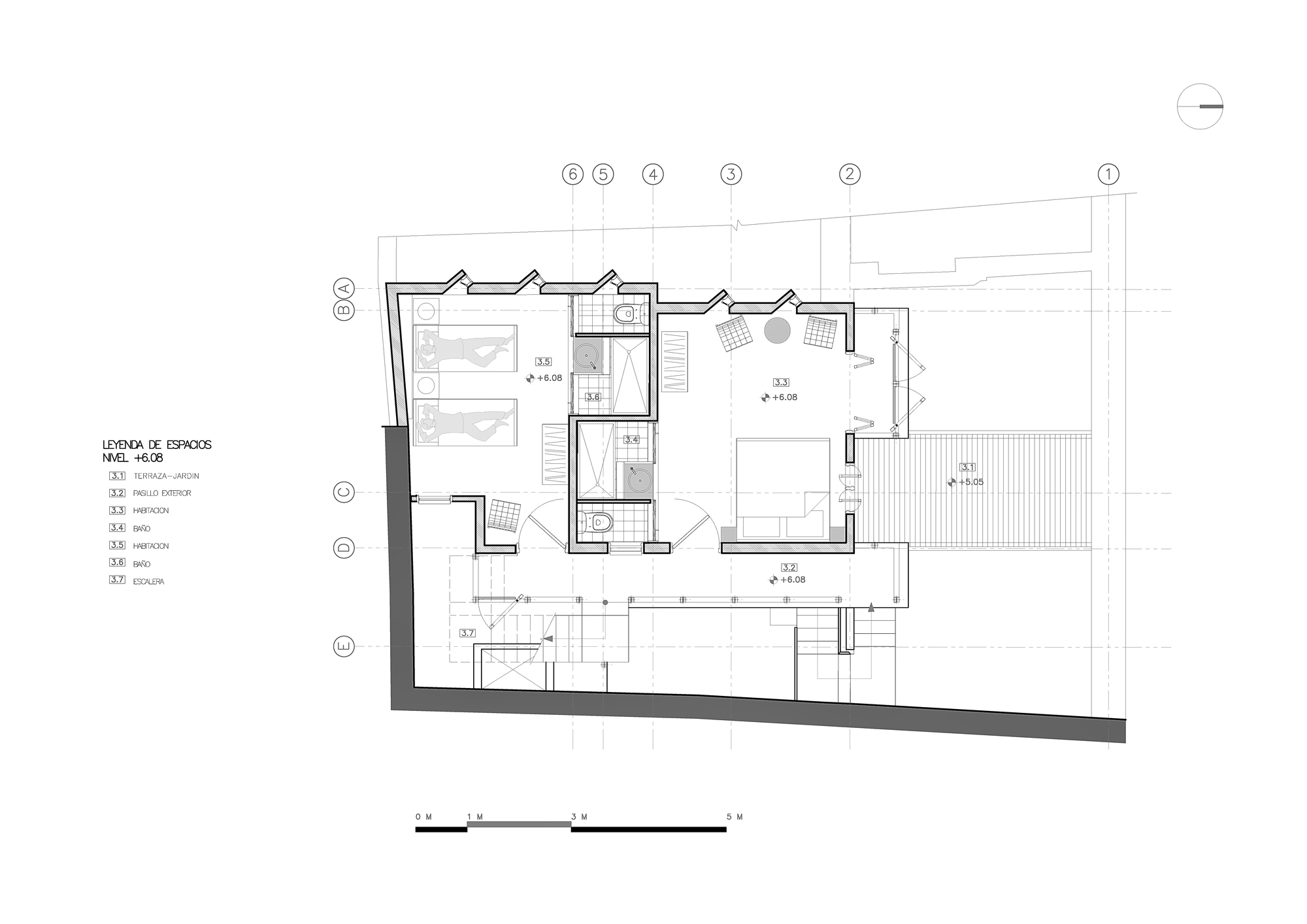
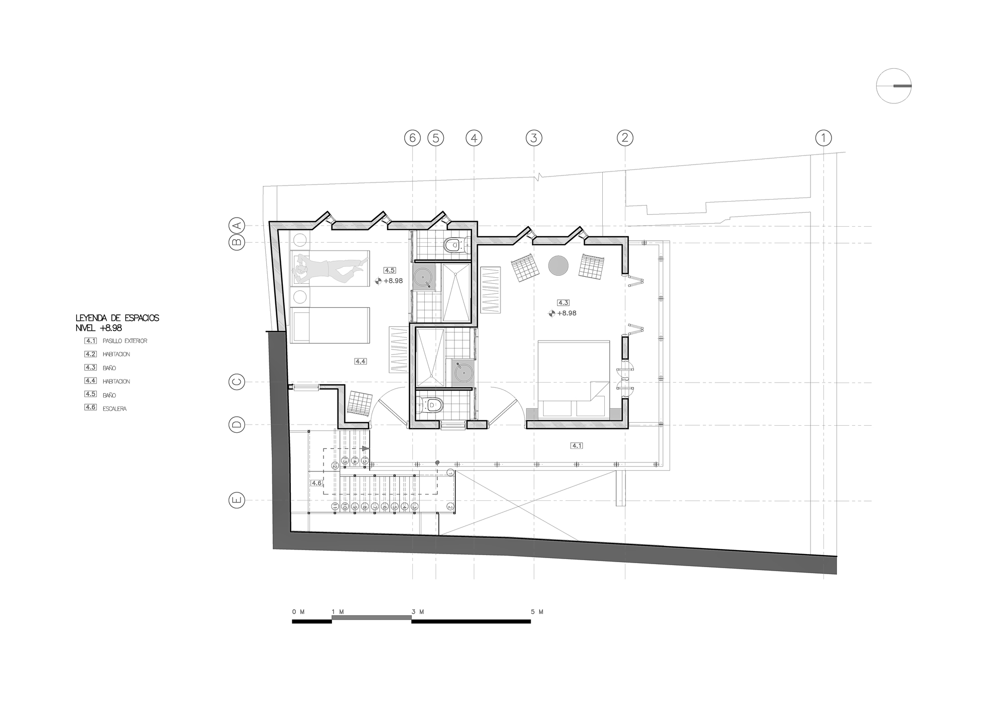
Text description provided by the architects. Located barely a few meters from Havana Bay, the studio for Santa Clara residence involved a complex research process. This process was mainly focused on discovering the rules to follow within the regulatory framework in the area, all of which allowed us later to add two levels above the original structure of the building.
The residence is part of a corner-building unity from the 19th century with patrimonial value. To turn it back into a boutique guesthouse of four levels, incorporating new communal spaces and extending the housing depth of the building, the undefined typology of the urban area, as well as the exceptional condition of the original building of having two different props in two different spaces (double order), were also taken into account. The addition of the new volume is conditioned by the surrounding heights. The new spaces were managed to be naturally ventilated and lighted without being detrimental to the neighboring buildings. The communal places, such as courtyards, inner galleries and corridors were reinterpreted in the new project, paying special attention to the new passageways, which are designed to yield prominence to the bedrooms, at the same time as intimate and private spaces are generated, a new landscape is built and the user is protected from the elements.
All finishes, woodwork, ironwork and furniture in this project are determined by a close relationship of collaboration established among local artists, artisans, carpenters and ironworkers. This is common practice developed by the team based on their understanding of the place, the local skills and the ability to find solutions, which is derived from working in a context of material scarcity.
Project gallery
Project location
Address:13 Santa Clara, La Habana, Cuba
客服
消息
收藏
下载
最近


































