查看完整案例

收藏

下载

翻译
Architects:TA+A
Area:353m²
Year:2017
Photographs:Koichi Torimura
Manufacturers:IOC Flooring,NOZAWA CORPORATION,SANKO METAL INDUSTRIAL CO.LTD,SHOWA FRONT Co.Ltd
Lead Architect:Kei Ihara
Structure Engineers:Eureka
Mep Engineers:TA+A
Textile Design:Yoko Ando Design
City:Itabashi
Country:Japan
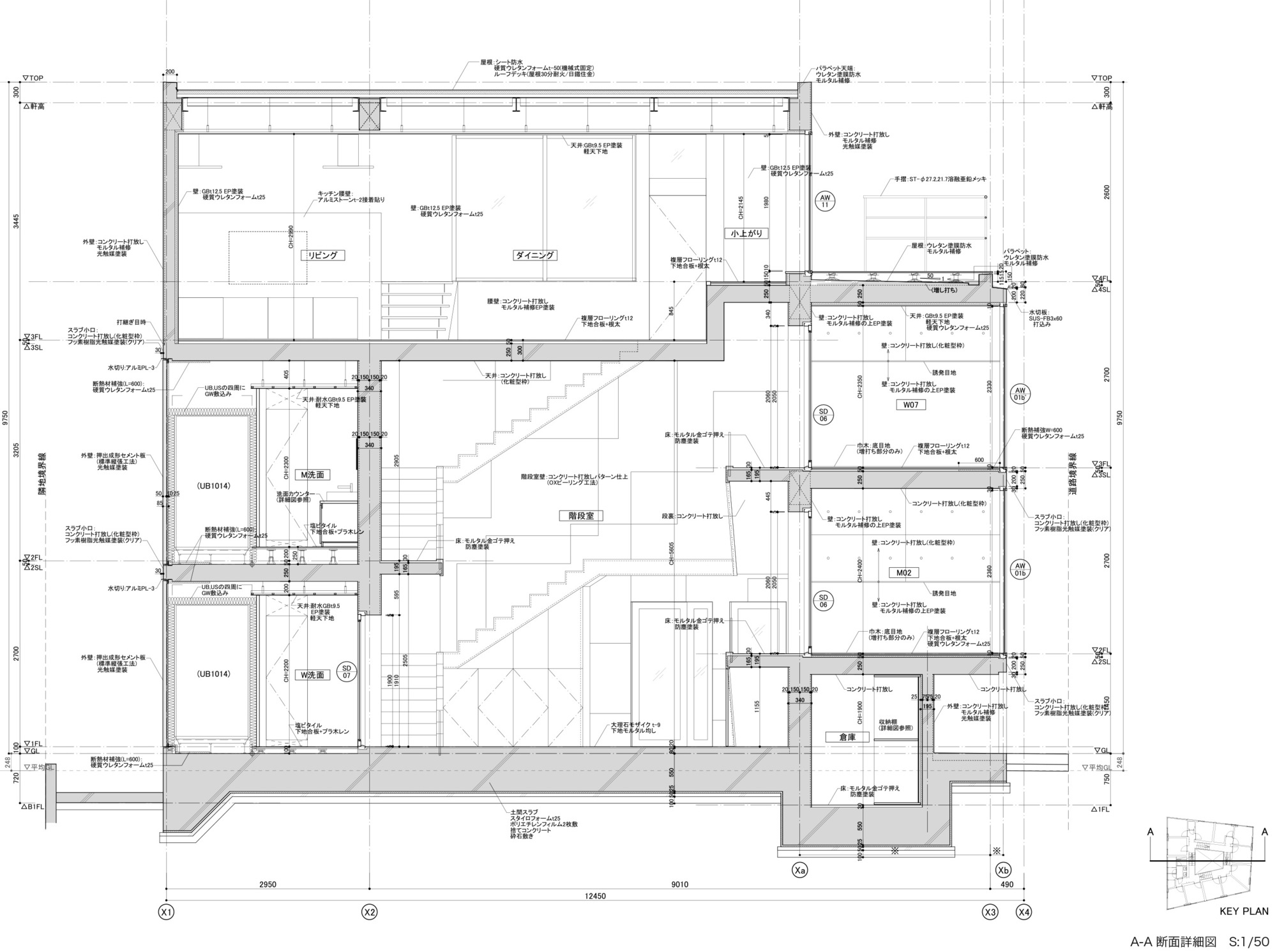
Text description provided by the architects. TA+A has completed ‘tokyo gasshuku-jo’, a share house in tokyo‘s itabashi ward with 18 living rooms that develop around a central atrium space. from the atrium, two concrete spiral staircases take residents to the various floors and functions of the building. We have clad the entire length of one of the stairs in double-layered textiles to softly divide the open space to provide enough privacy for different groups of residents.
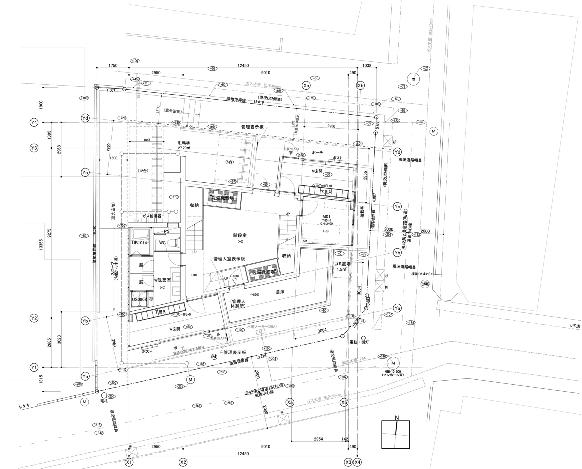
We have developed ‘tokyo gasshuku-jo’ as a four-story building situated on a corner lot in tokyo’s itabashi ward. the building operates as a one-month limit residence, aiming to create a new form of shared houses where the community is expanding while the inhabitants are constantly changing.
In the center of the building, a large atrium, complete with the two staircases, directs residents to the 18 living rooms and common spaces of the property. the outer wall of the common space on the fourth floor has been set back about two meters from the building’s perimeter. the remaining space forms an outdoor terrace while the final form of the building allows it to blend in with those that surround it.
Inside, common spaces include two kitchens and a large living room, characterized by a series of stepped levels that define smaller zones for interaction. In order to make the best use of the space and satisfy the space not specified by the module, we adopted a flat wall structure with no columns and beams.
By using a tubular body like a trunk that rises to protect the central blowout as the center core and performing calculations integrally with the stepped part as the beam element, the floor slabs and rise of the private room group from the center blowout core are all cantilever By taking it out with, the shape of the stepped slab is exposed to the outside as it is. I hope that this architecture will create a month's memories for many people over time.
Project gallery
客服
消息
收藏
下载
最近

























