查看完整案例

收藏

下载
这里是屋主一家三口的新居
女主人对于家的幻想
是五彩斑斓的白
是冷静且克制
是干净的,是自由的,是开放的。
01
餐厨
电器收纳区置于楼梯底下,
餐桌一侧做西厨,窗户边为中厨操作台,以餐桌岛台为中心形成环绕动线,满足了功能需求后尽可能把空间打开。
餐厅摒弃了传统的吊灯形式,采用实用与美观并存的景观灯,灯光打在质感的水晶构件上,形成非常独特的光影,搭配个性的罗奇堡餐椅,营造出浪漫的就餐环境。
02
客厅
业主非常热爱生活,对这个家的期待值很大,畅享以后每个家庭成员可能会在客厅发生的故事:
闺蜜聊天、哥们小酌、孩子看书、聚餐观影、下午茶看报...我们在这里做了一个场景化的设计,把客厅最大化使用起来以满足不同的生活需求。
投影墙不做多余装饰,顶部设计语言从墙面延续下来,繁星灯做整体照明。
03
楼梯
在保留原楼梯的前提下,优化踏步步数及踏面宽度,楼梯底部做收纳,踏步做对比色饰面,保证行走的安全与舒适性。
楼梯墙面做个性印花艺术漆,几乎每一位上楼梯的人都会伸出手去感受这一独特的墙面,非常有趣的体验。
04
儿童房
儿童房做了一个集休息、玩耍、兴趣于一体的集合空间,睡觉玩耍区充分利用了原建筑的特殊结构。
05
主卧室
主卧的休息区、工作区、休闲区、衣帽间、水吧区等功能合理分配到位,空间的的开放带来的是使用的自由。
以光为引,原本的楼梯间没有自然采光,比较压抑,通过内卫玻璃砖墙的设计,把自然光引入楼梯间,点缀有色花砖活跃空间,在楼梯间形成独特的光影效果。
06
茶室
顶楼露台改造成茶室,阳光房实木板封顶,留景观天窗,与茶桌相互呼应。
07
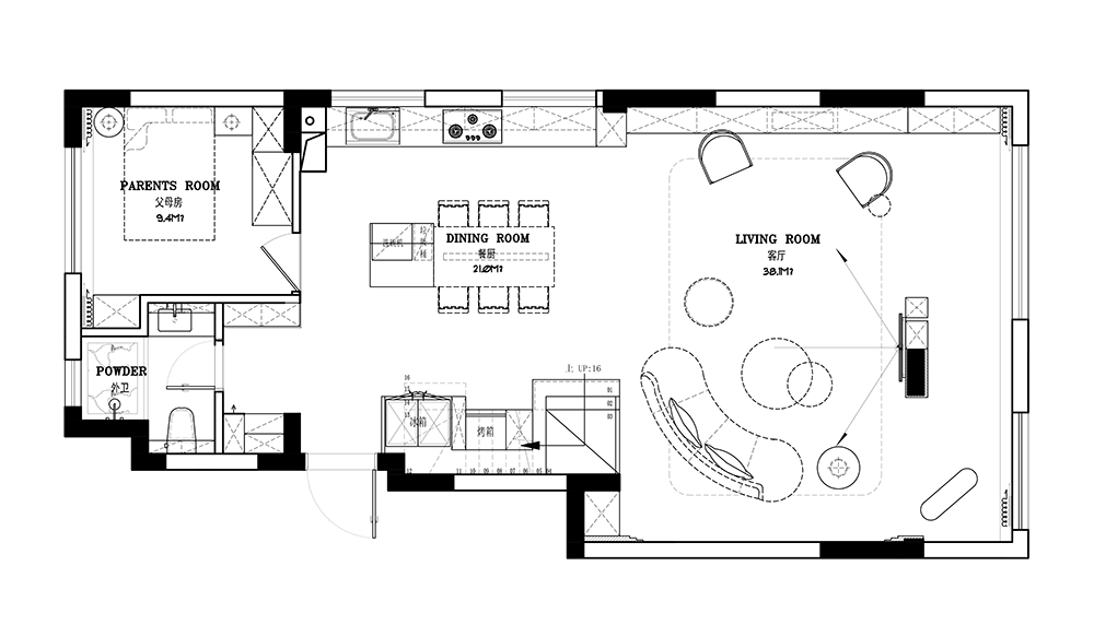
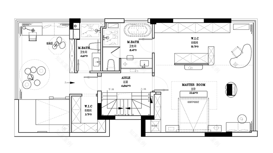
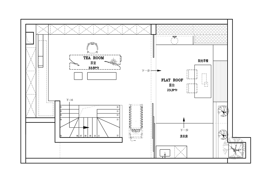
平面图
一层平面图
二层平面图
三层平面图
项目名称|红星天铂
项目位置|浙江金华
项目面积|350㎡
设计公司|徐氏空间
设计总监|吴佳玮
竣工时间|2023.10
主材品牌|明玉木作、蓝璟涂装、欧典软装、壹品照明、伊普莱思地板超市、蒙娜丽莎陶瓷
客服
消息
收藏
下载
最近





























