查看完整案例

收藏

下载

翻译
建筑师:H。BD工作室
面积:400 m²
年:2023
摄影:Pham Viet Anh
首席建筑师:Pham Viet Anh
设计团队:Nguyen Vu Hoang, Nguyen Van Duc, Ngo Van Quyen, Le Xuan Hoang
城市:瞿ảng长
国家:越南
由建筑师提供的文字描述。广平以其狭窄陡峭的土地而闻名,以Phong Nha Cave, Thien Duong Cave, Son Doong Cave等而闻名,气候恶劣,雨季寒冷,旱季热老多风。气候和天气的影响总是影响着人们的生活方式和文化。
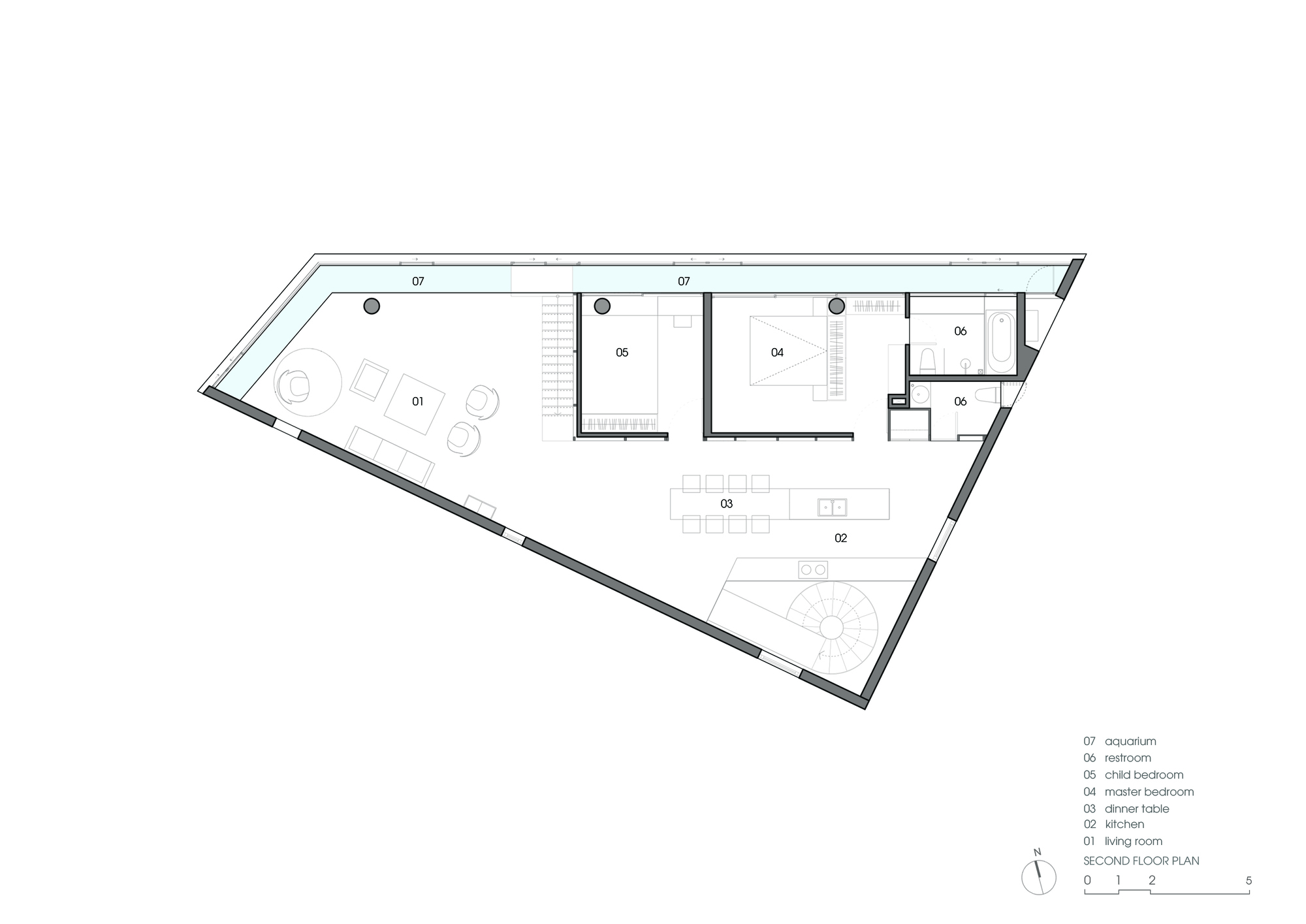
房子位于Ba Don镇(广平北部)的边缘,在t型路口——一个拥挤的交通路口。路的前面一直延伸到批发市场;背面与河岸相连,船只聚集在这里进行水路贸易。凭借环境特征和相对较小的136平方米土地面积,该设计提供了一个解决方案,使一楼空置,开放的玻璃沿着临街两侧延伸,确保商业活动的多功能性。家庭的生活和工作功能被推到更高的楼层,包括二楼的卧室,厨房-餐厅和客厅。三楼是一个共享的生活空间,一个小卧室和一个祭坛室,阁楼是一个露天游泳池,可以俯瞰外面的自然景观。
房主在劳累的工作后想要一个可以居住和聚会的房子。建筑师想象着进入洞穴时的平静感,内外边界逐渐划分,拥挤的街道和车辆消失,取而代之的是空间、光线、情感和家庭。通过关闭外部和扩展内部功能,分配功能根据房屋的高度创造了面积和体积的变化。楼梯系统是交通轴的过渡点,有助于加强成员'连接。它还旨在创造一种体验,在一个充满自由的空间里散步。每一步都是一个不同的、独特的视角。
私人卧室的面积最小,以确保共享的生活空间是开放的,“空的”。并且相互连接,这样家庭成员就可以联系和互动。,或分享。虽然每个人都有自己的兴趣和工作,但当他们回来时,共享空间将永远是一个容纳所有人的地方,并向彼此开放。
连续性- 2楼和3楼交替封闭。倾斜的屋顶系统类似于山坡,打开了平静的天空,但确保与外面的喧嚣分开,为房主创造隐私。向西延伸的半屋顶半开放式游泳池,带给使用者从内到外游泳的氛围和感觉,疲劳后的放松,打开一个广阔的,浮动的,情绪化的天空。一段长长的楼梯通向屋顶,房子就像一个无边无际的周围地区的全景,享受大自然带来的美好时刻。
在这个项目中,建筑师想要创造一系列的体验感,内敛、安静和隐私,但仍然与自然联系在一起,在内部和外部因素之间,而不是分离和锁定。房子因房主的个性和愿望而变得独一无二。
项目画廊
客服
消息
收藏
下载
最近




































