查看完整案例

收藏

下载

翻译
Architects:Studio Mai Mai
Area:130m²
Year:2023
Photographs:FANGBakii , Apinine Thassanopas
Manufacturers:COTTO,Lamptitude,Thaweephan
Lead Architect:Suvitchpong Asanachinta
Contractors:NUNVARA ENGINEERING LIMITED PARTNERSHIP
Structure Engineer:Chaiwat Kaewkom
Content Writer:Ded Chongmankong , Simona Meesaiyati
City:Chiang Mai
Country:Thailand
Text description provided by the architects. With the desire to find a home that is both compact in size and situated near her workplace, the client, Duen (Nuntisa Chotirosniramit), went on a search within Wat Umong Street for a house that is up for sale. Finally, she stumbled upon a doer-upper house, which is the perfect size and in the right location near her office at the research center in Chiang Mai University. Studio Mai Mai was brought on to renovate this house into her dream home.
Adding To The Old, Bringing In The New - After closer inspection, the architect at Studio Mai Mai found that the 2 story house itself has deteriorated over time (the house is estimated to be around 30 years old). The structure of the house was built with a mixture of wood and concrete, and a doubled layer slanted roof created a beautiful skylight. With the overall shape and form of the house already beautiful, the client and the architect decided to keep its original form and only fix and change what was necessary, making sure that the new design fits in harmoniously with the existing structure.
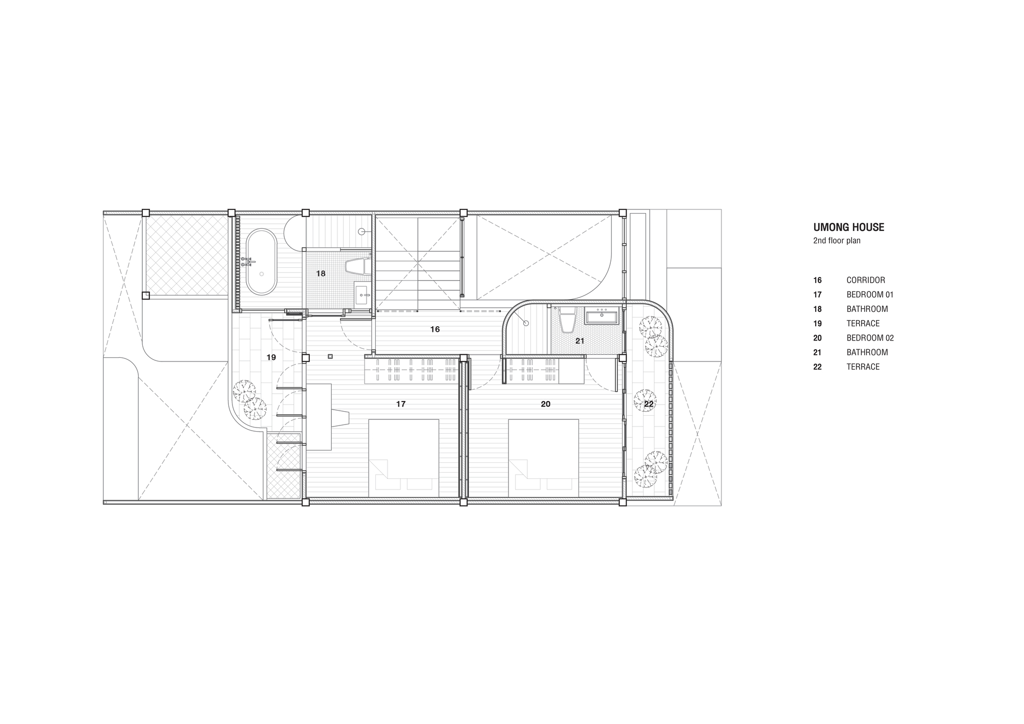
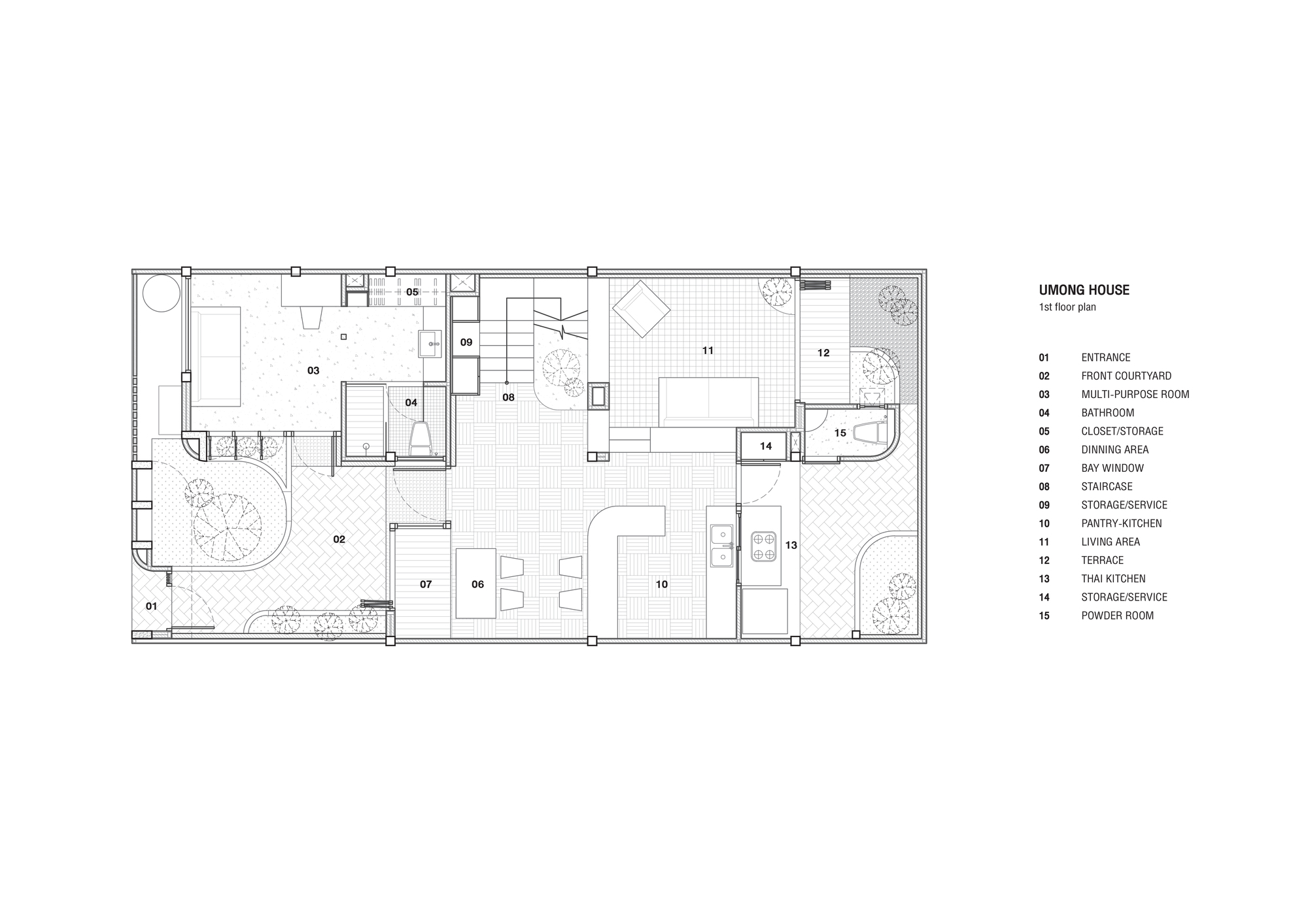
Design To Fit The Lifestyle - The client wanted to change the layout of the house to match her daily life and usage. A multi-purpose room near the entrance of the house was added, along with a separate washroom beside the one in the main area of the house. As for the second-floor layout, 3 smaller bedrooms were combined into one spacious master bedroom with an ensuite and another smaller yet comfortable guest bedroom. With an available parking space near the property, the existing parking lot in front of the house was turned into a garden to give the house a more relaxing and calming atmosphere.
The Brighter, The Better - The original skylight in the house was something that needed to be highlighted; the architect decided to accentuate this by taking out part of the second floor to create a double ceiling that connects the first-floor living area with the skylight, making this the key design of the whole renovation. The natural light will give the homeowner a bright and fresh space that will welcome them every morning and prepare them for a new day. This double space alteration is also a solution to fix the layout to create the 2 bedrooms that the client wanted.
Organic Shapes in The Details - Since the home isn’t that big in size, the architect wanted to reduce the stiffness of the lines within the structure of the house by adding more curves and organic lines. It can be seen within the new fence, walls, flooring, arcs, and many other elements within the house. This helps make the house feel more gentle and less harsh without interrupting its initial structure. The color scheme was kept minimal with white and warm tones using materials that reflect nature, such as the bricks, tiles, and wood that come in all kinds of interesting texture that seamlessly connects the exterior with the interior. The staircase by the skylight was kept as clean and minimal as possible to not obstruct the natural light, and the addition of blue paints here and there creates depth and gives the house a more unique look. The client worked closely with the architect to curate furniture, plant pots, and other decor to keep the design of the whole house in sync and turn this house into a perfect home.
Project gallery
客服
消息
收藏
下载
最近
























