查看完整案例

收藏

下载

翻译
Architects:ADR
Area:162m²
Year:2023
Photographs:BoysPlayNice
Manufacturers:Rako,Adax,Nora,Nordlux,Osmont,PREFA
Lead Architects:Aleš Lapka, Petr Kolář
Structure:KASPER CZ
Co Author:Miloš Hradec, Pavel Čermák
Program / Use / Building Function:Cottage
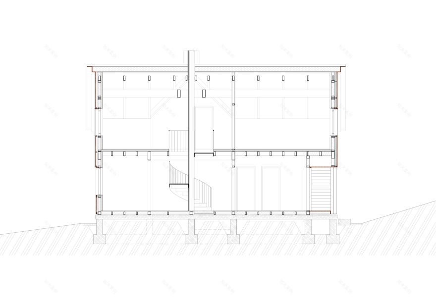
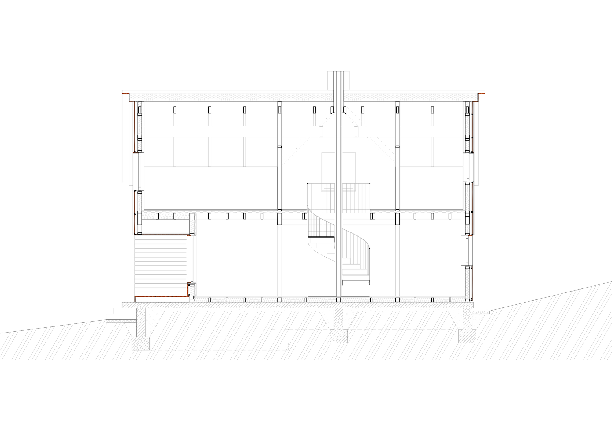
Staircase:Šolc konstrukce
City:Malá Úpa
Country:Czech Republic
Text description provided by the architects. The client’s brief was to design a functional, compact building for the manager of a ski resort within the built-up area of the Horní Malá Úpa village. The morphology of the cross is derived from the traditional construction in the Krkonoše National Park area, but also clearly defines views into the surrounding landscape, towards Sněžka or the summit of Lysečina.
The asymmetrical cross-shaped layout consists of two equally sized masses, with each arm housing a different function offering a unique view. Notably, the dining area offers seating by a window with a view topped by the silhouette of Sněžka. At the intersection of the axes, there is a spiral staircase that winds around a chimney and offers a pleasant sitting area by the fireplace.
The building is designed as a lightweight single-story wooden structure with a residential attic, resting on a concrete foundation slab that floats above the adjacent terrain in the summer, and levels with the snow cover in the winter.
The facade, made of unplaned spruce boards, is coated with red paint, which is historically characteristic of wooden mountain buildings. Wood is also integrated into the interior, in the form of exposed structural elements, as well as the floor and all custom-made furniture, which are crafted from solid spruce.
Project gallery
客服
消息
收藏
下载
最近



































