查看完整案例

收藏

下载

翻译
Architects:Sher Maker
Area:360m²
Year:2023
Photographs:Rungkit Charoenwat
Lead Architects:Patcharada Inplang,Thongchai Chansamak
Design Team:Patcharada Inplang, Thongchai Chansamak Akapan Kanyen, Sirilanna Siripen, Akapan Kanyen, Patthaporn Phuangmalai
Contractor:Nattaphume Nantabun
Structure Engineer:Pilawan Piriyapokai
City:Chiang Mai
Country:Thailand
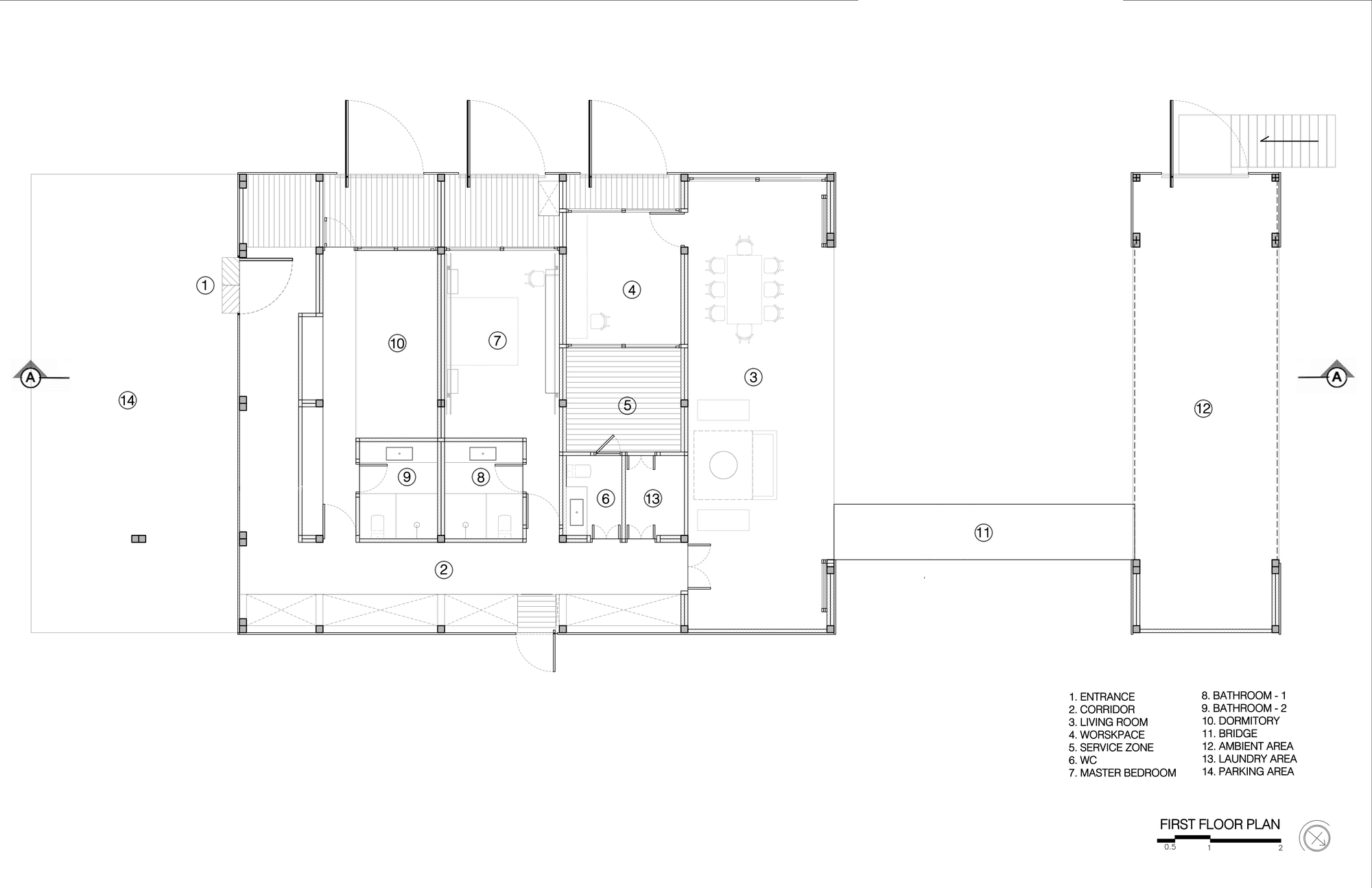
Text description provided by the architects. This residential home is situated on the edge of a 3-acre plot, blanketed by a lush Chamchuri (rain tree) forest in Chom Thong district, Chiang Mai. The owner aimed to preserve the natural ecosystem with minimal intervention. Positioned along the plot's non-boundary edge and nestled among existing trees, the building acts merely as a natural observation space.
The land slopes from the road level down to a vast Chamchuri forest, bisected by a community stream flowing through a longan orchard. With the intention of not changing the flowway and allowing community access to the stream, the building's walls act as a division fence of privacy by itself while still permitting views in and out. This allows air, wind, and community sounds, enabling residents to fully engage with the natural environment through sight and touch.
The body of architectural method is simple, featuring formation from a gabled roof with RC concrete structures that easy executed by local builder team. Encased in timber batten all around, The batten walls are made of locally sourced wood, Shorea that coated with used black engine oiled that cheap and easily to found for protect the external wood though the local wisdom of Northern builder.
The main hallway, facing the village road, leads to the bedrooms and living room at the far end. The family's living space, situated at the deepest part of the house on the sloping terrain, ensures privacy while still offering views of the natural Chamchuri forest landscape and the Doi Inthanon mountain range from the observation deck at the end of the bridge.
The serenity and unspoiled wildness of nature, especially the last light before sunset, can be intimately experienced from the observatory. This space is also adaptable to accommodate various future family activities.
Project gallery
客服
消息
收藏
下载
最近


































